
Comentariul autorului:
Proiectul propune reactivarea fostului Institut Elisabeta Stirbey din cartierul Antim, București, prin transformarea acestuia într-un centru educațional destinat copiilor. Zona, puternic marcată de intervențiile comuniste, beneficiază astfel de o intervenție care urmărește revitalizarea culturală și socială, punând în valoare patrimoniul istoric al sitului. Institutul, cândva un simbol al educației feminine în limba română, este într-o stare avansată de degradare, iar restaurarea lui vizează reintegrarea în viața urbană contemporană.
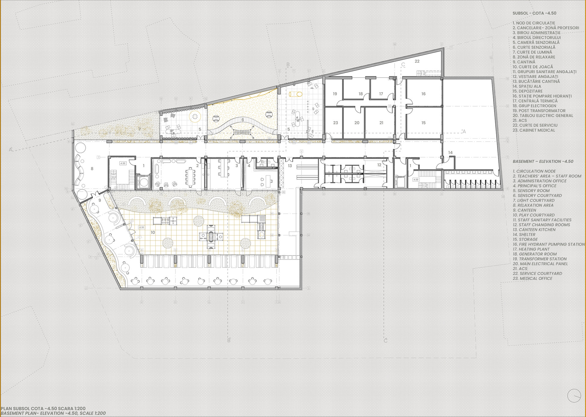
Centrul social și educațional propus este structurat în patru module care sprijină dezvoltarea holistică a copiilor: psihoterapie (cuprinzând consiliere, terapie prin artă, mișcare și spații senzoriale), componenta socială (spații pentru comunicare și exprimare), componenta educațională (săli de clasă amplasate în vechea clădire a institutului, folosind jocul ca metodă didactică), și conexiunea cu natura (curți exterioare la diverse cote, conectate funcțional și vizual cu interiorul). Toate spațiile sunt gândite ca un ansamblu unitar, care se integrează armonios în cartier și aduce un nou suflu educațional și comunitar, completând sistemul de învățământ tradițional.