
Comentariul autorului:
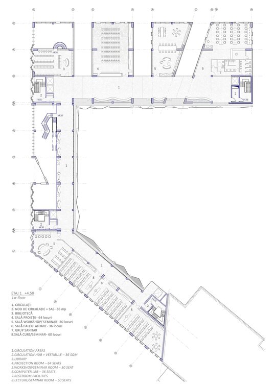
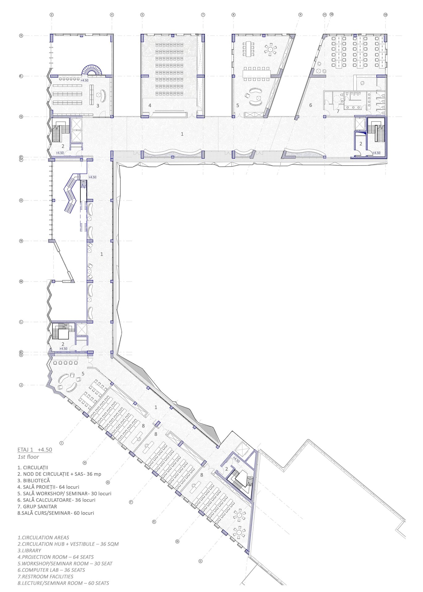
Imaginea de astăzi a țesutului bucureștean este rezultatul numeroaselor peticiri și uzuri de pe firul temporal al evoluției sale. Neconstruitul, ca și construitul, participă în mod activ la peisajul urban. Oportunitatea acestei teme de proiectare a venit în urma învecinării cu Universitatea Politehnica București- Campus Polizu și totodată a dorinței exprimate de conducerea acesteia prin cadrul concursului anunțat în urmă cu câțiva ani. Inserția într-un context fragmentat si afectat de-a lungul timpului a făcut ca primul pas al proiectului să fie propunerea unei imagini noi a întregii insule. Principiile care au stat la baza proiectului sunt: respectarea direcțiilor vechilor parcele, preluarea unor volume si direcții generate de context, refacerea frontului continuu pe ambele străzi, evitarea unor accente de înălțime care ignoră scara medie spre joasă a mediului construit adiacent și cel mai important crearea unei zone centrale- o curte interioară ce funcționează ca un punct de captare și redistribuire a circulațiilor.În cadrul proiectului am ales amplasarea funcțiuniilor publice la nivelul parterului, adăugând o stradă pietonală care să lege cele două străzi la care volumetria are deschidere. Totodată noua zonă pietonală permite generarea unei piețe în directă legătură cu intrarea principală. La nivelul subsolului și în directă legătură cu curtea îngropată sunt funcțiuni destinate studenților precum:săli de lectură, săli de studiu individual și cantină. Spațiile pe dublă sau triplă înălțime, zonele de trecere de la cât mai intim la foarte public, curtea interioară și străpungerile pietonale care duc la ea sunt elemente care definesc complexitatea unui astfel de program.