
Comentariul autorului:
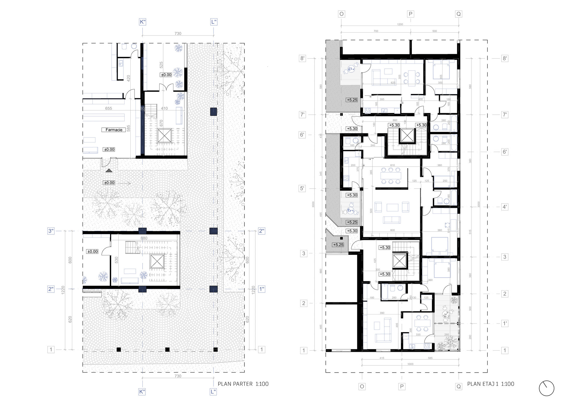
Proiectul de locuință colectivă se află în cartierul Giurgiului, la intersecția străzilor Basarabilor și Ștefan Vodă cu strada Toporași, care leagă zona la sud de cartierul Ferentari. Terenul se află la limita abruptă dintre țesutul omogen de locuințe individuale regim parter și perdeaua de blocuri socialiste P+7 de la bulevard, chiar în vecinătatea unui turn de 15 etaje. Date fiind zona și contextul, proiectul propune un tip de locuire pentru posibilități financiare reduse, fără a pierde din vedere demnitatea și principiile unei locuiri de calitate. Terenul dat găzduiește la momentul actual o clădire comercială P+2. Din considerente de sustenabilitate, am ales să lucrăm cu structura existentă pe care am extins-o pe orizontală până la limitele maximului edificabil pentru a obține o construcție neinvazivă din punct de vedere al înălțimii pentru locuințele individuale din jur.
Astăzi cunoaștem locuirea doar în limitele proprietății individuale. Spațiul dintre locuință și oraș este vid, ne închidem în bunăstarea noastră și trăim în aceste “orașe închise”. Astfel, ne-am propus să schimbăm perspectiva omului asupra locuirii prin gesturi arhitecturale și compoziții spațiale care să invite la firescul întâlnirii. Cel mai bun exemplu de locuire în comunitate l-am găsit la sat, din care am extras acele mecanisme spațiale și sociale care favorizează formarea comunității și le-am adaptat contextului urban contemporan.
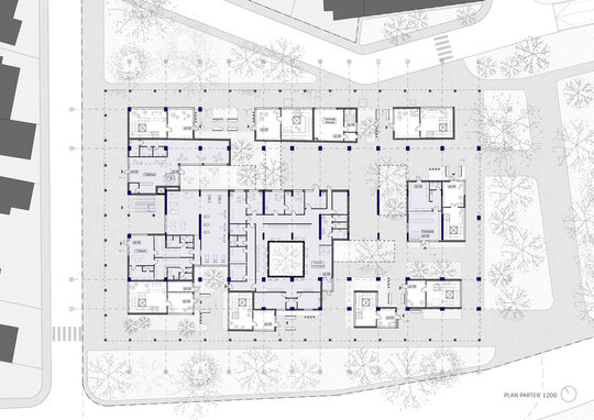
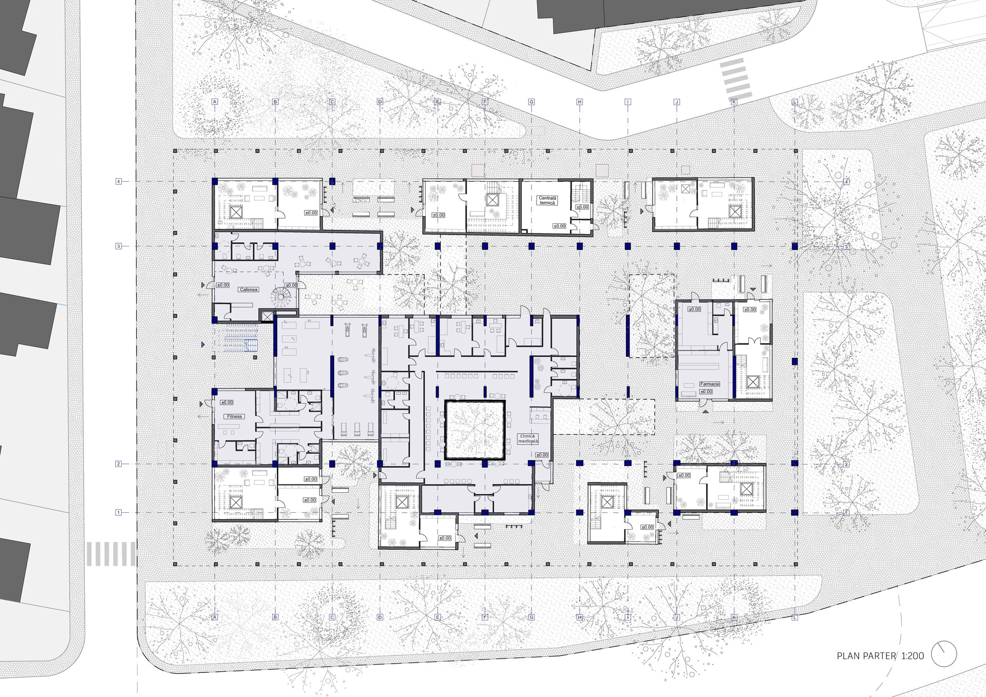
În acest sens, am ales o configurare de tip microclimat, cu înălțime redusă și densitate ridicată, care să nu intimideze locuitorul în practicile firești de zi cu zi și în care spațiul comun devine o extensie a locuinței. Pentru a combate riscul de a deveni un obiect izolat, am deschis ansamblul către oraș prin mai multe metode printre care proiectarea unui parter permeabil, deschis și chiar invitant pentru comunitate, perforarea unor goluri în placa de peste parter pentru un dialog continuu cu interiorul ansamblului și deschiderea colțurilor clădirii sub forma unor logii.
În partea de vest am dispus accesul către ceea ce noi am numit “orașul vertical”, o extensie a cartierului, o succesiune de funcțiuni comunitare semipublice la etajul întâi (bucătărie comună, spațiu comunitar pe două etaje) și de mici înteprinderi la etajul al doilea(printre care o frizerie, o croitorie și o marochinărie). Prin configurare și tratare a spațiilor interstițiare astfel încât să invite la comuniune, acest spațiu capătă calitatea de loc, devenind ușor de însușit de către comunitate. Această stradă manufacturieră de la etajul al doilea se deschide spre vest cu o perspectivă asupra cartierului care menține dialogul cu acesta. Toate cele patru curți conturate sunt interconectate prin spații interstițiare tratate într-o manieră care invită la interacțiune. Porozitatea între public și privat dată de fluiditatea spațiilor precum și cele 4 curți interioare conferă locului un caracter de microclimat. Spațiul comun devine o extensie a apartamentelor facilitând o legătură organică între locuitori. Abordarea curților interioare care formează microclimate își are rădăcina în proiectul de apartamente proiectat de Sanaa in Kanagawa cu valențe în pavilioanele lui Ishigami.
Este vizibilă în plan prezența grădinilor la apartamentele cu trei sau patru camere, configurarea fiind “deschisă”, cu limite transparente de proprietate, principiu preluat din locuirea la sat. Intimitatea în locuință este totuși un aspect important, iar pentru a o respecta am dispus golurile în placă de-a lungul spațiilor private, generând o limită subtilă între public și privat.
Proiectul se constituie într-o fugă de standardizare înglobând 60 de tipuri de apartamente, toate compuse după aceleași principii: circularitate, trasee multiple și relații vizuale între spații. Un aspect important legat de calitatea locuirii este faptul că apartamentele au dublă orientare. Logiile, trimiteri către prispa casei, nu doar că articulează spațiul interior, privat, de cel exterior, ci introduc și o dimensiune simbolică locuirii legată de continuitatea culturală și de obiceiul socializării în spațiile intermediare. Adâncimea topologică mică este o altă caracteristică preluată din imaginea satului, o conformare care, împreună cu multitudinea intrândurilor și ieșindurilor din compoziția fațadelor interioare, reprezintă o bogăție care creează premisele formării unei comunități.
În acest proces de proiectare în care am căutat să încurajăm oamenii să privească locuirea altfel prin gesturi arhitecturale, care să împingă limitele locuirii pe care o cunoaștem, am căutat acel factor inovativ și pe partea de materialitate și finisaje. Peste structura din beton armat a fostei clădiri LIDL, am dispus o structură ușoară din panouri de CLT, material central în finisajele interioare prin lăsarea sa aparentă. În aceeași direcție sustenabilă, am considerat esențială folosirea la exterior a unui finisaj dintr-un material organic și accesibil, care să integreze natural și neinvaziv noul ansamblu în țesutul omogen de locuințe modeste. Astfel am aprofundat studiul în jurul unui material ușor de găsit în țara noastră: miceliul. Fascinate de logica lui naturală, de modul în care crește, se ramifică și se adaptează, am descoperit în această materie vie nu doar un material sustenabil, ci și o sursă de inspirație pentru proiectul de locuință colectivă, care are în centrul său oamenii și relațiile dintre aceștia. Rezistența sa structurală este redusă, dar performanțele materialului în ce privește izolația, rezistența la foc și protecția împotriva mucegaiului sunt remarcabile, făcându-l un material promițător în contextul arhitecturii sustenabile. Am folosit miceliul atât la placarea fațadelor și a acoperirii cât și la amenajarea interioară a apartamentelor. De la corpuri de iluminat până la obiecte de mobilier (scaun, șemineu), miceliul conferă spațiului în care se află un caracter confortant, plăcut. Am dispus în apartamente șeminee electrice ca simbol al vatrei satului, obiecte cu potențial de a deveni inima casei. Pentru proiectarea acestora ne-am inspirat din șemineele proiectate de Marcel Breuer.
Nu privim spre arhitectură cu dorința de a șoca prin inovație, ci de a contura noi răspunsuri, noi abordări orientate spre om, spre firescul vieții și spre păstrarea și perpetuarea practicilor și principiilor sănătoase de trai. Imaginea satului își găsește o evocare permanentă în interiorul ansamblului. De la relația firească om natură până la porozitatea limitelor public-privat, proiectul se constituie într-un microunivers ca extensie a sinelui comunității, un loc din care se naște firescul și în care aerul are o densitate de început de lume.