
Comentariul autorului:
Proiectul propune o locuință unifamilială cu regim de înălțime parter și etaj, ce explorează o estetică arhitecturală contemporană, în care forma pură, materialele naturale și lumina definesc un stil de viață echilibrat. Compoziția volumetrică urmărește proporții curate, gesturi controlate și un raport clar între plin și gol, într-o abordare care privilegiază ordinea, ritmul și funcționalitatea.
Casa este organizată pe un volum clar definit, articulat prin retrageri și console care au rol atât estetic, cât și funcțional. Intrarea principală, este ușor retrasă, oferind protecție și o secvență de tranziție subtilă între spațiul public și cel privat.
Curtea din față este tratată ca o grădină minerală, în care vegetația joasă și jardinierele integrate se armonizează cu linia arhitecturală a casei. Zidul gardului are este tratat ca o continuare a fațadei, accentuând jocul volumetric de prisme suprapuse.
Liniile orizontale ale fațadelor sunt accentuate de rosturi fine și schimbări de material care fragmentează masa compactă și oferă dinamism compoziției. Verticalitatea panourilor de lemn introduce ritm și căldură în contrast cu tencuiala albă și placările minerale gri. Panourile traforate, din lemn compozit, au rolul de a filtra lumina si de asigura intimitate.
Terasa posterioară, acoperită parțial de consola etajului, funcționează ca o extensie firească a livingului și a spațiilor de zi. Aceasta este complet deschisă către grădină, încurajând un stil de viață conectat la exterior.
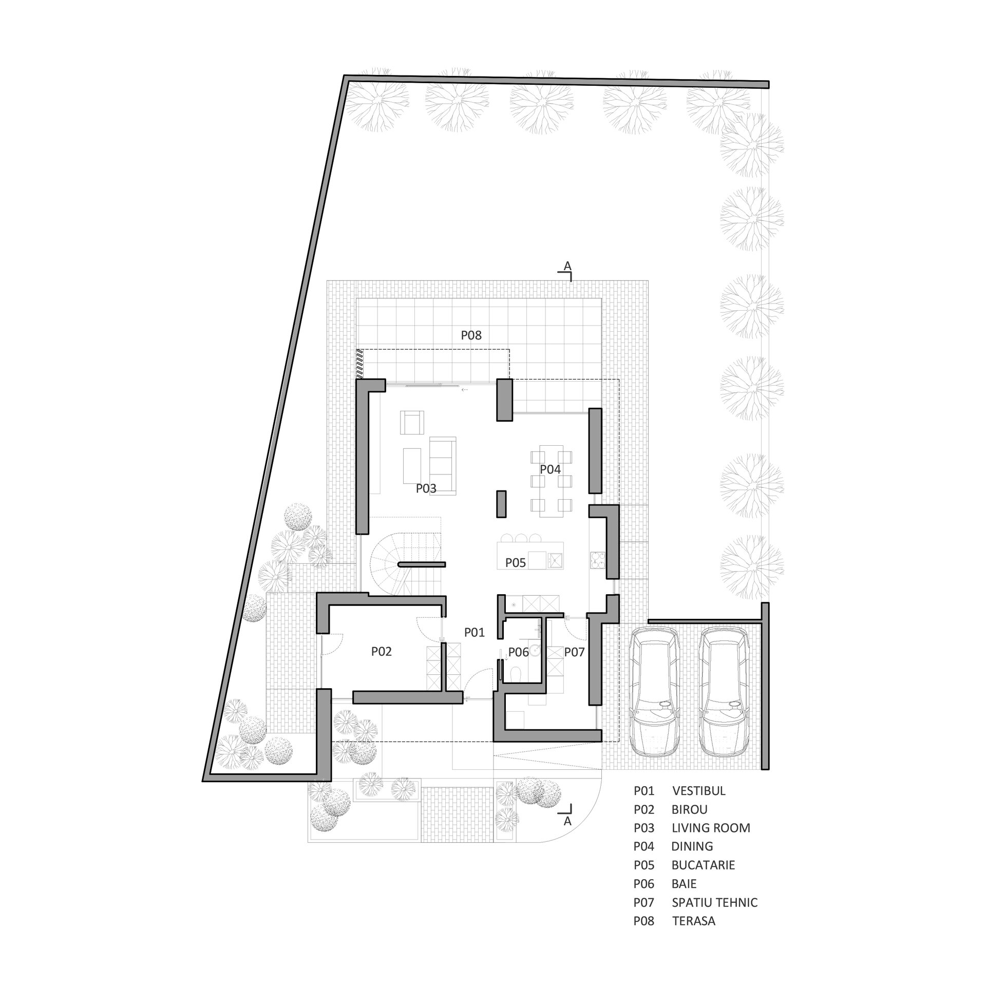
Planul casei este organizat clar, cu delimitări funcționale simple. La parter sunt amplasate zonele de zi – living, dining și bucătărie, care comunică fluent cu exteriorul prin suprafețe vitrate mari, precum si biroul, amplasat în apropierea vestibulului și care dispune de o terasa proprie delimitată vizual de restul grădinii . Etajul găzduiește dormitoarele și băile, cu deschideri controlate spre exterior, terasa amplă a dormitorului matrimonial ce oferă perspective atât asupra grădinii cât si a lacului din apropiere și o logie retrasă ca spațiu semi-privat de relaxare.
Proiectata in standardul Nzeb, casa integrează soluții eficiente energetic, atât pasive, cât și active. In proiectare și execuție s-a avut o atenție sporita în realizarea detaliilor în acest sens: etanșeitate la aer, evitarea punților termice, izolarea corespunzatoare, controlarea aportului solar prin copertine sau retrageri volumetrice. Este prevăzută cu sistem de ventilație cu recuperare de caldura și aport de aer proaspăt, încălzire prin pardoseală, răcire prin tavan, pompă de căldură, automatizări integrate KNX, alimentate de sistemul fotovoltaic.
Intervenția arhitecturală se dorește a fi matură, punând în valoare spațiul ca element central, cu accent pe proporții, materiale naturale și lumina naturală ca parte din compoziție.