
Comentariul autorului:
Amplasat in zona Corbeanca, situl este definit de prezența a doi factori naturali cu impact vizual major: lacul și stejarul matur aflat în mijlocul grădinii.
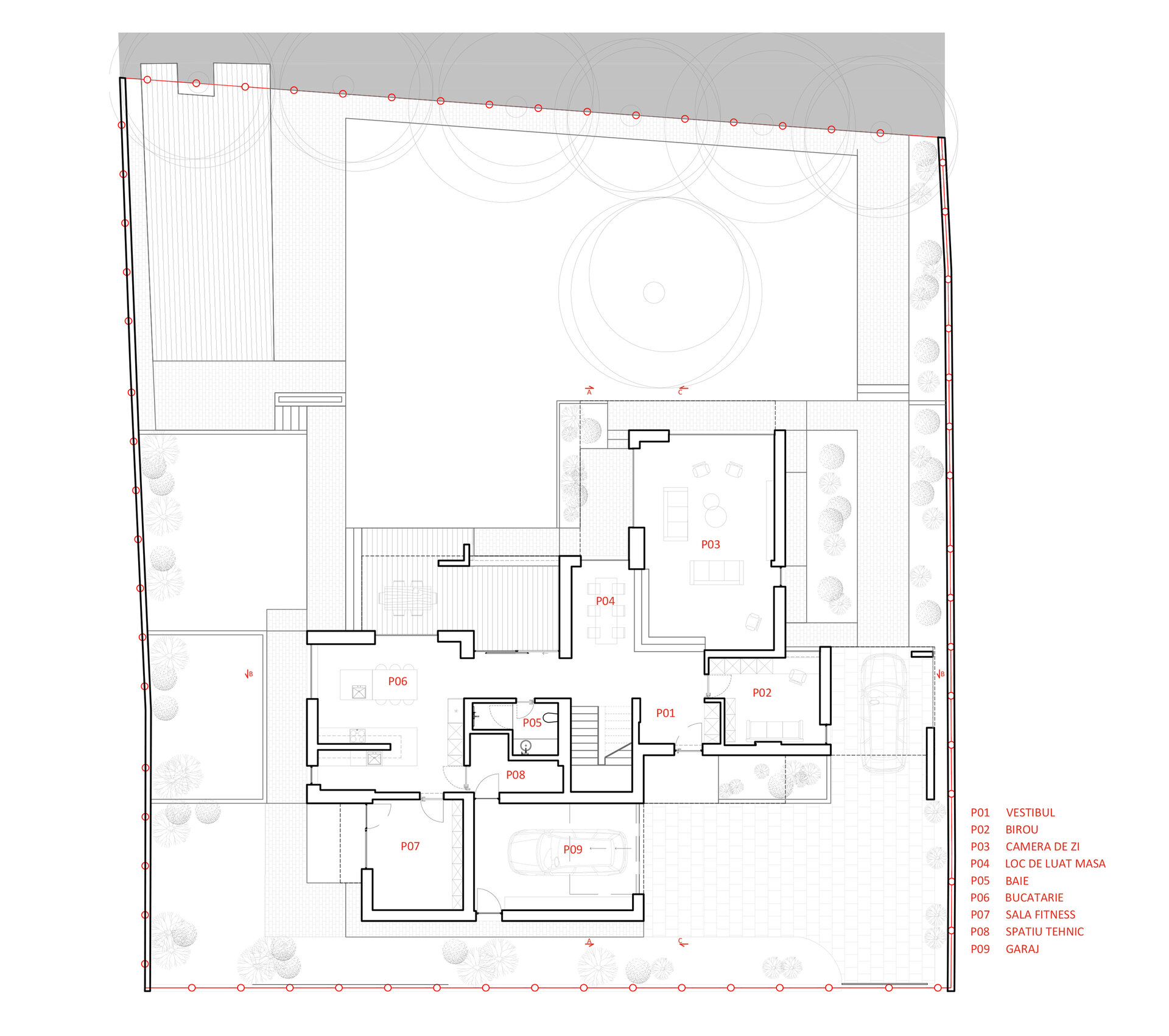
Volumetria parterului este articulată prin extensii orientate către cele patru puncte cardinale, rezultând o planimetrie neuniformă, aproape tentaculară. Aceste proeminențe sunt determinate de dorința de a capta perspective spre lac din toate funcțiunile principale. Am încercat sa surprindem aceste perspective unice prin cadrarea lor in diferite “rame”, de la porticul auto ce filtrează accesul către lac, la ferestrele ample poziționate strategic.
Simplitatea volumului superior este echilibrată de dinamismul parterului, tratat într-o varietate de materiale (cărămidă, lemn, ceramică) și tonuri cromatice (negru, antracit, cărămiziu, ocru, alb). Jocurile de retrageri, lumini și texturi contribuie la o expresivitate arhitecturală complexă, dar coerentă.
Fațada este placată cu panouri din lemn de stejar, ca o prelungire a acestui element natural în arhitectură. Parte din cărămida folosită a fost recuperată dintr-o anexă gospodărească existentă anterior pe teren
Arhitectura a fost gândită pentru a valorifica relația cu natura și pentru a crea o continuitate firească între spațiile interioare și cele exterioare. Parterul permite o deschidere vizuală amplă către grădină, lac și stejar, contribuind la o locuire profund conectată cu situl.
Planimetric, parterul cuprinde funcțiunile de zi: bucătăria, zona de luat masa, biroul și sala de fitness. Livingul este volumetric “atras”, aproape magnetic, catre stejar, ajungând să fie amplasat aproape în mijlocul grădinii. Urmând declivitatea terenului, aceasta zona este mai coborâtă față de restul parterului și se inserează discret în peisaj. Din acest spațiu se deschid perspective ample către lac și grădină.
Bucătăria este împărțită în două zone distincte: una „curată”, deschisă spre centrul casei și utilizată și ca spațiu de socializare, și una „secundară”, mai mica, dedicată activităților tehnice – gătit, spălat vase etc.
Etajul este dedicat zonei de noapte, unde pasarela de peste dining are rolul secundar de a separa aparatul dormitorului matrimonial de restul zonei de noapte, pentru un plus de intimitate. Toate dormitoarele au deschidere către terase individuale, gândite ca extensii naturale ale spațiilor interioare.
Proiectata in standardul Nzeb, casa integrează soluții eficiente energetic, atât pasive, cât și active. In proiectare și execuție s-a avut o atenție sporita în realizarea detaliilor în acest sens: etanșeitate la aer, evitarea punților termice, izolarea corespunzatoare, controlarea aportului solar prin copertine sau retrageri volumetrice. Este prevăzută cu sistem de ventilație cu recuperare de caldura și aport de aer proaspăt, încălzire prin pardoseală, răcire prin tavan, pompă de căldură, automatizări integrate KNX, alimentate de sistemul fotovoltaic.