
Comentariul autorului:
Casa este dezvoltată pe două niveluri, cu o compoziție volumetrică bazată pe alăturarea de prisme rectangulare, într-un joc de plinuri și goluri care generează o siluetă coerentă și dinamică.
Proporțiile atent controlate ale volumului și contrastul de texturi și nuanțe între finisajele simple (tencuială albă) și suprafețele minerale (placări cu plăci ceramice de mari dimensiuni, în tonuri închise) oferă o imagine elegantă, dar discretă. Aceste zone placate au rolul de a crea vizual un joc de prisme monolitice separate prin transparenta golurilor de ferestre.
Fațadele se disting prin rigoarea liniilor orizontale, evidențiate prin cornișe și console clare, și prin ritmul echilibrat al golurilor vitrate. Placarea verticală din lemn (HPL) inserată în volumele etajului adaugă un strat cald, natural, care temperează austeritatea albului predominant.
Prin utilizarea consolelor si a copertinelor, atât peste parter cât și peste etajul 1, se realizează controlul solar pentru vitrajele supradimensionate dinspre curte.
Zona de acces este tratată cu o atenție specială – o succesiune de trepte ample marcate de jardiniere, conduce spre un portic retras, protejat, finisat în plăci ceramice închise la culoare. Această retragere volumetrică conferă intimitate și o senzație de tranziție bine reglată între spațiul public și cel privat.
Terasa principală, amplasată pe latura sud-vestică, este bine proporționată și tratată unitar cu treptele largi, ce o conectează la grădină. Este parțial acoperită, beneficiind de un raport echilibrat între umbrire și deschidere, oferind un spațiu semi-interior ideal pentru relaxare.
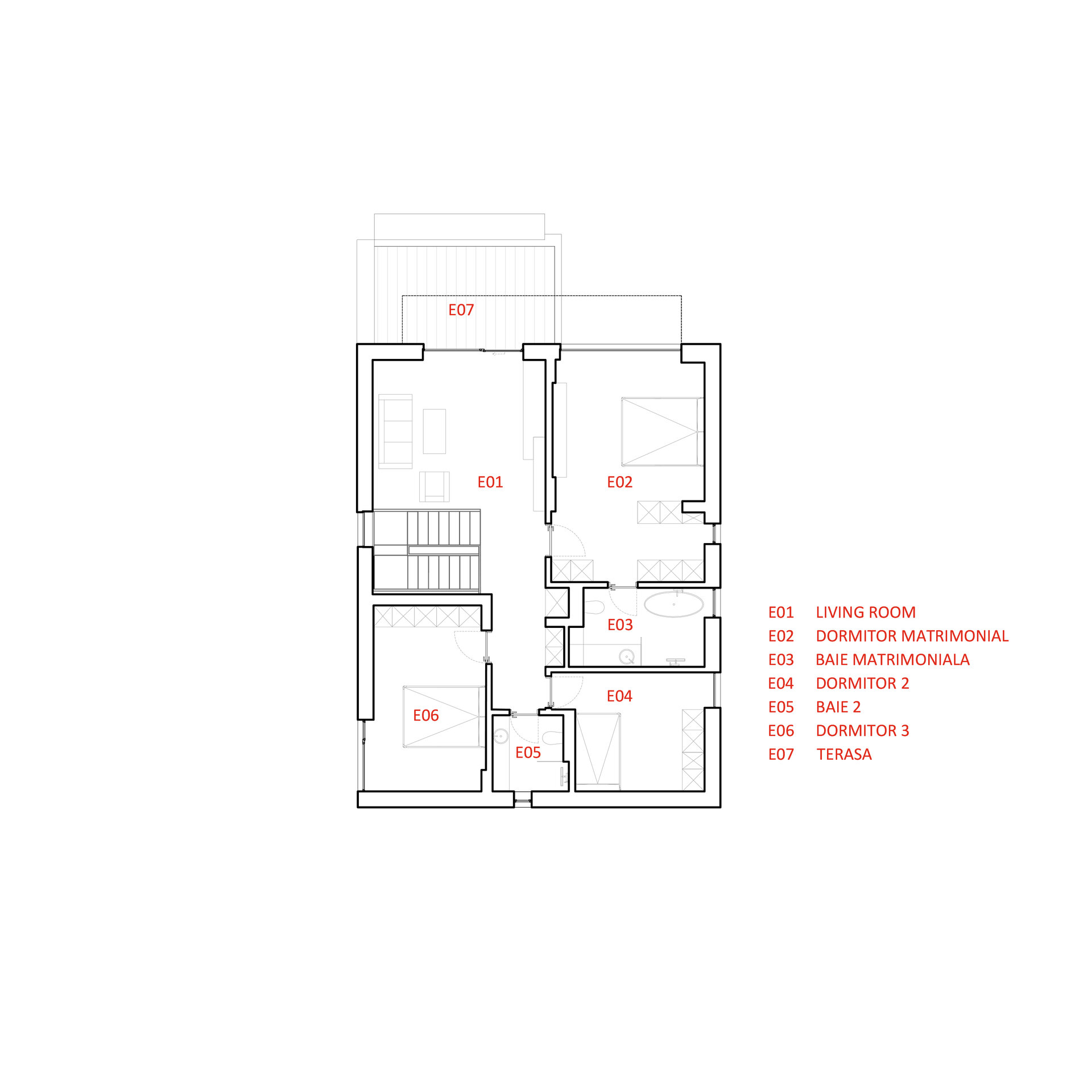
Din punct de vedere functional, am încercat sa cream un spațiu coerent, care sa răspundă nevoilor beneficiarilor. In zona de acces am amplasat un birou, o zona de depozitare, spațiul tehnic și un grup sanitar. Partea din spate cuprinde zona de zi cu bucătărie deschisă, dining și zona de living cu ieșire pe terasa acoperită. Etajul se remarcă prin zona open-space care găzduiește un spațiu multifuncțional ce poate fi folosit cu precădere ca un living secundar destinat copiilor, cu acces către terasă. Zona de noapte este alcătuită din trei dormitoare, dintre care unul matrimonial cu facilitățile conexe ( baie individuală, dressing ), un dormitor pentru copil și încă unul de oaspeți. Amplasarea golurilor aferente ferestrelor a urmărit obținerea unor vederi favorabile și plăcute către contextul înconjurător.
Proiectata in standardul Nzeb, casa integrează soluții eficiente energetic, atât pasive, cât și active. In proiectare și execuție s-a avut o atenție sporita în realizarea detaliilor în acest sens: etanșeitate la aer, evitarea punților termice, izolarea corespunzatoare, controlarea aportului solar prin copertine sau retrageri volumetrice. Este prevăzută cu sistem de ventilație cu recuperare de caldura și aport de aer proaspăt, încălzire prin pardoseală, răcire prin tavan, pompă de căldură, automatizări integrate KNX, alimentate de sistemul fotovoltaic.