
Comentariul autorului:
Într-o gospodărie săsească, într-un sat pe Via Transilvanica, cu o casă existentă veche, recent renovate, s-a cerut în completare, încă o casă de oaspeți și spații comune.
Intervenția a pornit de la dorința beneficiarilor de a păstra spiritul locului și compoziția arhitecturală a vechii gospodării, adăugând în același timp funcțiuni contemporane care să permită deschiderea către oaspeți și turism de tip slow.
Casa veche, construită în stilul specific coloniștilor sași din secolele XII-XIII, este păstrată în integralitatea sa: o construcție din piatră și cărămidă, cu pivniță semi-îngropată, un parter înălțat, organizat simplu, în jurul unui hol central și o mansardă. Pridvorul, cuptorul de pâine și fântâna din curte sunt elemente esențiale în definirea gospodăriei și au fost conservate cu grijă.
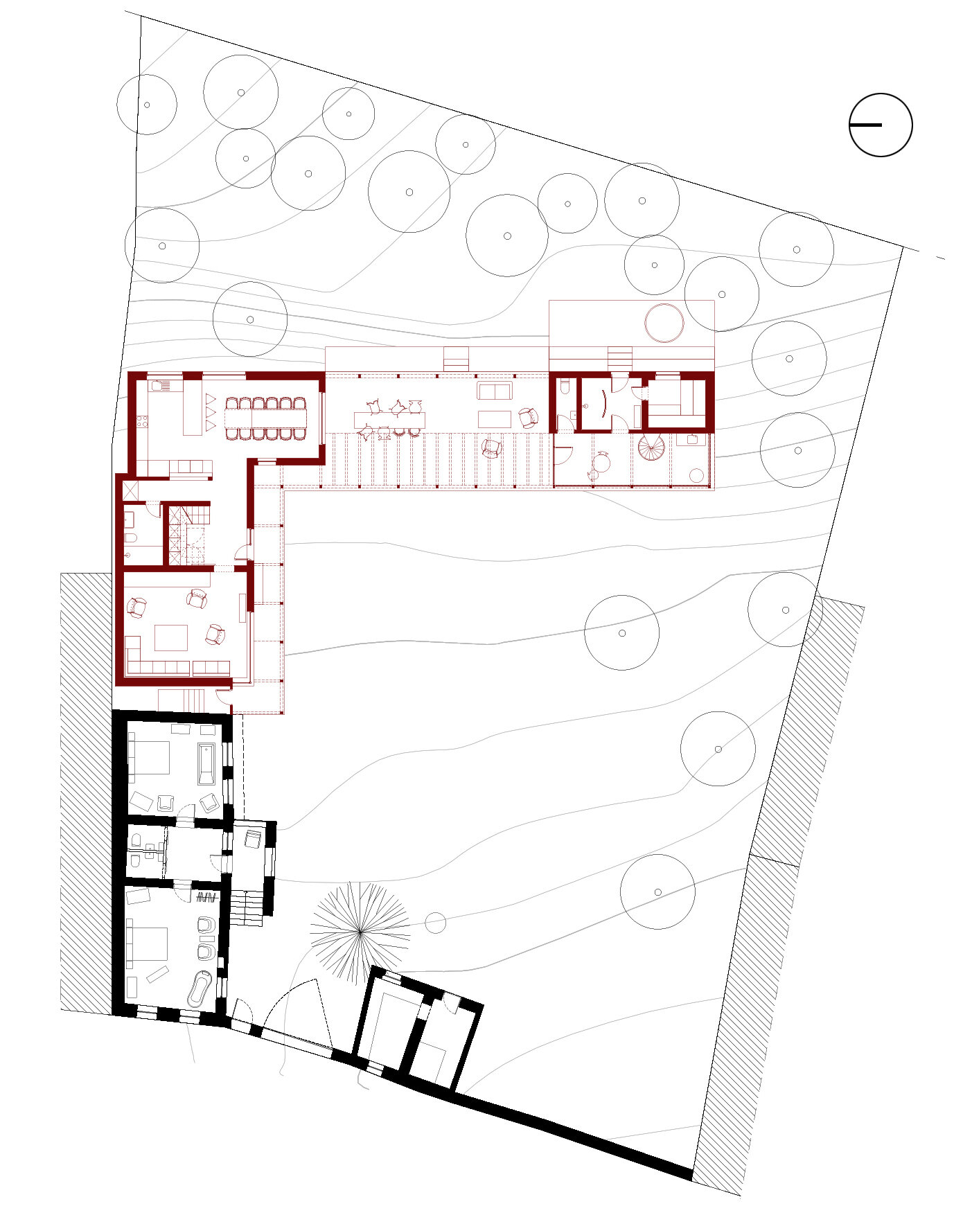
Intervenția nouă constă în adăugarea unui corp de cazare – o casă de oaspeți cu parter și etaj – amplasată în linie cu construcția existentă, pe limita nordică a terenului. Această dispunere respectă tipologia istorică a gospodăriilor săsești, în care clădirile se aliniază de-a lungul hotarului, creând o curte lungă și bine delimitată. În același timp, amplasarea favorizează însorirea tuturor spațiilor interioare ale noii construcții și lasă liberă o curte generoasă, flexibilă ca utilizare.
În completarea casei de oaspeți, am propus un al doilea corp, cu funcțiuni complementare, organizat pe un singur nivel, perpendicular pe casă. Acesta adăpostește o terasă acoperită, o saună și o seră. Amplasarea sa creează două curți distincte: una principală, orientată spre activitățile zilnice și primirea oaspeților, și una secundară, mai retrasă, în spate, unde terenul este în pantă și vegetația spontană, mai sălbatică. Această organizare recuperează în mod subtil configurația tradițională a curților săsești, unde în spate, acest corp era hambarul (șura) mare, și în spatele acestuia, parcela de teren era folosită pentru grădina de legume sau livada.
Acest corp secundar joacă un rol esențial în definirea vieții de zi cu zi în cadrul noii gospodării. Terasa acoperită – o prispă reinterpretată contemporan, se deschide către ambele curți. Prin proporțiile sale ample, această prispă este un spațiu cu organizare flexibilă, capabil să găzduiască mese lungi, reuniuni, ateliere sau pur și simplu momente de repaus la umbră.
La capătul prispei, se deschide o seră împreuna cu o saună, gândite ca spații de retragere și reîncărcare. Sera poate fi accesată atât direct din terasă, cât și prin intermediul unui traseu interior, care pornește din zona de cazare și traversează podul, adăugând o notă de surpriză și joacă în experiența spațiului.
Împreună, aceste elemente creează o zonă de tranziție între vechi și nou, între interior și exterior, adăugând complexitate unei gospodării ce îmbină tradiția rurală cu nevoile unei vieți contemporane.
Materialele alese pentru noile construcții – lemn, cărămidă aparentă, tencuială albă și acoperișuri din țiglă – continuă firesc limbajul gospodăriei existente, dar într-o exprimare contemporană, discretă. Noul este prezent, dar nu domină, completând ansamblul prin contrast echilibrat și respect pentru loc.
Proiectul urmărește nu doar reactivarea unei gospodării tradiționale, ci și susținerea unui mod de viață mai lent, ancorat în natură și în memoria locului. Este o invitație la conviețuire, continuitate și dialog între vechi și nou.