
Comentariul autorului:
O casă pentru un cuplu care dorește să evadeze din oraș și să se reconecteze cu natura.
Un teren la marginea Bucureștiului, în pantă și de formă triunghiulară, care oferă o priveliște asupra unui lac. Accesul se face pe un drum îngust, iar vecinii sunt in spatele unor garduri înalte. Un sit foarte particular, care a generat multe iterații, dar după doi ani de muncă, s-a ajuns în final la un concept, gata de implementare.
Forma triunghiulară a terenului oferă o oportunitate unică de a maximiza priveliștile către lac și de a utiliza lumina naturală. Casa este amplasată pe latura cea mai lungă a triunghiului, iar volumul serei este rotit astfel încât să fie orientat direct spre lac. Fațada către stradă este complet opacă, într-un gest de introvertire și intimitate. Intrarea casei are o formă triunghiulară sculptată într-un perete compact. Tăietura unghiulară a intrării invită la acces și oferă o sugestie a jocului geometric din interior.
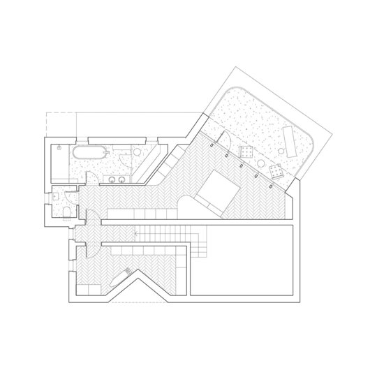
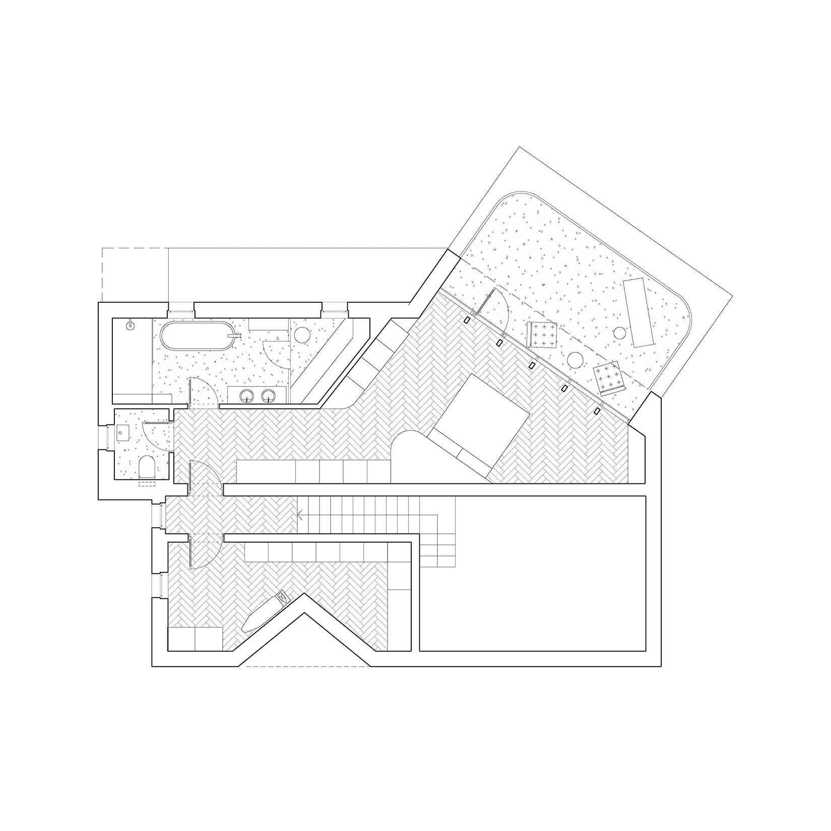
Spațiile sunt distribuite clasic pe cele două niveluri – zonele de zi la parter și dormitorul, la etaj. Parterul este conceput ca un spațiu de locuit deschis, cu o înălțime dublă în zona de living și open-space pentru bucătărie, zona de luat masa, living și seră. Etajul aparține dormitorului matrimonial și spațiilor de depozitare multiple. Dormitorul principal se deschide spre o terasă ce oferă o priveliște de sus asupra lacului.
Unul dintre cele mai captivante elemente ale casei este fereastra rotundă, amplasată strategic în zona de zi. Această deschidere circulară, care contrastează cu unghiurile casei, devine un punct focal, încadrând perfect priveliștea vegetației adiacente lacului.
Cel mai repreentativ element al construcției este sera, într-un volum care se extinde spre lac, îmbinând natura cu spațiul de locuit. Atașată de zona principală de zi a casei, captează lumina și căldura soarelui, creând un sanctuar cald și devine un spațiu de tranziție între interior și exterior, cu panourile de sticlă deschizându-se pentru a permite aerului să circule prin toată casa.
Panta accentuată a terenului oferă oportunitatea de a lucra cu diferite niveluri în interiorul casei și cu înălțimi variabile. Aceasta permite, de asemenea, ca din perspectiva străzii, casa să aibă o înălțime redusă. Este ca o coborâre gradată către lac.
Sustenabilitatea este la baza conceptului – se dorește utilizarea lemnului pentru structură, nu doar pentru atmosfera caldă, dar și pentru integrarea sa armonioasă cu mediul natural, pe termen lung.