
Comentariul autorului:
Proiectul dezvoltă un dialog între deschidere și introvertire, reflectând funcțiunile și relația cu mediul înconjurător. Clădirea se compune din două registre arhitecturale: un soclu opac, masiv, ce ancorează volumul în teren, și un corp superior învelit în tablă metalică cu nervuri verticale, ce imprimă ritm și dinamism fațadei.
Colțurile rotunjite asigură o tranziție fluidă între planuri și o relație armonioasă cu contextul urban și natural. Fațada principală este predominant opacă, protejând intimitatea și marcând accesul principal, în timp ce fațada sudică se deschide larg prin vitraje generoase spre piscina exterioară, maximizând lumina naturală și conexiunea cu peisajul. Polaritatea opac–transparență definește compoziția volumetrică și experiența utilizatorului. Eleganța fațadei superioare este subliniată de ritmul său vertical, iar metalul captează delicat jocul luminii.
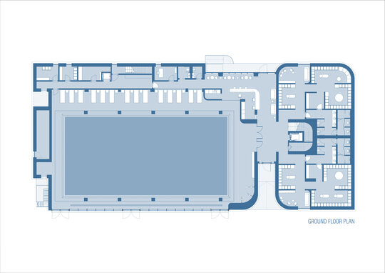
Spațiile interioare sunt organizate pe două niveluri: parterul găzduiește recepția, o cafenea, vestiarele, piscina interioara, conexiunile către sala de fitness și spa, iar nivelul superior adăpostește funcțiunile de wellness și relaxare – zone de hidromasaj, saune uscate și umede, cabine de tratament. În paralel, zona de fitness, amplasată la același nivel, propune o diversitate de spații pentru antrenamente individuale sau colective, într-o configurație ce privilegiază eficiența funcțională. Traseul utilizatorului este clar și intuitiv, iar raportul între zonele deschise și cele protejate permite o tranziție naturală între stări de activare și repaus.
Contrastul material între duritatea tavanului casetat din beton aparent al piscinei interioare și fluiditatea apei accentuează caracterul multisenzorial al spațiului. În zona de spa, pereții interiori curbi, finisajele calde și luminile filtrate compun o atmosferă de liniște și continuitate. Această opoziție între rigiditate și unduire, între control și libertate, generează un ambient coerent, unde fiecare spațiu răspunde funcțional și senzorial nevoilor utilizatorilor.
Din punct de vedere sustenabil, clădirea este orientată pentru a optimiza iluminatul natural și ventilația transversală, reducând consumul energetic. Fațadele ventilate, protejate de sisteme pasive de umbrire, contribuie la menținerea unui confort termic constant. Tehnologiile active – panouri fotovoltaice, pompe de căldură de înaltă eficiență și sisteme de ventilație cu recuperare de căldură – susțin autonomia energetică a clădirii. Sistemul de management al clădirii (BMS) monitorizează și optimizează continuu consumul și calitatea aerului interior. Au fost selectate materiale cu emisii scăzute de compuși organici volatili, iar vegetația integrată în designul interior contribuie la purificarea aerului și la crearea unei atmosfere echilibrate.
Proiectul îmbină expresia arhitecturală clară cu funcționalitatea și responsabilitatea ecologică, oferind o experiență spa coerentă, adaptată contextului contemporan.