
Comentariul autorului:
Proiectul propune o nouă funcțiune pentru Domeniul istoric Ion Ghica, de centru ecvestru, ce va juca un rol important în revitalizarea zonei și va aduce un centru de interes în localitate.
În urma unei analize și studiu istoric al sitului, proiectul are scopul de a recunoaște importanța arhitecturii și culturii regăsite în clădirile istorice. Clădirea conacului este restaurată și renovată, iar pentru îndeplinirea funcțiunii este propusă o extindere ce constă în grajduri și terenuri de echitație. Noul element unește vechiul cu contemporanul și aduce împreună localnicii și vizitatorii într-un nou spațiu de interacțiune.
Istoric
Domeniul lui Ion Ghica de la Ghergani se află la jumătatea drumului dintre București și Târgoviște. Este aflat în proprietatea dnei Irina Bossy-Ghica, moștenitoare a lui Ion Ghica prin tatăl ei, Dan Bossy-Ghica. Domeniul constă în 120.000 mp teren intravilan.
În clădirea istorică aflată pe sit se pot regăsi o serie de elemente arhitecturale care indică o perioadă specifică din istorie. Conacul ce se afla pe sit a fost reconstruit în două etape de către arhitecții Dimitrie Berindei și George Mandrea între 1869-1888 după schițele și viziunile lui Ion Ghica, proaspăt întors de la Paris, care dorea să transforme locul într-o reședință boierească de epocă din categoria „maisons de plaisance”. În urma unei cercetări realizate de arhitectul Corneliu Ionescu aflăm că la Ghergani au existat șase generații de conace, de la sfârșitul secolului XVI până la începutul secolului XIX. Arhitectul este de părere că Gherganii îmbogățesc istoria arhitecturii românești cu un nou tip arhitectural, acela specific conacelor de moșie. Se pot vedea și astăzi, la nivelul solului într-una dintre încăperi, vestigiile conacului din secolul al XVIII-lea.
Parcul ce face parte din ansamblu a fost amenajat chiar înainte de întemeierea conacului făcând parte din Codrul Vlăsiei. A luat drept inspirație grădinile de la Schonbrunn și Laxenburg.
Obiectiv
Ideea de ruină m-a fascinat mereu pentru că o ruină înseamnă un loc ce avea demult un înțeles definit de interpretarea individului. Acest loc funcționa în contextul său prin necesitatea omului de a domestici lucrurile din jurul lui. Ruina reprezintă trecerea timpului printr-o clădire, printr-un sistem de forme și atmosfere care își pierd treptat rolul, dar care, în același timp, sunt inepuizabile prin valoarea pe care o dobândesc.
Conacul de la Ghergani era un nod al unor vieți care se desfășurau în acest spațiu rural, într-un timp în care liniștea nu era doar căutată, ci era și găsită. Arhitectura acestei clădiri a permis timpului să o justifice în istorie ca fiind un model de casă boierească modernizată pentru multe dintre construcțiile apărute ulterior ei. Plecat în străinătate, Ion Ghica își aducea aminte mereu de casă și spunea că dorește să se întoarcă la Ghergani. Întregul domeniu exista prin relația pe care o avea omul cu locul de unde venise. În prezent, conacul aflat în formă de ruină restaurată m-a determinat să îi găsesc un scop care să nu îl altereze, dar să îl pună în valoare prin readucerea spiritului locului și prin refacerea relației dintre om și pământul său.
În vederea proiectului de diplomă, propunerea pentru situl Domeniul Ion Ghica de la Ghergani este revitalizarea spațiului rural și a comunității satului prin aducerea de noi funcțiuni care să conecteze locuitorii și vizitatorii. Se propun următoarele funcțiuni:
1.Club hipic (funcțiune principală), care cuprinde:
-ansamblu grajduri pentru cabaline (boxe cai, depozit harnașament, depozit furaje, etc);
-manej cu suprafața utilă de 1200mp (20x60m);
-teren de antrenament cu suprafața utilă de 1200mp (20x60m);
-atelier de potcovărie (cu depozitare) cu suprafața utilă de 280mp;
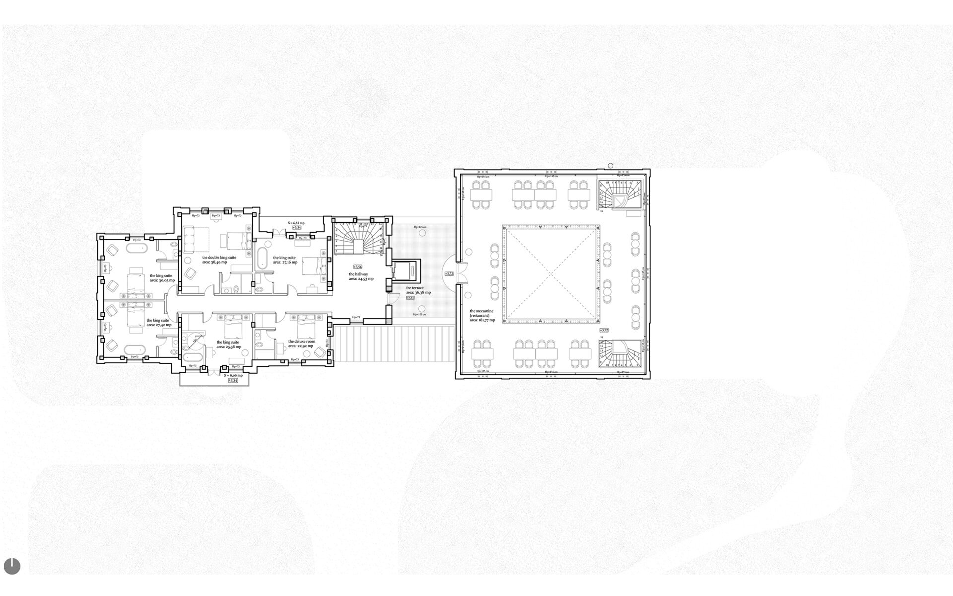
2.Conacul ce prin conversie capătă o nouă funcțiune - casă de oaspeți (funcțiune secundară), care cuprinde:
-zonă primire cu recepție și lobby cu suprafața utilă de 153mp;
-spațiu de socializare și de evenimente (287mp);
-restaurant și cafenea cu suprafața utilă de 335mp;
-camere de oaspeți cu suprafața utilă totală de 352mp și o capacitate de 24 de persoane (10 camere: apartamente tip family cu baie proprie, 8 camere duble cu baie proprie );
Clubul hipic oferă lecții de echitație pentru toate categoriile de vârstă, plimbări cu caii, spațiu de evenimente, saloane de discuții, cafenea, restaurant, bibliotecă, parc natural și cazare tip regim hotelier. Se propune amenajarea unei parcări cu o capacitate de 20 de locuri.
În vederea desfășurării activităților enunțate mai sus, se propune reamenajarea întregului parc aflat pe domeniul Ghergani pe un traseu bine definit, atât pietonal cât și pentru cabaline, luând în considerare calitatea acestuia de monument istoric de categoria A.
Descriere volumetrică
Decizile luate privind forma și noua identitate estetică a conacului și a celorlalte clădiri s-au bazat pe observații în urma studiului. Multe dintre elementele arhitecturale au fost păstrate în sit și toate dintre acestea sunt bazate pe forma primară a cercului. Se pot găsi motive precum floarea, crucea, elipsa, chiar și apoziția cu pătratul. Materialul primordial a rămas cărămida care nu este doar structural, ci joacă un rol important în identitatea locului. Intervenția arhitecturală de pe sit, clădirea grajdurilor, mimează elementele decorative găsite în zidărie și relevă o nouă formă ce reprezintă conceptul și fundația volumetriei și designului interior. Această nouă formă-simbol inspiră designul a patru piese de mobilier ce se vor găsi în interioarele conacului, împreună cu alte detalii introduse. Ca parte din concept, camera pe unde se dă accesul secundar în conac este gândită sub forma unui vestibul, marcând scenografic introducerea noii identități a locului și în același timp amintind de istoricul clădirii.
Grajdurile sunt construite pe un sistem stâlp-grindă din lemn și se compun dintr-un perete de cărămidă perimetral care se comportă ca o coajă și oferă confort termic. Peretele este perforat cu mici ferestre ce permit cailor o conexiune directă cu exteriorul, ferestre sub forma-simbol rezultată din eliminarea unor cărămizi din zidărie.