
Comentariul autorului:
În peisajul cotidian, școala reprezintă un reper esențial, atât ca bază pentru dezvoltarea personală și profesională, cât și ca punct de referință fizic. Privită din perspectiva dezvoltării unui cartier, școala joacă un rol central nu doar în educația copiilor, ci și în formarea și consolidarea comunităților locale.
Pe de-o parte, amplasamentul, accesibilitatea și nivelul educațional oferit influențează decizia familiilor tinere de a se stabili într-o anumită zonă. Pe de altă parte, rolul social al școlii rămâne un aspect fundamental, deși adesea este plasat pe un plan secund.
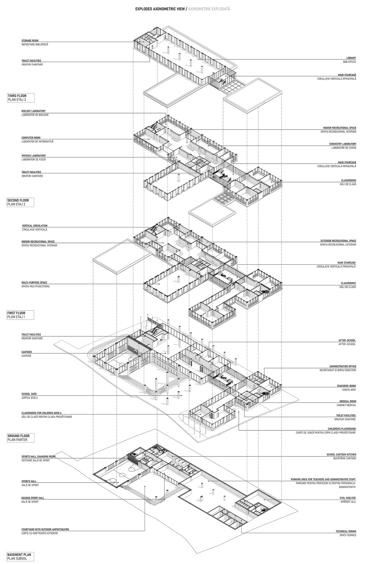
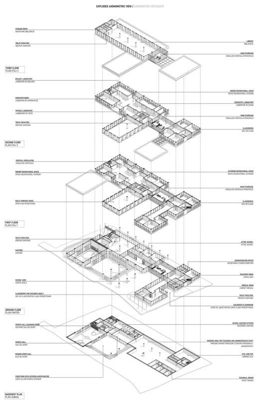
În acest sens, proiectul își propune realizarea unei unități de învățământ în cadrul cartierului Rahova, pe terenul delimitat de străzile Petre Ispirescu și Iancu Jianu. Amplasamentul se situează la intersecția dintre trei tipuri de urbanitate diferite, formate din blocuri socialiste, locuințe individuale și construcții contemporane, toate acestea reprezentând un amestec rezultat din multiplele planuri de sistematizare aplicate Bucureștiului de-a lungul timpului.
Din punct de vedere al funcțiunii educaționale, zona studiată prezintă un deficit important la nivelul spațiilor din cadrul școlilor. În urma analizei situației actuale, se poate remarca o necesitate majoră de astfel de spații educaționale, cele existente având în prezent o lipsă de spațiu și funcționând în mai multe schimburi sau în spații neconforme. Acest fapt nu se limitează doar la spațiile de învățare propriu-zise, ci se extinde și prin lipsa unor zone de recreere și agrement dedicate elevilor. Absența unor astfel de spații reduce calitatea experienței educaționale și limitează potențialul școlii de a funcționa ca un mediu formator.
Urmărind aceste nevoi, proiectul își propune conturarea unui dialog între imaginea neomogenă a contextului și volumetrie, prin intermediul conexiunii dintre spațiile interioare și cele exterioare, menținând constant atenția față de utilizatorii principali – elevii. Propunerea pune accent pe conexiunea dintre spațiile educaționale și cele recreative, transformând mediul destinat învățării într-un cadru interactiv și atractiv pentru copii.
Astfel, curtea școlii capătă un caracter multifuncțional, fiind împărțită în mai multe zone, și anume: grădina școlii, formată dintr-o zonă verde ce devine loc de întâlnire între generații și se extinde mai departe pe verticală prin imaginea unor terase verzi; amfiteatrul exterior, un spațiu destinat atât activităților sportive, cât și diverselor evenimente școlare și comunitare; și locul de joacă, o zonă destinată copiilor din clasele pregătitoare, adaptată nevoilor acestora, ce poate beneficia de o supraveghere suplimentară.
Prin integrarea acestei funcțiuni educaționale, cartierul câștigă un reper semnificativ, definit nu doar prin imaginea sa vibrantă, ci și prin rolul său ca fundație pentru generațiile viitoare. Totodată, prin crearea unei strânse conexiuni între spațiul de curte și zonele interioare, școala capătă o nouă imagine, ce contribuie la dezvoltarea elevilor.