
Comentariul autorului:
În ultimii ani, municipiul Blaj traversează o perioadă de creștere economică susținută, reflectată direct în cererea tot mai diversificată pentru locuirea colectivă. Această nevoie pentru fond locativ nou nu se rezumă doar la crearea de unități locative suplimentare, ci implică o adaptare fină la varietatea de standarde funcționale și de confort cerute de comanditari. Dinamica actuală oglindește atât evoluția economică și socială a orașului, cât și tendința de modernizare a mediului construit.
Zona centrală a orașului devine, în acest context, un teritoriu cheie pentru reconfigurarea fondului construit existent, caracterizat adesea de clădiri modeste ca expresie arhitecturală și depășite funcțional. Aici, provocarea majoră este aceea de a găsi soluții de densificare adaptate contextului, care să răspundă cerințelor contemporane fără a compromite identitatea urbană, memoria locului și coerența fronturilor stradale.
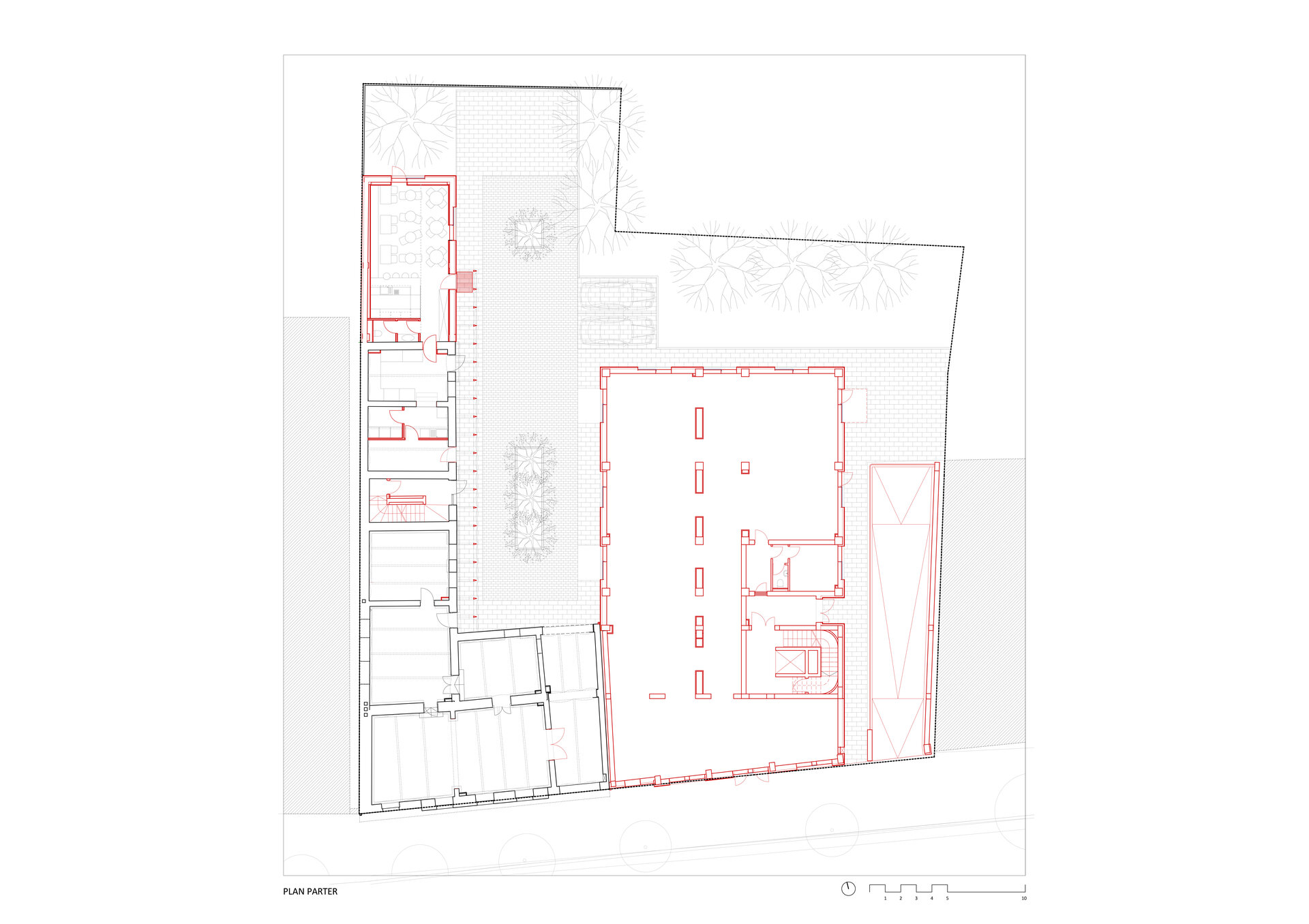
Proiectul de față propune o dublă strategie. Pe de o parte, este păstrată și refuncționalizată o clădire cu valoare ambientală, tipică zonei centrale a Blajului, cu regim P+1 și o fațadă istorică orientată spre Bulevardul Republicii. Pe de altă parte, aceasta este completată de un corp nou, ridicat în locul unei construcții parter fără relevanță arhitecturală și cu potențial redus de refuncționalizare. Această asociere între vechi și nou devine motorul unei compoziții urbane ce păstrează tipologia de ocupare în formă de „L” și susține continuitatea frontului bulevardului.
La nivel urban, ansamblul urmărește menținerea scării locului și stabilirea unor relații de bună vecinătate cu imobilele din proximitate. Este reactivată permeabilitatea parcelei prin ganguri pietonale, iar curtea interioară este transformată într-un spațiu comun, destinat tuturor rezidenților, indiferent de durata șederii lor. Această curte, împreună cu accesibilitatea directă din Bulevardul Republicii, creează o secvență spațială ce mediază între agitația străzii principale și intimitatea locuirii.
Funcțional, parterul orientat spre bulevard găzduiește funcțiuni comerciale și servicii publice, conferind activitate și transparență la nivelul străzii. În zona curții interioare, un punct de alimentație publică este destinat exclusiv rezidenților cazați temporar. Apartamentele permanente sunt dispuse în corpul nou, beneficiind de standarde dimensionale și de confort adaptate locuirii de lungă durată. În clădirea păstrată sunt amenajate apartamente destinate locuirii temporare, operate fie în regim hotelier, fie ca locuințe de închiriat pe termen scurt sau mediu.
Arhitectural, intervenția își propune o integrare discretă în contextul eterogen al fronturilor de pe Bulevardul Republicii. Noul volum recurge la un limbaj contemporan temperat, capabil să intre în dialog cu arhitectura istorică a clădirii existente, evitând atât mimetismul, cât și ruptura brutală de context. Materialele și proporțiile sunt calibrate pentru a crea o tranziție naturală între cele două epoci constructive. Amenajările interioare ale unităților de locuire temporară, parte esențială a proiectului, sunt gândite într-o cheie neutră și reținută, astfel încât să ofere o bază flexibilă capabilă să se adapteze unei game largi de utilizatori. Atmosfera rezultată pune accent pe confort, funcționalitate și pe un nivel de finisaj adecvat standardelor contemporane, fără excese decorative. Prin această intervenție, proiectul urmărește o abordare integrată a regenerării urbane în zona centrală a unui oraș mic, combinând conservarea valorilor existente cu introducerea de funcțiuni și tipologii actuale, în sprijinul unei vieți urbane diversificate și echilibrate.