
Comentariul autorului:
Educația recreativă este o educație de loisir, un mod de petrecere a timpului liber și o formă voluntară de învățare, accesibilă cursanților de toate vârstele. Aceasta se concretizează în special sub forma cursurilor de artă destinate grupurilor de amatori, încadrate în sfera educației artistice recreative. Acest tip de educație implică metode de predare alternative și se desfășoară într-un altfel de spațiu de învățare, într-o altfel de școală.
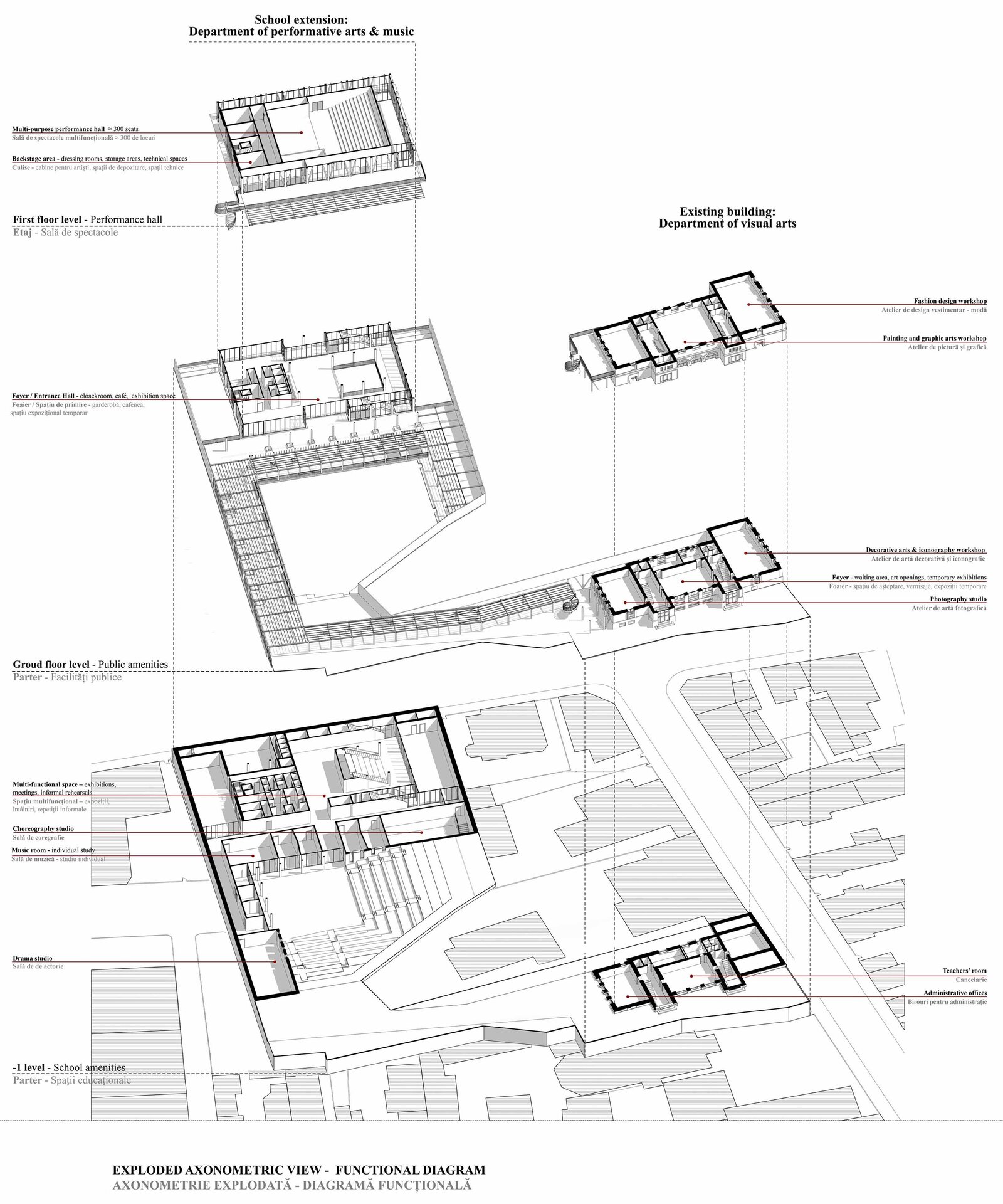
Proiectul are ca temă extinderea Școlii de Artă București, instituție ce face parte din rețeaua națională a școlilor populare de artă. Aceasta funcționează în într-o locație subdimensionată și insuficient adaptată cerințelor și nevoilor contemporane. Alegerea și fundamentarea temei de diplomă se bazează, în primă instanță, pe propriile experiențe ca fost cursant al unei astfel de instituții de învățământ, susținute de numeroase vizite și conversații avute cu personalul Școlii de Artă București. Aceste mici anchete m-au ajutat să dau un contur inițial realității școlilor de artă populară din România, care, în ciuda neglijenței autorităților, reprezintă unul dintre puținii piloni stabili pentru educația culturală a publicului larg. Această primă imagine a fost completată de cercetările ulterioare care mi-au confirmat că în prezent, cererea pentru școlile de arte depășește considerabil capacitatea infrastructurii educațional-culturale existente în România.
Astăzi, Școala de Arte București a rămas singura instituție publică din oraș dedicată învățământului artistic recreativ, accesibil doritorilor de toate vârstele. Aflată sub administrația Primăriei Municipiului București, școala are în prezent peste 700 de cursanți înscriși, cu vârste cuprinse între 4 și 70 de ani, având anual o cerere de înscriere mult mai mare, care, din cauza restricțiilor impuse de spațiul său limitat, nu poate fi onorată. Astfel, deși actualul său sediu are o tradiție îndelungată în ceea ce privește rolul său educațional și cultural, spațiile interioare rămân neadecvate specificului și nevoilor învățământului artistic recreativ contemporan.
Situată pe Strada Cuza Vodă, la numărul 100, în vechea mahala a tăbăcarilor, ce s-a dezvoltat începând cu secolul al XIX-lea în jurul atelierelor de pielărie de pe lângă râul Dâmbovița, vecinătățiile școlii sunt marcate de situații urbane contrastante. Aflată în mijlocul locuințelor individuale și colective de mici dimensiuni, delimitate de circulații înguste și aglomerate, modificate în timp și fragmentate vizual, curtea școlii se extinde alături de terenul viran aferent ei spre frontul bulevardului Dimi¬trie Cantemir, parte a axei Nord-Sud, care izolează și închide interiorul insulei urbane.
În acest sens, miza proiectului este aceea de a oferi școlii de artă spații contemporane, adecvate desfășurării activităților artistice, anticipând totodată și nevoile sale viitoare având în vedere statutul său de potențial formator în ceea ce privește educația și cultura maselor. În același timp, proiectul adresează și problematica urbană a contextului, acționând ca un liant între axa aglomerată a orașului, reprezentată de bulevard, și țesutul dominat de locuințe de mici dimensiuni. Extensia școlii existente se așază pe sit prin completarea frontului străzii adiacente Poterași, activând simultan și spațiul neconstruit din nucleul sitului. Un gest formator devine crearea unei legături vizuale, spațiale și funcționale între cele două corpuri, vechi și nou. Pergola unificatoare creează un traseu spațial, ce înconjoară amfiteatrul exterior, multifuncțional, care devine o parte dominantă a proiectului, un element de ordine la granița dintre interior și exterior, dintre vechi și nou, dintre școală și oraș.