
Comentariul autorului:
Scopul proiectului la nivel transfrontalier este de a integra Timișoara în strategiile europene de conservare a patrimoniului Art Nouveau prin implementarea unui centru de cercetare administrat de organizația The Art Nouveau European Route. Timișoara face deja parte din această organizație, iar implementarea unui centru de cercetare local ar consolida conexiunile transfrontaliere deja existente la nivelul ideologiei urbanistico-arhitecturale prezente în fostele țări ale Imperiului Dualist Austro-Ungar. Aceste acțiuni, la nivel macro, au rolul de a fundamenta tehnici și metodologii de promovare, conservare și intervenție asupra clădirilor Art Nouveau (secession). Programul arhitectural al sinagogilor istoriciste de secol XIX este prezent în țări precum Serbia, Ungaria, Slovacia, Cehia, România și Slovenia, iar astfel de colaborări pot duce la implementarea unor circuite turistice transfrontaliere care au ca scop promovarea curentului și crearea unui îndrumar de intervenție restaurativă, cât și funcțională.
La nivel național, România dispune de o multitudine de sinagogi și clădiri în stil secession, un număr semnificativ dintre acestea fiind în stare de ruină. Apare nevoia unor exemple de intervenție, iar implementarea unui astfel de centru de cercetare cu program muzeal ar spori tranzitul turistic, iar restaurarea și conversia complexului mozaic din Fabric într-un astfel de centru cultural, ar deveni un exemplu de bună practică pentru situații similare de ansambluri istorice nevalorificate
La nivel local, există o serie de proiecte în desfășurare la nivelul cartierului Fabric – PUZ CP Fabric, Proiectul de Reabilitare al Pieței Traian, realizarea temei de proiectare a sinagogii din Fabric și punerea în siguranță a acesteia, urmând procesul de restaurare. Cartierul Fabric se dorește a fi al doilea centru al orașului, astfel încât un număr mare de actori culturali activează frecvent în Fabric, urmând implementarea unor noi centre culturale precum Sala 2 a Teatrului German și conversia unei clădiri din ansamblul Colterm pentru a acomoda un campus al Facultății de Medicină. Candidatul acestei lucrări a avut interviuri cu majoritatea actorilor proiectelor de mai sus și a ținut în vedere toate strategiile pentru a soluționa prezentul proiect.
Crearea acestor centre culturale, distribuite unitar pe teritoriul cartierului, duce la formarea unei infrastructuri culturale benefice pentru dezvoltarea culturală și economică a cartierului și orașului. Scopul implementării centrului de cercetare cu program muzeal la nivelul complexului mozaic din Fabric este de a crea un centru cultural major, conectat cu centrele culturale mai mici din punct de vedere ierarhic – astfel se creează ceea ce se numește traseu cultural, care duce la valorificarea spațiilor publice și a fondului patrimonial din cartier și oraș.
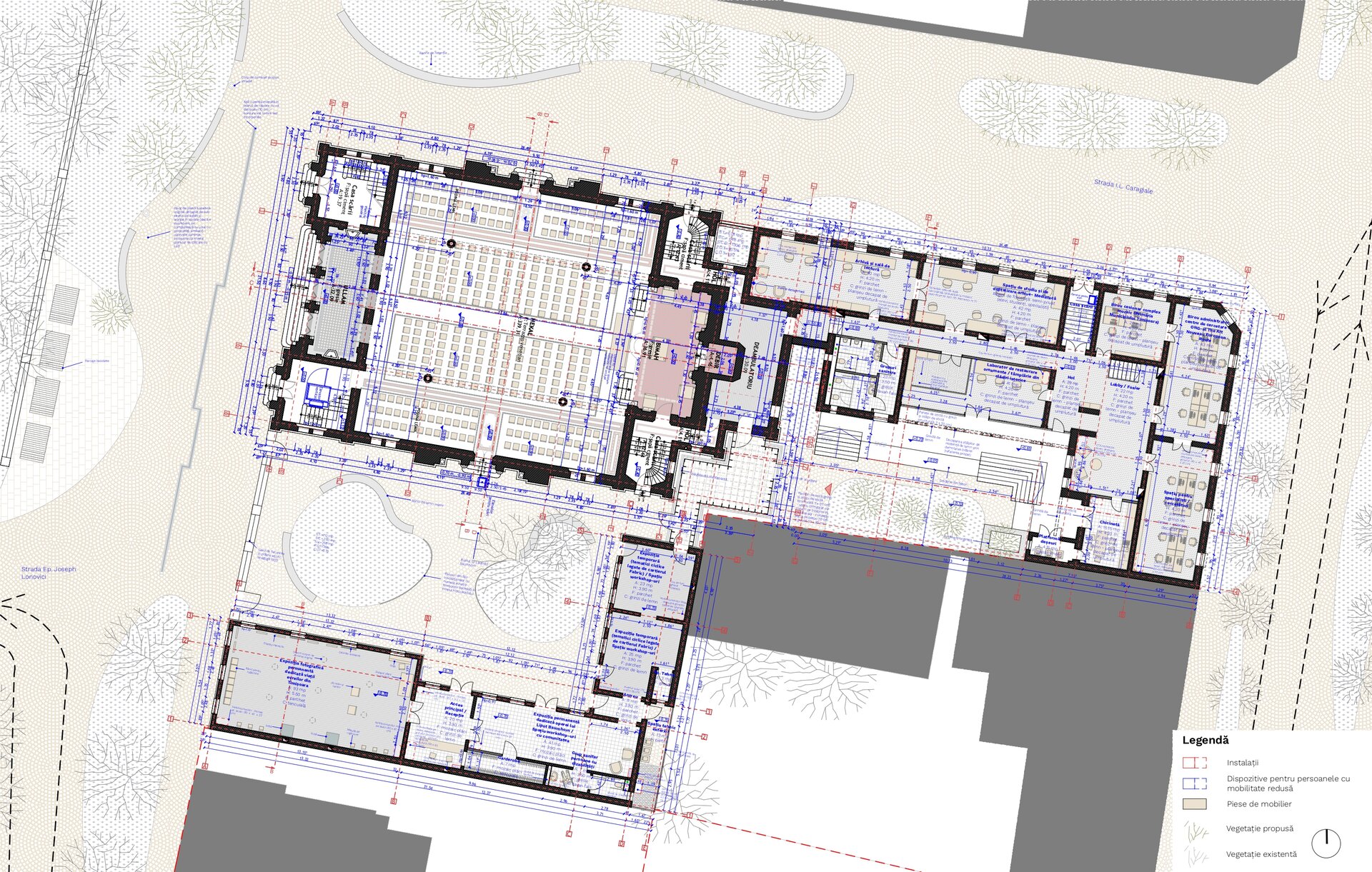
Complexul mozaic din Fabric este format din sinagoga neologă, casa de rugăciune și fostul centru israelit de îngrijire a bătrânilor. De-a lungul timpului, zona înconjurătoare a fost modificată prin apariția unor situri industriale, clădiri de birouri, cabinete medicale și multiple parcări private. În cadrul proiectului de transformare a complexului mozaic într-un centru de cercetare cu un program muzeal și sediul transfrontalier The Art Nouveau European Route, s-a realizat reconectarea celor trei clădiri și corelarea lor cu spațiul public din apropiere, precum și cu cele două curți ale complexului mozaic.
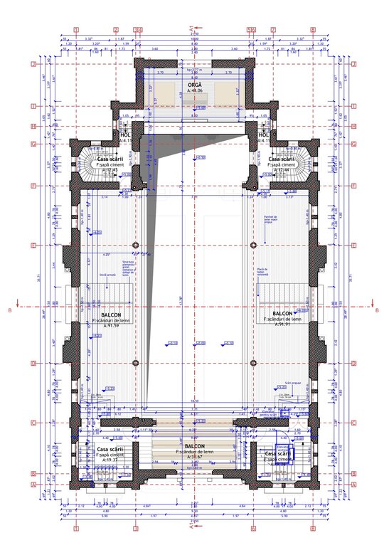
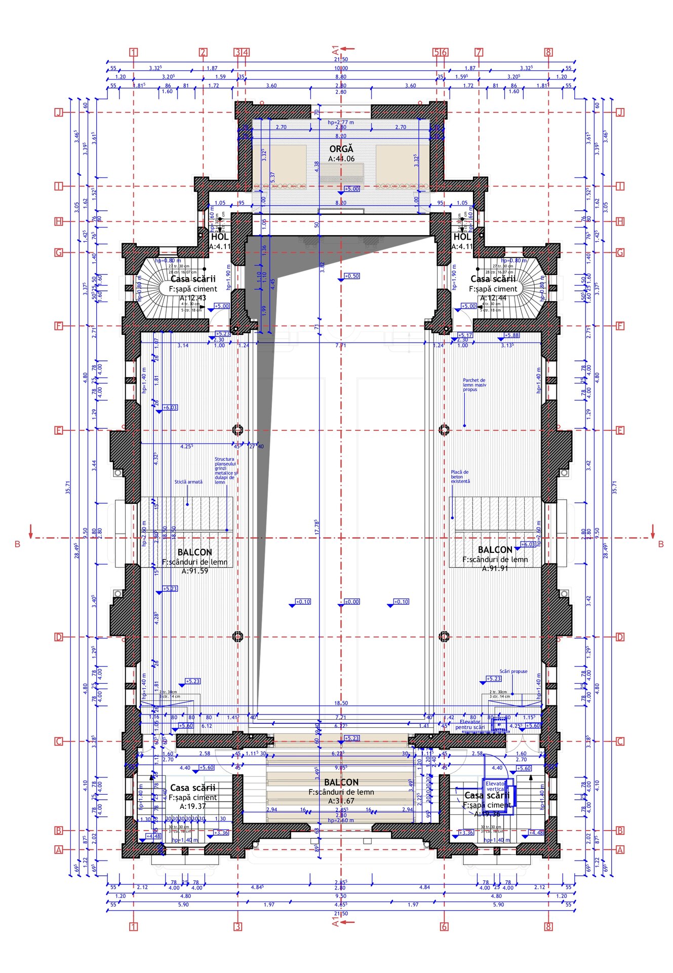
La nivel conceptual, scopul a fost acela de a extinde Parcul Regina Maria dincolo de linia gardului, recuperând, de fapt, o zonă numită Câmpul Frângherilor, care a făcut parte integrantă din parc până la sfârșitul secolului al XIX-lea, când a fost parcelată. Pentru a asigura conexiunea fizică între cele trei clădiri, a fost inserat un pavilion cu structură de sticlă, în jurul căruia a fost amplasată o rigolă de scurgere.
La nivel funcțional, sinagoga găzduiește spectacole muzicale și teatrale, conferințe, precum și expoziții temporare în cadrul complexului. Casa de rugăciune găzduiește expoziții permanente, o sală de conferințe sau prezentări și un spațiu dedicat activităților interactive cu comunitatea. Cele două clădiri menționate anterior au funcții publice, în timp ce casa Coșariu este un centru de cercetare (semi-privat).
Candidatul a realizat o serie de interviuri cu biroul de arhitectură Subcontrol cu privire la PUZ CP Fabric, cu comunitatea locală de evrei, unde s-au abordat subiecte precum posibile funcțiuni care să respecte religia mozaică, și cu Heritage of Timișoara, unde au fost discutate tematici precum tipurile de spații în care se pot realiza workshop-uri. Studentul a realizat o expoziție dedicată lui Baumhorn, în cadrul Atelierului Non-Formal de Planificare Spațială, și a fost ghid în cadrul unui tur dedicat sinagogii, realizat de Facultatea de Arhitectură și Urbanism din Timișoara. Diversele activități cu subiect comun, în cadrul cărora a participat candidatul, au dus la concretizarea unei strategii coerente de intervenție și la înțelegerea potențialului de conversie a complexului mozaic din Fabric.