
Comentariul autorului:
Acest proiect a decurs din calitățile locului, așa cum l-am descoperit de la prima vizită pe sit. O locuință tip vagon, cu o vechime mai mare de o sută de ani, trebuia reabilitată și adaptată uzanțelor contemporane. Dar cea mai mare surpriză a fost curtea, în care exista o magazie derapanata, precum și un gutui foarte bătrân. Locul acela strâns, dintre magazie și casă, sub umbra gutuiului, a fost o sincopă neașteptată, punctul de inspirație pentru toate deciziile ulterioare.
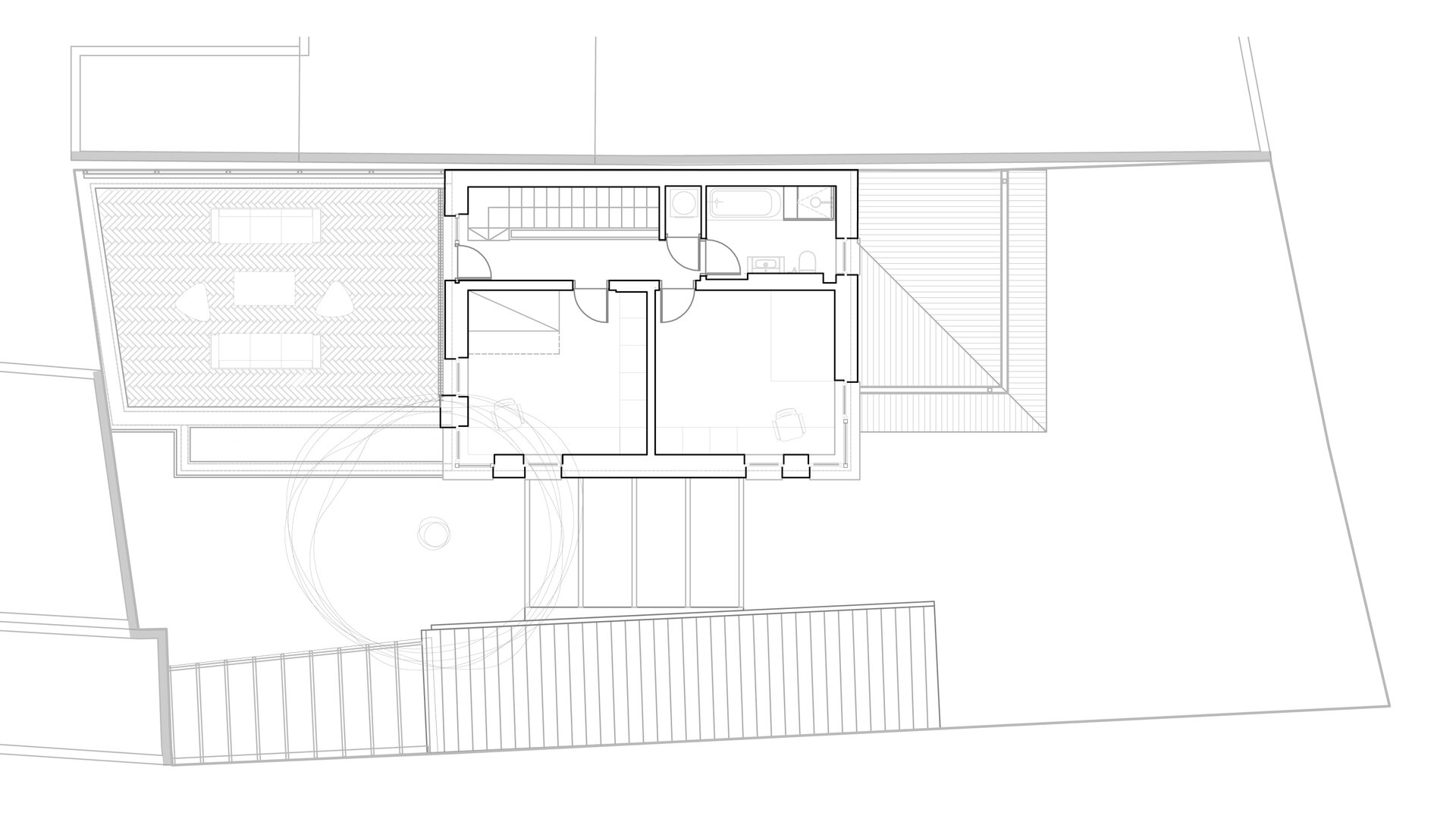
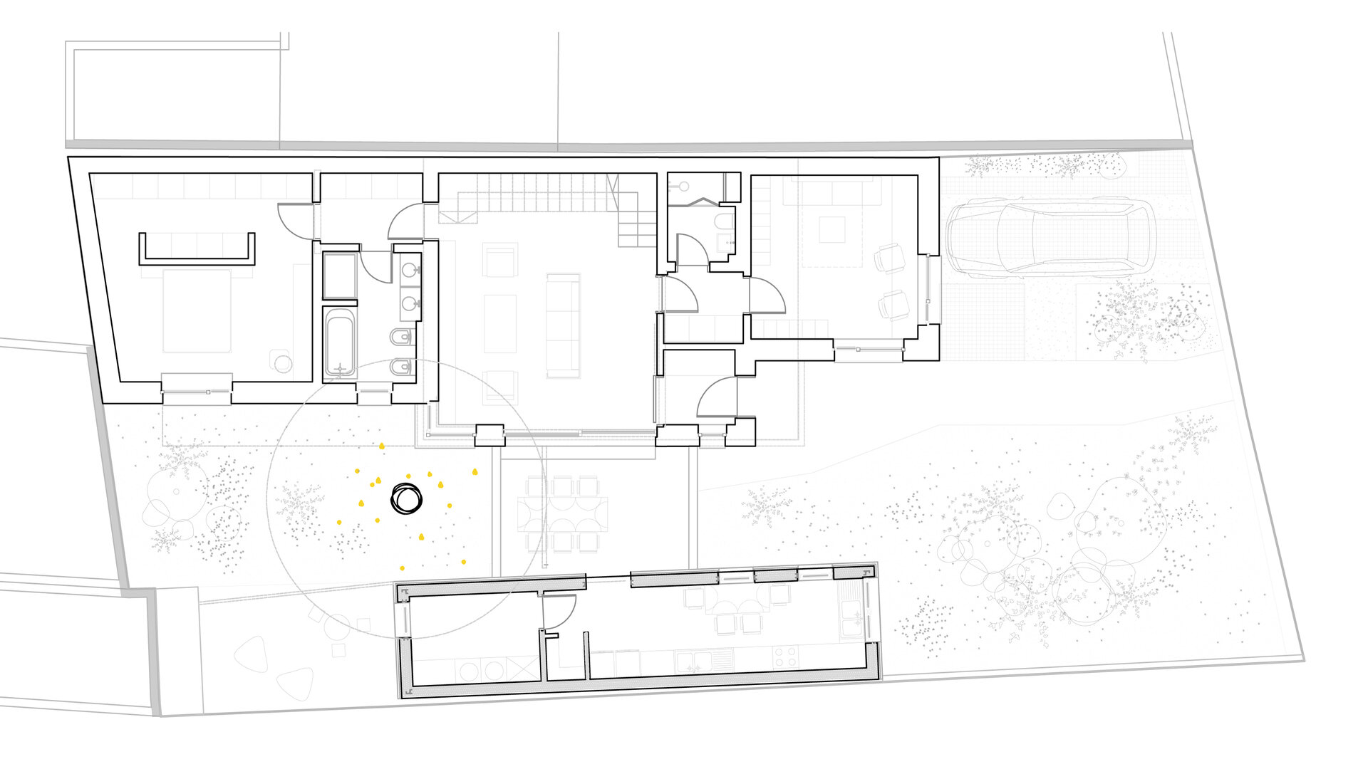
Reabilitarea casei principale s-a realizat pe același contur, cu o cameră mare în mijlocul casei, o cameră de oaspeți către stradă și o cameră intimă, orientată către curtea din spatele. Etajul parțial cuprinde două dormitoare, cu ferestrele orientate diagonal, către direcțiile cu profunzimea cea mai mare.
Dar decizia importantă a fost acomodarea bucătăriei și a camerei tehnice în vechea magazie, reabilitată în același volum. Între casă și zona bucătăriei a fost amplasată terasa de lângă gutui, umbrită cu o pergolă, posibil pavilion și spațiu intermediar. Acest loc, așezat în mijlocul curții dintre case, este deschis atât către gradina cu flori dinspre stradă, cât și spre zonele mai intime din profunzimea sitului.
În această configurație casa nu se întoarce cu spatele la stradă pentru a obține o curte exclusiv privată, ci permite locuirea în grădină și în contact cu strada și orașul deopotrivă. Credem că acest proiect a reușit să preia o tipologie de locuire a vechiului București și să o adapteze cu discreție necesităților contemporane.