
Comentariul autorului:
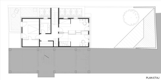
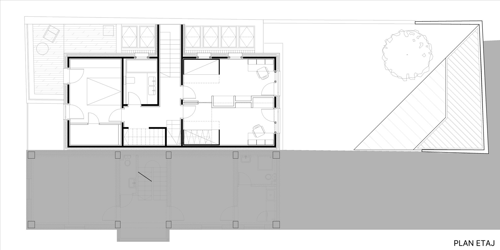
O casă vagon mai degrabă mică a fost reabilitată şi extinsă prin suprapunerea unui volum independent la etaj. Problema de la care a plecat ideea proiectului a fost lumina. Dată fiind configuraţia calcanului cu inălţime mare, de aproximativ 10m, poziţionat pe întreaga latură sudică, mica casă vagon nu mai primea lumină naturală decât pe înserat, dinspre strada Lipova de la vest. Astfel, păstrarea orientării către sud conform ţesutului vernacular nu mai era posibilă; de asemenea, nici pătrarea unei volumetrii doar pe parter nu era potrivită, aceasta generând doar spaţii neluminate şi insalubre. Astfel, creşterea înălţimii noii volumetrii până la coama calcanului sudic a fost o necesitate obiectivă. Suprapunerea noului volum a fost pusă în acord cu retragerile şi geometria calcanului vecin, astfel încât imaginea străzii să nu fie afectată de noua construcţie. Suprapunerea noului volum a fost retrasă cu 2m de la limita nordică de proprietate astfel încât între calcanul păstrat şi faţada etajului să poată fi prevăzută o fâşie de luminatoare. Această configuraţie permite iluminarea naturală a spaţiilor de la parter. Geometria legăturii verticale dintre cele două volume suprapuse a permis prevederea unui spaţiu intermediar la mezanin, un birou cu balustrada metalică cât de permeabilă cu putinţă.
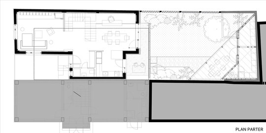
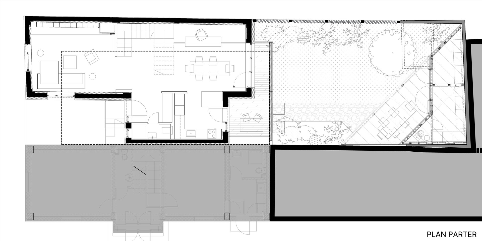
Spaţiile de zi, dispuse la parter, au fost orientate către mica grădină din spate. Prezenţa calcanelor vecine pe 2 laturi din 3 a fost estompată prin prevederea unui pavilion de grădină, care să răspundă necesităţilor de depozitare, dar şi să contribuie la imaginea dinspre curte. Geometria acestui pavilion este triunghiulară pentru a se lipi cât mai mult de calcanele existente, lăsând zona luminată din coltul grădinii posibil a fi plantată. Astfel s-a obţinut o profunzime a întregii proprietăţi, succesiunea spaţiilor de la stradă pâna la capătul grădinii fiind perceptibilă.
Toate considerentele explicate ţin de adaptarea la contextul complicat, atât volumetric faţă de calcanele vecine, cât şi pentru a primi cât mai multă lumină în interiorul locuinţei sau în vederea construirii unei imagini conviviale pentru grădină. Acest tip de adaptare a continuat şi în prevederea multiplelor finisaje, fiecare ales în acord cu rolul lui, dar şi pentru obţinerea unor dialoguri vizuale cu diferitele vecinătăţi.