
Comentariul autorului:
Proiect complicat: imobil situat în Parcelarea Cotroceni, zonă protejată; o casă fără un caracter aparte, un modernism doar mimat pentru un imobil construit pentru speculă imobiliară. În perioada interbelică aici a locuit la parter, cu chirie, fotograful Willy Pragher.
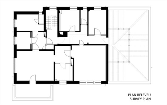
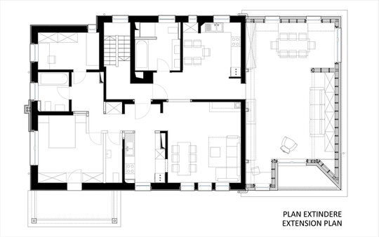
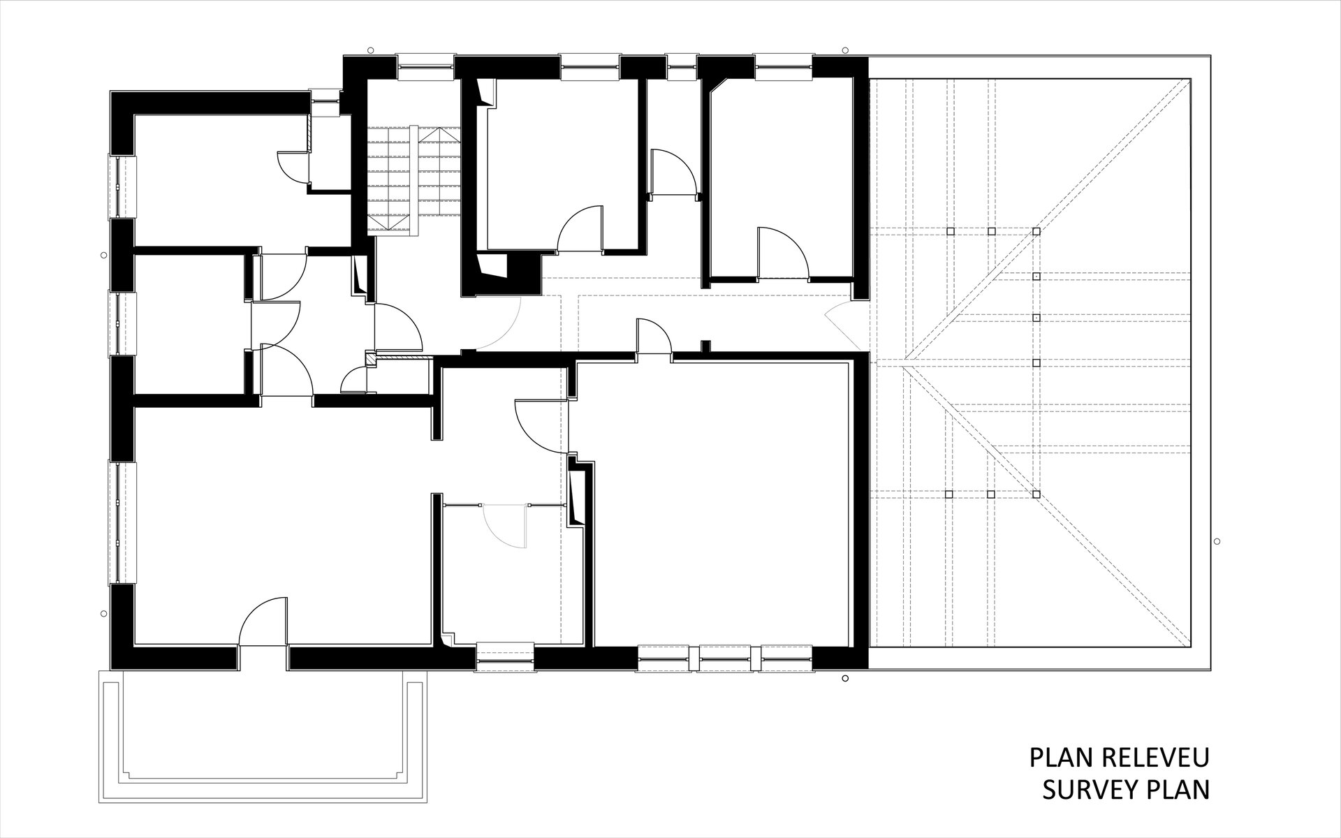
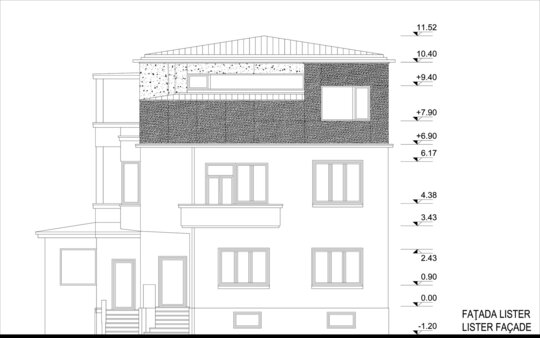
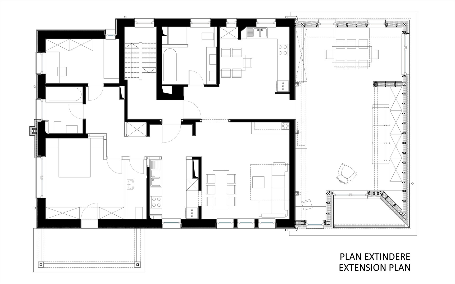
Temă complicată: beneficiarul real al proiectului este doar unul dintre cele 3 apartamente care sunt suprapuse în imobil; tema a cerut extinderea apartamentului de la ultimul nivel pentru a folosi o travee cu un pod foarte jos, greu sesizabil dinspre exterior. Astfel, şantierul a trebuit să se desfăşoare fără întreruperea locuirii în apartamentele de dedesubt.
Extinderea a putut fi realizată doar într-un regim de construcţie uşoară, cu o structură din lemn, pentru a îngreuna cât mai puţin presiunea transmisă către fundaţii. În acelaşi timp, consolidarea întregului imobil a trebuit propusă doar dinspre exterior, prin cămăşuirea unor pereţi de zidărie şi descărcarea eforturilor suplimentare către o grindă de fundare.
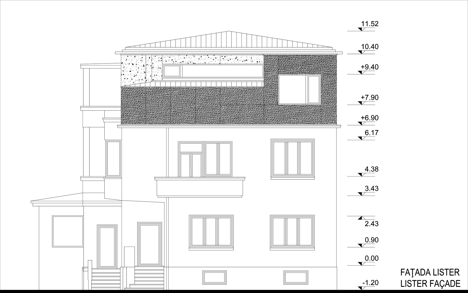
Volumetria extinderii a fost gândită pentru a respecta caracterul zonei protejate, dar fără a deveni o simplă pastişă a unei perioade de mult apuse. Astfel, placarea extinderii cu fibrociment diferenţiază intervenţia nouă de construcţia pre-existentă. Aceasta era finisată cu tencuială strop, caracteristică pentru perioada interbelică. În rest, în urmărirea execuției făcută de atelier dePlano s-a încercat păstrarea detaliilor originale, fără a interveni sau a modifica nimic din apartamentele locuite în timpul şantierului.