
Comentariul autorului:
Propunerea pentru Muzeul Sportului din București își construiește identitatea la intersecția dintre memorie, regenerare urbană și arhitectură contemporană. Situat într-o zonă centrală cu densitate
istorică și culturală ridicată, proiectul se bazează pe reactivarea unui ansamblu existent – Casa Florescu-Manu și terenul adiacent – printr-o intervenție care conservă și valorifică zona.
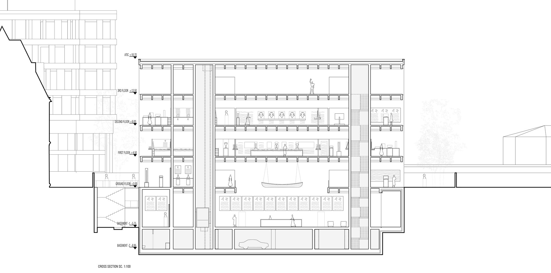
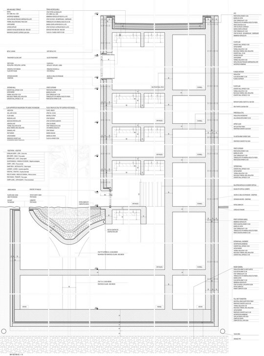
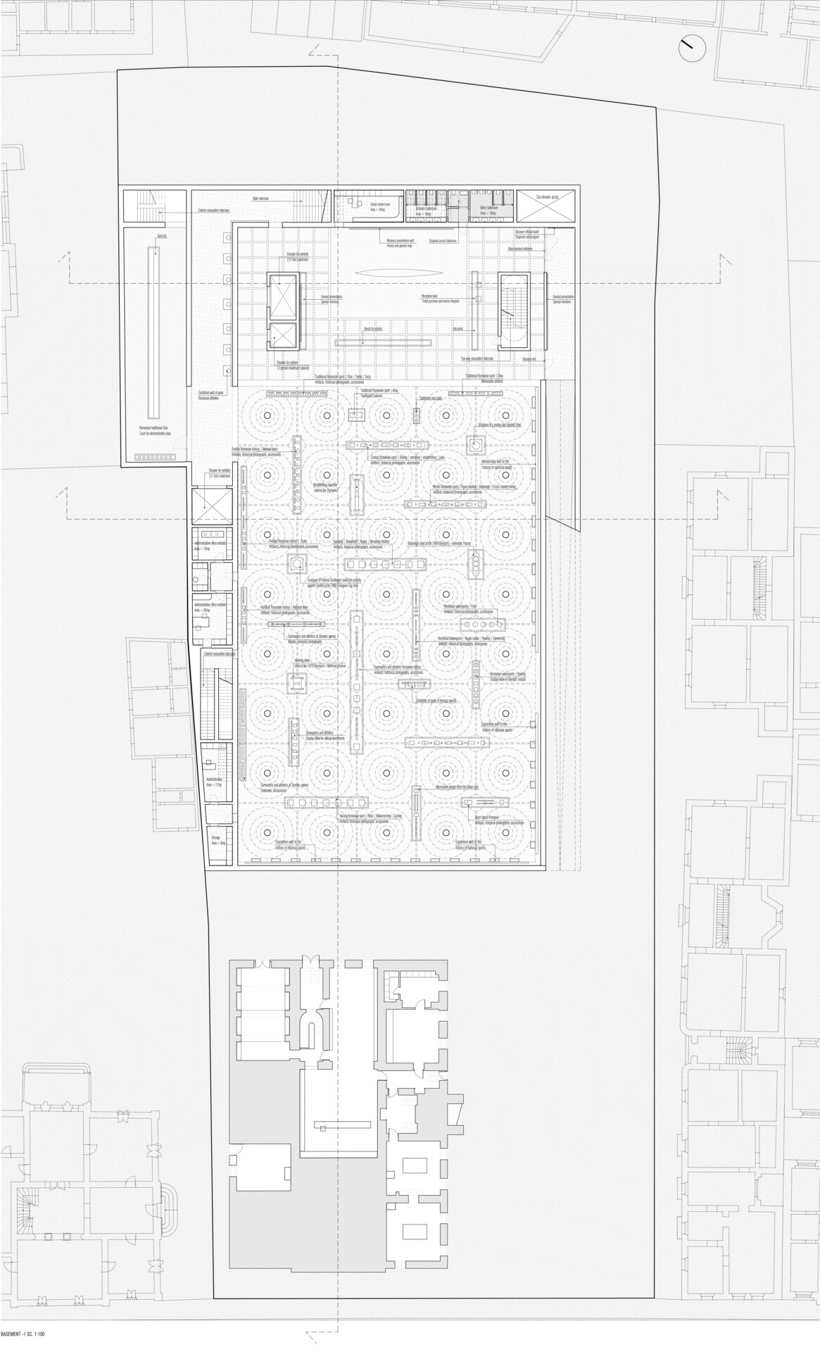
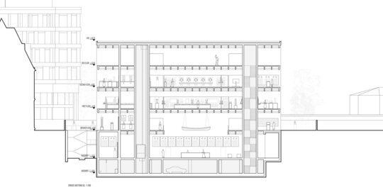
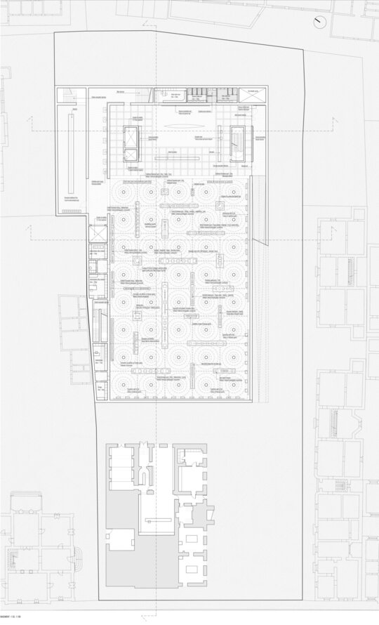
Volumul nou al muzeului este amplasat în adâncimea parcelei, lăsând liberă grădina din față, transformată într-un parc tematic cu caracter vegetal, integrat organic în traseul pietonal către Calea Victoriei. Această grădină publică este amenajată deasupra muzeului propriu-zis, care se dezvoltă în subteran. Spațiile expoziționale de la nivelul -1 sunt susținute de o structură de stâlpi cu capiteluri tip „ciupercă”, ce formează o rețea ritmică și, totodată, cuve de pământ pentru
vegetația de deasupra. În placa structurală care delimitează grădina sunt integrate luminatoare circulare, ce pătrund în muzeu și creează un joc subtil de lumină naturală, contribuind la caracterul contemplativ și monumental al spațiului interior.
Casa Florescu-Manu, în legătură directă cu Calea Victoriei, va primi funcțiunea unei cafenele care include și gift shop-ul muzeului, fiind o funcțiune ce se deschide atât către artera principală, cât și către grădina sitului.
Accesul publicului se face la nivelul -1, într-o zonă de recepție amplă, deschisă pe două etaje. Traseul expozițional este gândit, în subsol, ca o sală hipostilă, iar în etajele supraterane pe un plan liber, care permite o amenajare versatilă a muzeului, și care culminează cu ieșirea în curtea amenajată cu vegetație și statuete tematice – un spațiu public de respiro și reflecție, parte integrantă a experienței de vizitare.
Fațada principală a volumului nou este concepută ca un ecran opac, care nu intră în conflict vizual cu Casa Florescu-Manu, clădire de patrimoniu situată la stradă, și care funcționează ca element de ancorare istorică și punct simbolic de plecare în parcursul muzeal. Prin acest contrast asumat, arhitectura contemporană se retrage vizual, dar capătă forță prin discreție și rigoare.
Funcțiunile muzeului includ expoziții permanente și temporare, sală multifuncțională, ateliere, arhivă care poate fi vizitabilă temporar și spații administrative. Grădina de deasupra devine un element activ – nu doar peisagistic, ci și funcțional și simbolic – legând muzeul de oraș.
Astfel, Muzeul Sportului nu este doar un spațiu expozițional, ci un instrument urban de regenerare, un loc care cultivă memoria colectivă, stimulează reflecția și reintroduce un parcurs public
relevant în inima Bucureștiului.