
Comentariul autorului:
Moara Prohaska reprezintă o mărturie a industrializării timişorene şi un punct de reper în traseul malurilor Begăi. Ridicată în a doua jumătate a secolului XIX, clădirea mărturisește ritmul vechii producții mecanice. Într-o lume care uită prea repede, acest edificiu poartă în structura sa memoria muncii, a energie solare filtrate prin ceasurile de câmpie și a freamătului măcinării făinii.
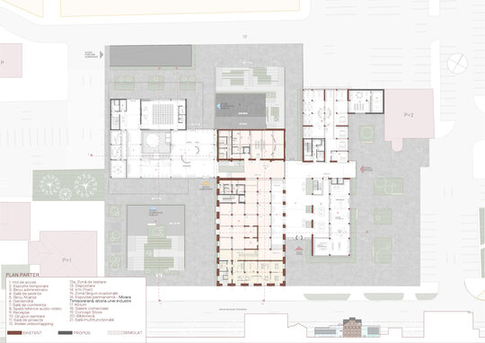
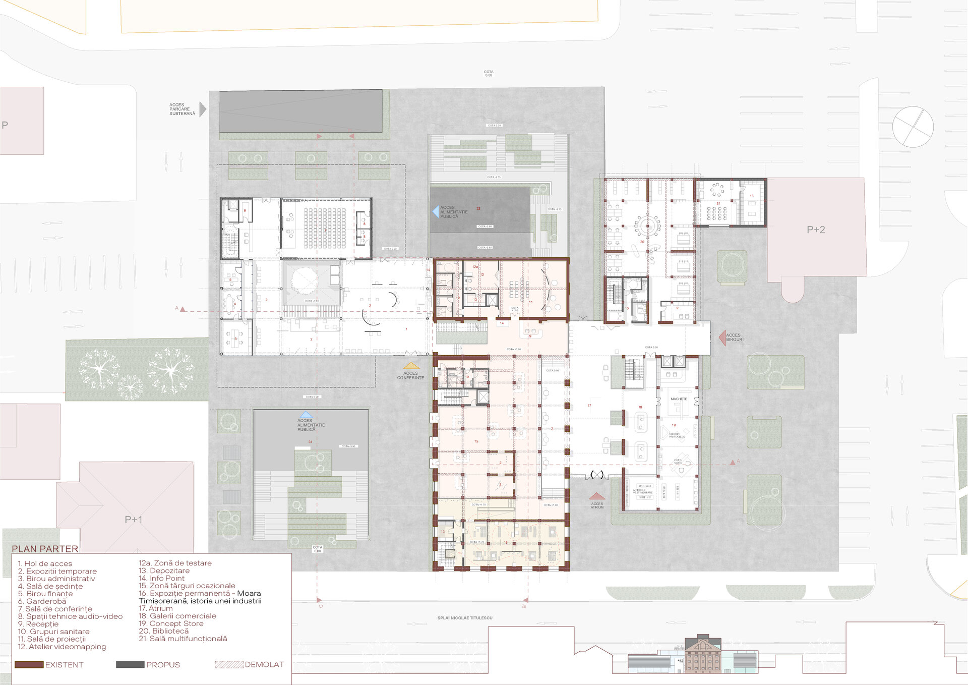
Proiectul de diplomă propune transformarea obiectului de patrimoniu industrial în incubator pentru industriile creative. Este urmărită dezvoltarea completă a artistului, de la proiectare și prototipare, la procesele de informare și experiment și până la contactul cu publicul interesat. În acest sens, proiectul se dezvoltă în jurul a trei componente majore: spațiile de birouri, spațiile de creație și spațiile destinate contactului cu publicul. Fizic, aceste componente sunt asociate câte unui volum al ansamblului. Astfel, în timp ce spațiul interior al morii devine premisă pentru creație, spațiile de birouri se regăsesc în corpul unei foste hale a platformei Electromotor.
Parterul înalt al morii devine spațiul de întâmpinare și evenimente: aici, târgurile temporare pop-up activează direct malul Begăi și consolidează relația dintre oraș și canal. Standurile modulare, întinse în lungul sălii de producție de odinioară, pot fi reconfigurate pentru piețe de designer, expoziții efemere sau mici festivaluri de artă, în timp ce o ceainărie-bookshop amenajată într-un colț al halei invită vizitatorii să-și prelungească experiența creativă cu lectură și discuții informale.
Inspirat din gestul naturii de a pune stăpânire pe clădire momentul în care nu mai este utilizată, rigurozitatea morii este disipată prin fragmentarea spațiilor, astfel încât atelierele de creație și curțile interioare ajung să se întrepătrundă.
Materialitatea și gesturile arhitecturale urmăresc un dialog între vechi și nou: zidăria masivă, cu textura sa rugoasă, contrastează cu transparențele cristaline și cadrul subțire de oțel vopsit în alb, care subliniază ritmurile originale fără a le denatura. Relația dintre vechi și nou, subliniată prin îmbinări metalice și soluții minimaliste de finisaj, marchează etapele de transformare, respectând autenticitatea structurii istorice.
În plan urbanistic, proiectul contribuie la regenerarea falezei Begăi, creând un front activ de spații culturale și comerciale, și se înscrie în strategia orașului de revitalizare a zonei centrale prin refuncționalizarea siturilor industriale abandonate și suplimentarea spațiilor destinate antreprenoriatului cretiv.
Ansamblul generează un ecosistem creativ: diversitatea functiunilor atrage artiști, iar programele de mentorat, târgurile ocazionale și conferințele tematice implică comunitatea locală și turiștii. Incubatorul pentru industrii creative consolidează identitatea culturală a Timișoarei, activează malurile Begăi și creează locuri de muncă în sectoarele creative exemplificând, totodată, modul îm care patrimoniul industrial poate fi adaptat nevoilor societății contemporane.