
Comentariul autorului:
Lumina este unul dintre cei mai importanți factori în proiectarea locuințelor, iar utilizarea luminii naturale este vitală pentru a crea un spațiu confortabil, primitor și practic. S-ar putea spune că iluminatul este o formă de limbaj pe care arhitecții o folosesc pentru a comunica emoția în spațiul și structurile pe care le proiectează. Ca atare, umbra joacă la fel de mult un rol în influențarea atmosferei unui spațiu ca și lumina. Armonia dintre lumină și umbră permite arhitecților și designerilor să creeze spații cu profunzime și textură, creând stări diferite în scopuri diferite. În multe cazuri, s-ar putea reduce la simpla amplasare a unei singure ferestre sau uși. Pentru Home of Shadows, ni s-a cerut să proiectăm o casă pentru un cuplu, cu o singură regulă - nu poate exista lumină artificială în interiorul casei.
Abordarea noastră a început cu o simplă plimbare în oraș. Odată cu trecerea timpului, umbrele noastre s-au mișcat, s-au înmulțit, s-au suprapus, și-au schimbat intensitatea ori s-au estompat sub alte umbre.
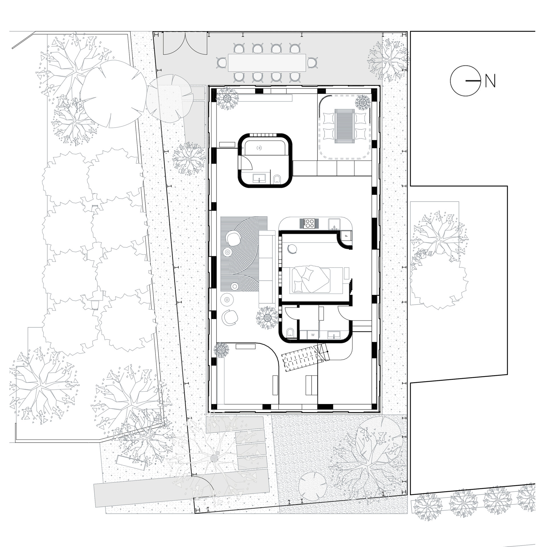
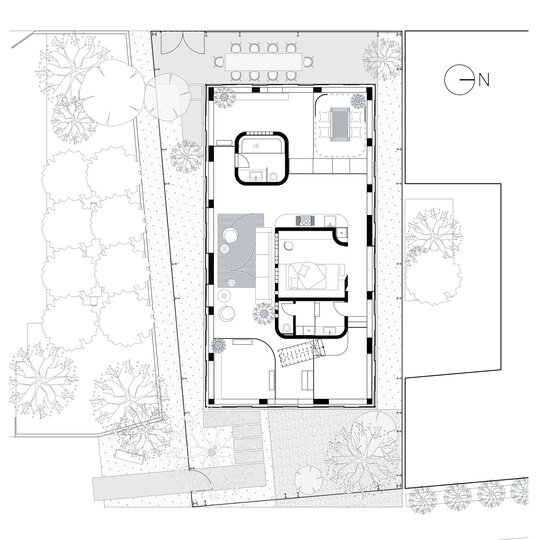
Conceptul se învârte în jurul acestor straturi de umbre, în care timpul și mișcarea soarelui creează o casă vie, în permanentă schimbare. Patru tipuri de închideri ajută la controlul cantității de soare și a intimității în diferite spații.
MORE THAN A FENCE
O împrejmuire cu rol de protecție solară, realizată din oțel și panouri translucide, ajută la controlul luminii și umbrelor. De asemenea, aceasta asigură un anumit nivel de intimitate și acționează ca limită între stradă și casă.
THE GLASSBOX
Definește granița dintre interior și exterior. Pentru a menține o conexiune cu natura, întreg parterul poate fi deschis complet.
CUTOUT WALLS AND MANY CURTAINS
Având decupaje pe toate laturile, structura principală este dotată cu draperii textile, care pot transforma întreaga casă într-un spațiu intim sau o pot menține așa cum este, într-un dialog deschis cu orașul.
TWO CAPSULES AND ONE MORE CURTAIN
Două zone cu un nivel de intimitate ridicat și un spațiu flexibil delimitat de o perdea mobilă, toate iluminate de sus și din lateral.