
Comentariul autorului:
Problematica abordată în acest proiect, se concentrează asupra potențialului revalorificării patrimoniului militar transilvănean ca resursă culturală contemporană. Astfel subiectul intervenției constă în regenerarea unui spațiu urban cu o importantă moștenire istorică dar care în prezent are o utilizare improprie.
Istoric, zona respectivă a trecut prin 4 etape. In primă fază acesta s-a aflat în exteriorul zidurilor cetății. În a doua etapă, o dată cu dezvoltarea ultimei centuri de apărare din secolul XVI, pe terenul respectiv s-a construit un bastion și s-au dublat o parte din ziduri creându-se zwinger-ul de pe latura sudică. La 1800, în urma tendinței urbanistice de descongestionare a orașelor medievale s-a luat decizia creării unei piațete ce avea rolul de a elibera spațiul și de a fluidiza accesul în cetate. Astfel s-au dărâmat o parte din turnurile și zidurile cetății, inclusiv Tunul Porții Cisnădie și a unor componente ale bastionului, dând conturul actualei Piețe Unirii. Tot in acea perioada s-au dezvoltat o serie de construcții de importanță municipală, printre ele numărându-se Cazarma 90 ce ocupa pe latura sudică zidurile vechiului bastion. Ultima etapă s-a desfășurat în perioada comunistă când s-a luat decizia de demolare a vechii construcții baroce, urmând ca pe amprenta acesteia să fie amenajată o parcare ce se păstrează și în prezent.
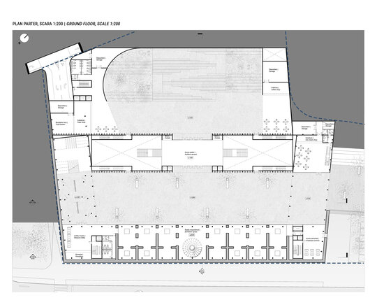
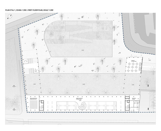
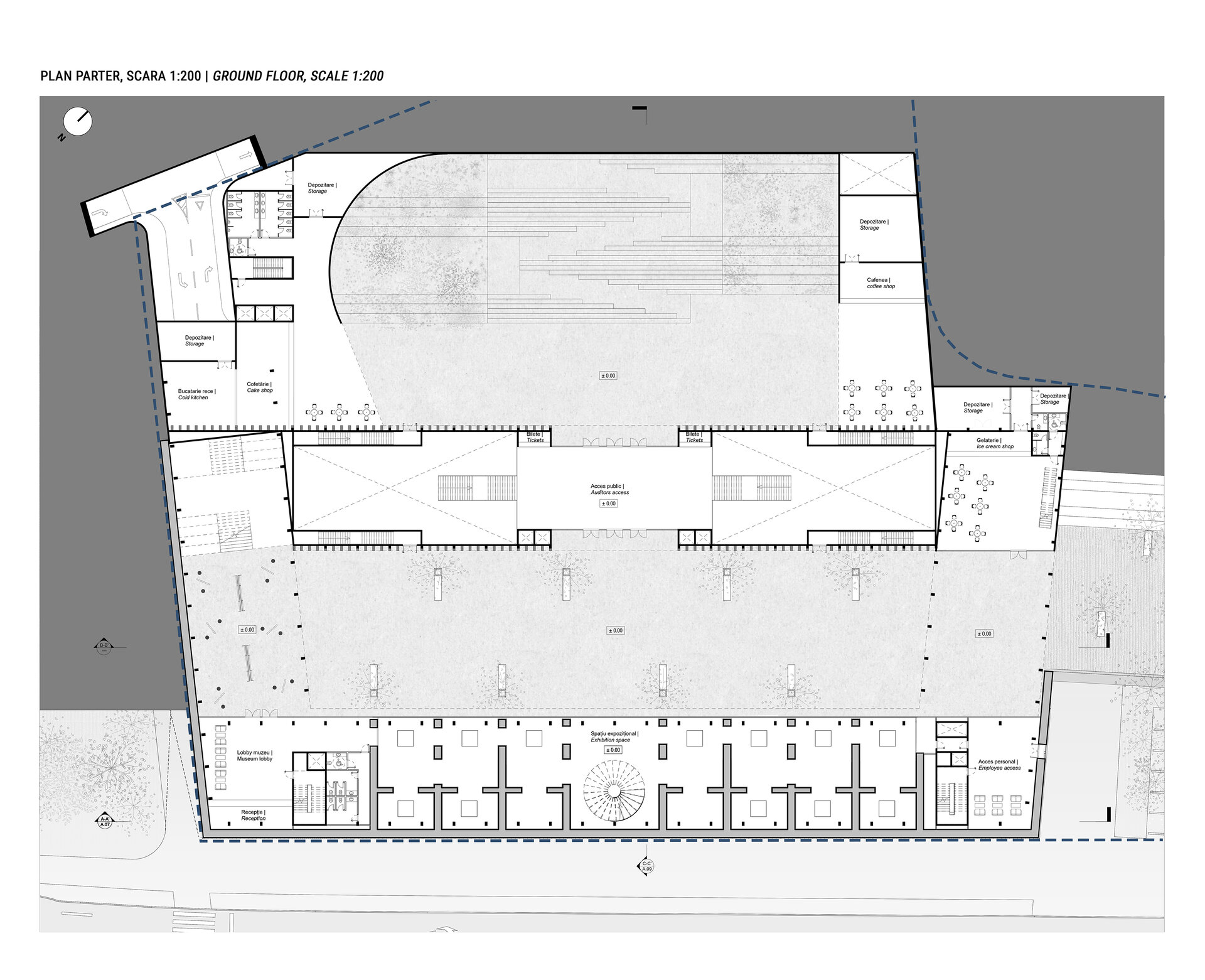
Din punct de vedere urbanistic, am reconfigurat piațeta intra-un spațiu public ce pune în valoare clădirile dezvoltate pe perimetrul acesteia și care asigură tranzitul spre nucleul istoric al orașului. Din perspectivă arhitecturală am urmărit realizarea unei inserții volumetrice contemporane care preia o parte din trăsăturile morfo-tipologice ale vechii cazărmi și care realizează o mediere între contextul tradițional și construcțiile moderne din preajma sitului urmând unghiurile de compoziție ale perspectivelor exponențiale.
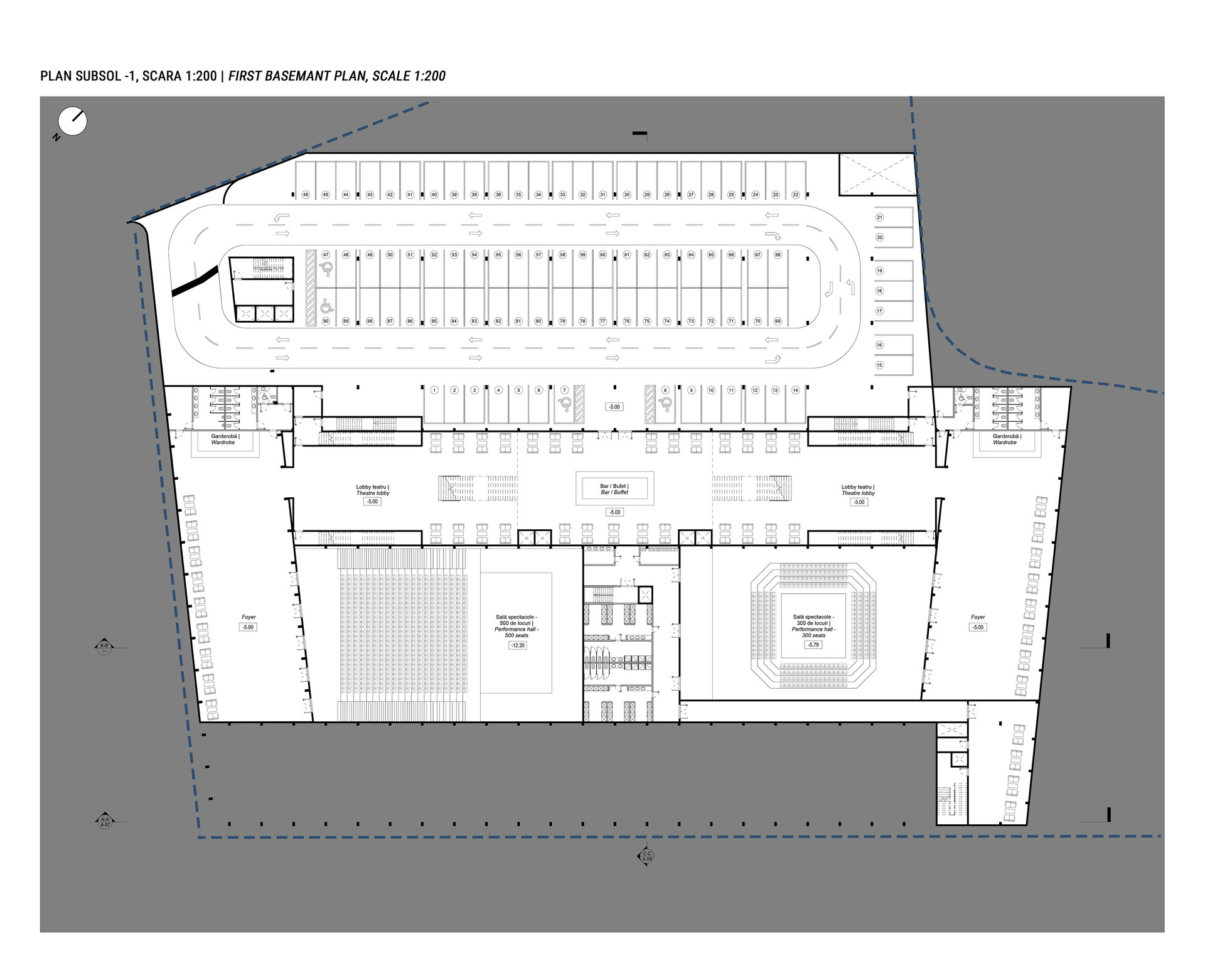
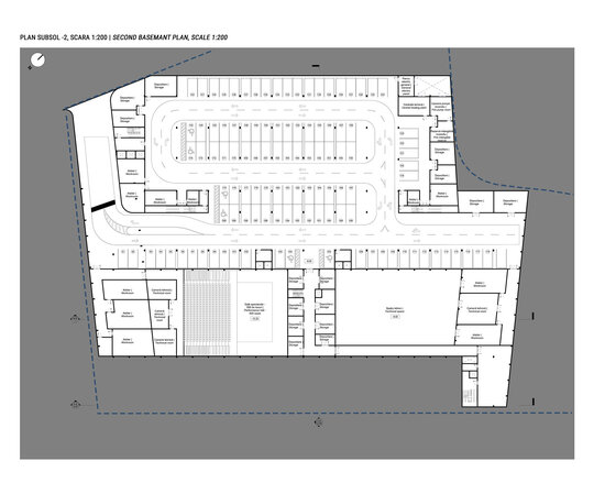
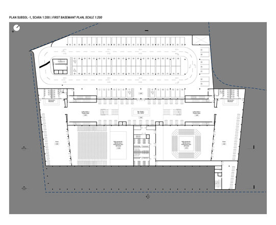
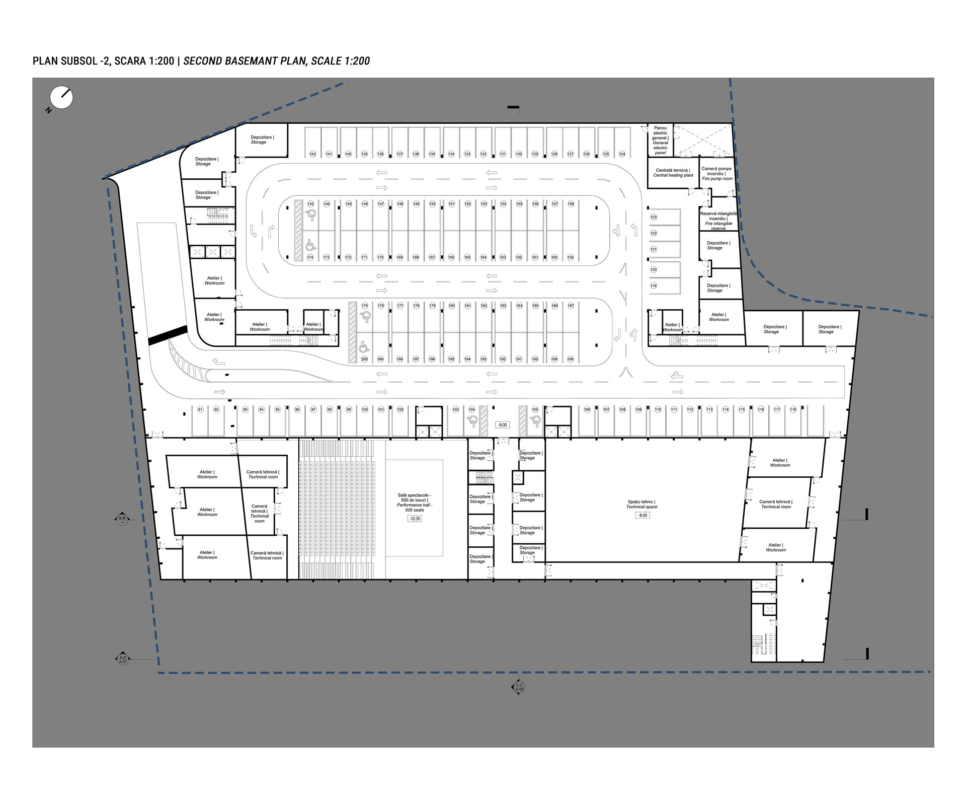
Funcțional, am răspuns nevoii de noi spații culturale și artistice in municipiul Sibiu, prin integrarea ruinelor într-un nou spațiu ce permite conservarea și expunerea substanței istorice. În completarea acestei funcțiuni am creat un amplu spațiu public ce este organizat pe mai multe niveluri, deservind astfel întreaga zonă și care permite desfășurarea diverselor reprezentații artistice stradale. Un alt punct al temei de proiectare a constat in crearea unor săli de spectacole, acestea fiind dezvoltate în subteran, păstrând organizarea funcțională in gabaritul vechii planometrii.