
Comentariul autorului:
Frontul la apă este elementul particular și în același timp definitoriu pentru orașele cu ieșire la mare. În contextul românesc, relația dintre elementul major de cadru natural - apa și silueta cadrului construit nu este valorificată la adevăratul potențial. Prin această etapă de declin au trecut mai toate orașele cu front la apă din cauza evoluției industriale, proximității portului fată de centrul istoric și localizării zonei de țărm în interiorul limitei administrative a infrastructurii portuare.
Motivația alegerii subiectului diplomei pornește de la faptul că am participat la elaborarea Planului Urbanistic Zonal Port Constanța – Zona Constanța și am observat în cadrul studiilor de fundamentare aferente că țesutul urban prezintă destul de multe disfuncții; relația între oraș și port este inexistentă, limita portului devine o barieră în percepția utilizatorilor, dar în același timp am remarcat potențialul de dezvoltare ca pol important la nivel urban, pe care îl poate avea această zonă. Prin urmare, în cadrul proiectului doresc să evidențiez caracterul și identitatea limitei dintre oraș și port –prin intermediul propunerii arhitecturale.
Amplasamentul propus în cadrul Diplomei este localizat în Portul Constanța, în imediata vecinătate a Gării Maritime, actualul sediu al Administrației portuare. Țesutul a fost constituit în perioada interbelică, în aceeași perioadă cu edificarea Gării 1931-1933, astăzi Gara Maritimă este considerată monument istoric de interes național. Zona portuară de nord, reprezintă prima etapă a dezvoltării Portului, planificată arhitectural și urbanistic de Ingineri precum I. B. Cantacuzino, Anghel Saligny și Gheorghe Duca la dorința Regelui Carol I.
În prezent, Portul Constanța se află într-o stare avansată de degradare, din punct de vedere al infrastructurii și al fondului construit, paradoxal cu oportunitățile economice generate de Războiul Ruso-Ucrainian. Astfel, nevoia de investiții la nivelul zonei studiate este din ce în ce mai necesară.
La nivelul percepției, amplasamentul are o imagine de zonă industrială semi-activă, un spațiu nesigur, pe alocuri dând senzația de loc părăsit, chiar daca se află în imediata vecinătate a peninsulei Constanța - centrul istoric al orașului, cu numeroase valențe arhitecturale, funcțiuni complexe, zone de agrement și esplanade urbane pe Malul Mării Negre, zona Cazinoului.
În apropierea Porții 1, au început să își facă loc câteva inserții noi - clădiri de birouri pentru a suplini nevoia operatorilor portuari și Administrației Portuare, dar și pentru firme care conlucrează cu cele menționate anterior în domeniul transportului de mărfuri. Pe de altă parte, portul nu dispune de spații de cazare pentru angajați, locuințe de serviciu pentru inginerii care sunt contractați pentru investițiile în curs sau pentru avarii, iar aceștia sunt adeseori cazați în stațiunea Mamaia, unde oferta de cazare este mai mare comparativ cu Peninsula. Însă, prin prisma poziției în oraș, a monumentelor existente, funcțiuni precum Centru de afaceri- aparthotel, birouri, ar transforma zona de nord a portului într-un important nucleu economic, atât pentru Port cât și pentru Municipiul Constanța. Amplasamentul ales va veni ca răspuns în vederea revitalizării zonei pentru a integra monumentele istorice cu noile inserții.
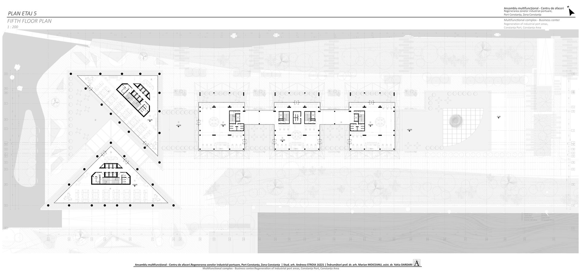
Conceptul ocupării spațiale al sitului pentru a suplini nevoile funcționale ale zonei pornește de la creșterea regimului de înălțime adiacent colțului de intersecție cu cele doua turnuri gemene la nivel de plan, dar care odată cu extrudarea doar unul devine accent (P+30E), perceput ca o prisma de sticla, având o fațada ventilată cu montanții amplasați în spatele sticlei. De asemenea, turnul mai scund (P+15E) este prevăzut cu un double skin din panouri de corten pentru a aminti de utilizarea inițiala a terenului – depozitarea si încărcarea minereului de fier.
Accesul în cele două turnuri se face print-un atrium care funcționează precum o pâlnie care conduce utilizatorul spre frontul de apă, un traseu amenajat precum Proiectul The Hight Line, New York, în care am încercat sa păstrez memoria șinelor de tren și a Gării maritime, direcționând atenția spre monumentul istoric.
Atriumul dintre cele doua turnuri principale reprezintă liantul între cele doua funcțiuni ale sitului și nevoile funcționale ale perioadei industriale și contemporane (industrie/depozitare, vs. birouri).
De asemenea, distanta neconstruita dintre cele doua turnuri cu regim de înălțime mare reprezintă un culoar de percepție relaționat cu Piața Ovidiu și cu centru istoric.
La nivelul celor 3 volume identice, se surprinde, de fapt, simetria malurilor opuse ale golfului istoric al Portului Constanța, prin imitarea cifrei 3 regăsită la Silozurile ing. Anghel Saligny.
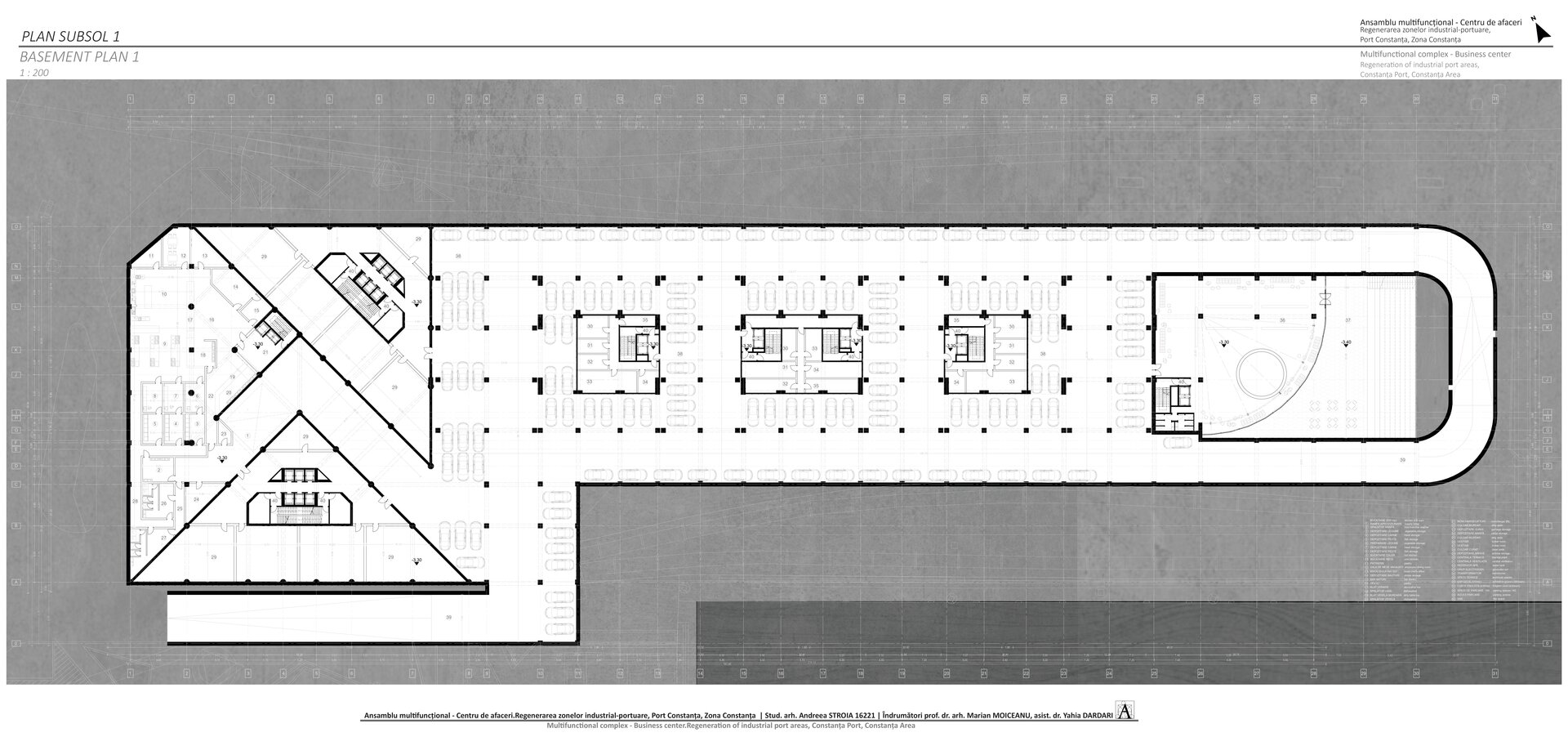
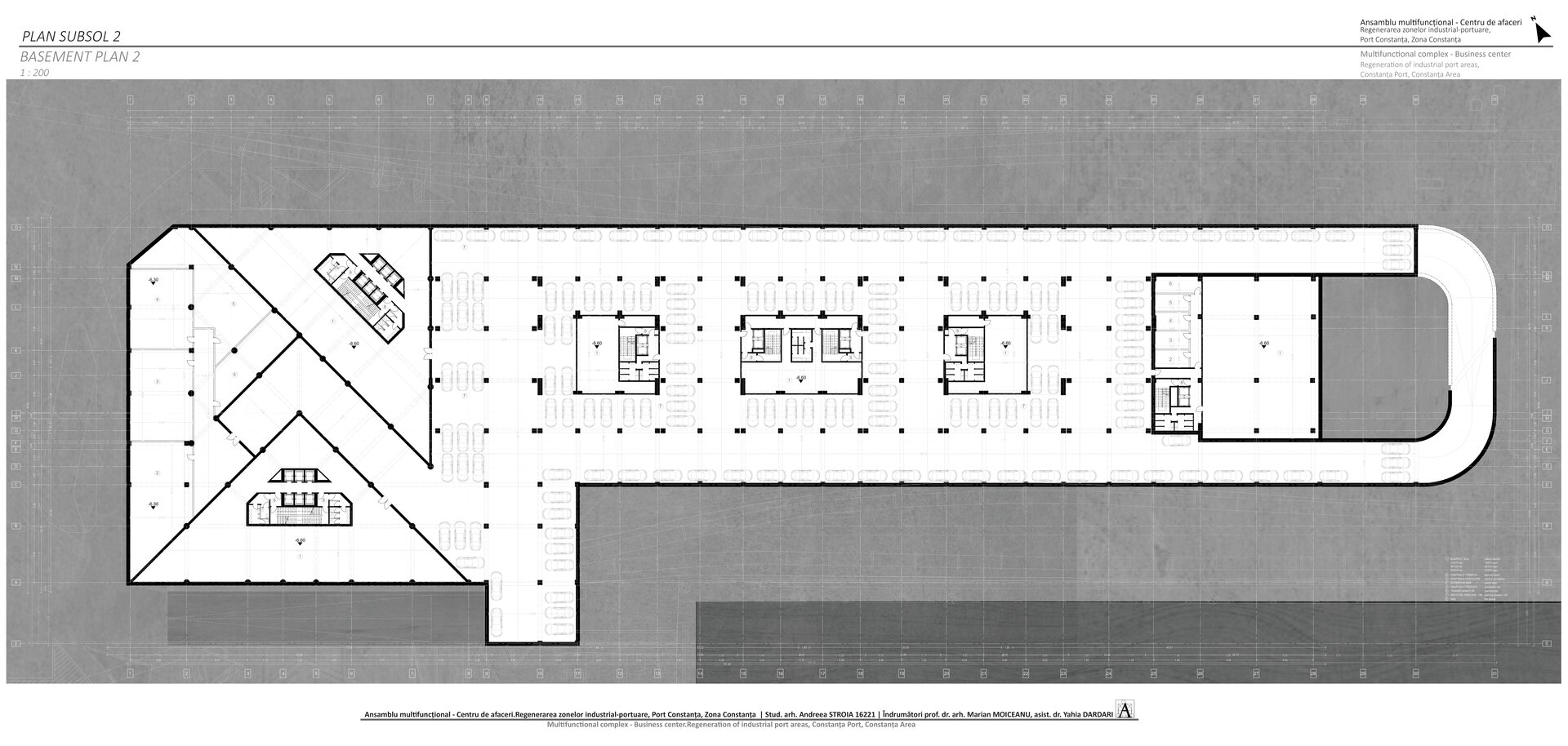
Ultimul element al ansamblului, are o forma curba pentru a deschide vizibilitatea spre monument – Gara Maritima din interiorul portului, dinspre accesul de la Poarta 1 și are rolul de a închide compoziția ansamblului, atât volumetric cât și funcțional deoarece adăpostește săli de conferințe și este contactat cu cele cinci turnuri cu o galerie comercială. Aceasta bară care relaționează întreg ansamblu asigură o continuitate la nivel vizual de front continuu, clădire izolată în cadrul portului, tendință a fondului construit din interiorul portului, dar și la nivel funcțional deoarece face legătura cu zona restaurantelor, cafenelelor, birourilor, sălilor conferințe, comercial și etajele superioare cu aparthotel.
Cele trei volume identice sunt îmbrăcate de o structură metalica aparentă pentru a oferi camerelor balcoane specifice zonelor de litoral și pentru a putea dezvolta fațade acoperite cu vegetație care pornesc din terasa plantată deasupra galeriei comerciale.
În concluzie, limbajul arhitectural în cadrul intervențiilor de regenerare în zonele portuare pot fi imagini care să accentueze orizontalitatea apei, dar în același timp volumetrii care să ajute la spargerea limitei dintre oraș și port sau pot fi un accent de înălțime care devine un punct de perspectivă, nu doar un centru funcțional de interes pentru zona. Înălțimea clădirilor, volumetria, organizarea fațadelor, raportul plin-gol, amplasarea în sit, perspectivele sunt elemente cheie în optimizarea limitei dintre oraș și port.