
Comentariul autorului:
Proiectul explorează tematica spaţiilor latente din Bucureşti, este vorba de acele spaţii ce şi-au pierdut caracteristicile ce iniţial le făceau să fie locuri de succes ale oraşului. Şansa acestora constă într-o intervenţie ce investighează coprezenţa şi porozitatea sitului. Porozitatea este un element esenţial, astfel se va putea afla cum şi unde se poate interveni astfel încât locul să fie reactivat, dar fără a da o impresie de discordanţă între noul corp şi cel vechi. Porozitatea poate fi de mai multe feluri, de la spaţială, la funcţională, la cea faţă de spaţiul public. Mai apoi coprezenţa trebuie să se facă simţită, să arate ce e vechi, ce e nou şi să transmită vizual şi senzorial povestea locului. Astfel subiectul spaţiilor latente a dat naştere atât lucrării de diplomă, cât şi de disertaţie.
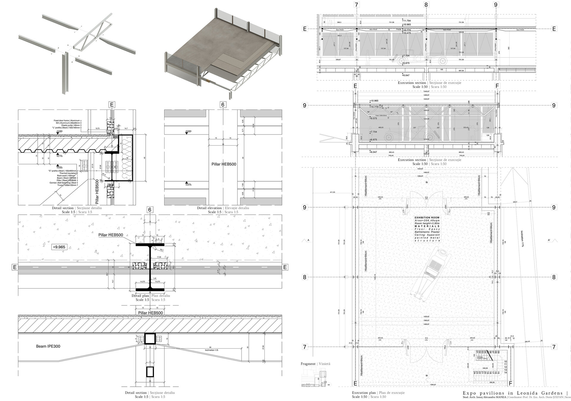
Bucureşti, Piaţa Victoriei, un pol de atracţie major al capitalei. Viaţa fierbe în jurul pieţei, dar nu în interiorul său. Dacă în alte oraşe Europene golul atrage oamenii în mijloc, aici îi adună în jurul său, în centru trăind doar maşina. Din vremea când piaţa era doar un maidan, în jurul său au apărut clădiri publice impozante, şcoli, muzee, palate publice, sedii de instituţii şi o serie de spaţii comerciale în care oamenii să îşi petreacă timpul liber. În toată această efervescenţă creată în jurul pieţei un singur spaţiu a fost lăsat în urmă într-o stare de latenţă ce poate deveni oricând efervescentă printr-un gest arhitectural de reconectare la spaţiul public şi de topire a limitelor pe care cu timpul, spaţiul şi le-a construit. Garajele Leonida, un loc născut în urmă cu un secol din pasiunea şi ambiţia unui singur om, Leon Leonida. Un buzoian venit în Bucureşti la vârsta de 20 de ani să îşi înfiinţeze propria companie în jurul pasiunii pentru automobil. Pe lângă spiritul antreprenorial pe care îl avea, acesta era şi un pilot de excepţie, concurând cu nume mari din acea vreme la competiţii auto locale şi fondând, împreună cu aceştia, o cultură auto în România. Compania sa a ridicat trei garaje în Bucureşti, însă perla companiei erau Garajele Leonida de lângă Piaţa Victoriei. Aici cele mai noi modele auto apărute în Occident erau aduse şi vândute publicului Bucureştean, dar funcţiona şi ca un muzeu pentru cei ce nu îşi permiteau să cumpere, dar doreau să privească noile inovaţii în domeniul auto. Totodată aici erau şi ateliere de reparaţii pentru maşinile scumpe ale burghezilor, era probabil cel mai cosmopolit hub auto din ţară în acel moment. Pornind de la istoria locului, am investigat cât de prezentă a fost cultura auto în societatea românească. Probabil cea mai relevantă perioadă a fost cea de înainte de instaurarea regimului comunist. În acest interval de timp românii au obţinut titluri remarcabile la competiţiile auto internaţionale precum LeMans 24h, Monte Carlo Grand Prix, Raliul de la San Remo sau Indianapolis 500. Inspiraţi de aceste competiţii, românii au creat Bucureşti Grand Prix şi Cursa în coastă de la Sinaia. Pe lângă performanţele în competiţiile internaţionale şi locale, inginerii români au început să experimenteze cu motoare şi design-uri aerodinamice ale maşinilor. Totodată o istorie a fabricării automobilelor s-a dezvoltat în România, mai întâi la fabrica MARTA, urmând ca în timpul regimului comunist alte fabrici să fie înfiinţate. În final, conceptul de spaţiu latent, istoria garajelor şi cultura auto în România, nevoia contextului de a-şi extinde spaţiile publice şi poziţionarea sitului lângă alte trei muzee importante la nivel urban au împins proiectul în direcţia unui spatiu public cultural, un muzeu al automobilului. Eliberarea sitului de clădirile ce îl parazitau a fost primul şi cel mai important pas, în urma unui studiu istoric şi de degradări am stabilit ce clădiri merită păstrate şi valorificate. După demolarea celor parazitare am obţinut un spaţiu vast liber ce aducea situl la un nivel de ocupare potrivit pentru zona în care se află şi astfel a apărut grădina publică, inspirat fiind de cele două grădini publice istorice din proximitate, Parcul Kiseleff şi Parcul Filipescu. Cele două organisme, parcul şi muzeul relaţionează prin intermedierea unui portic ce conţine două pavilioane expoziţionale, astfel apare acest organism de mediere ce scoate exponatul în grădină, dar şi grădina pătrunde prin spaţiile sale libere. Pentru ca parcul şi muzeul să devină efervescente a fost nevoie de topirea limitelor faţă de spaţiile publice vecine, astfel eliberând situl de limitările ce îl conservau într-o formă latentă. Muzeul are scopul de a aduce maşina din stradă în interior pentru a putea fi prezentată ca o piesă de artă şi tehnică, redând totodată oamenilor spaţiul public pierdut în ultimul secol. Garajele Leonida au încă şansa de a redeveni acel loc din oraş cu un caracter cultural şi cosmopolit pe care Bucureştenii obişnuiau să-l cunoască.