
Comentariul autorului:
Situl ales are potențialul de a cuprinde și îmbina toate perioadele de timp și straturile culturale diferite care alcătuiesc această zonă cosmopolită din centrul orașului Craiova, afectată de schimbări rapide și haotice, devenind astfel un catalizator social și identitar.
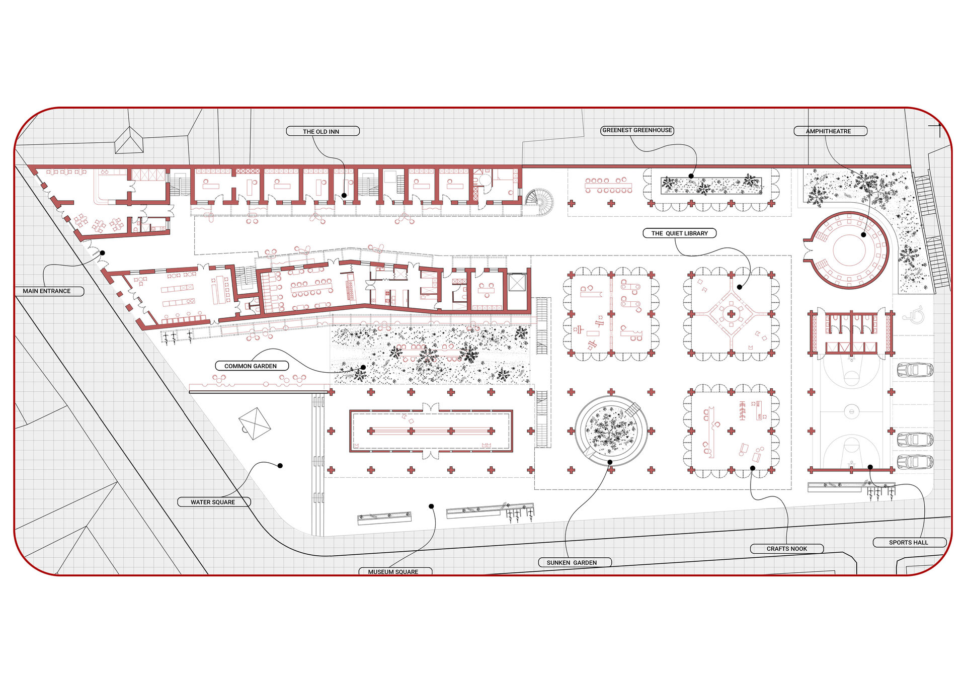
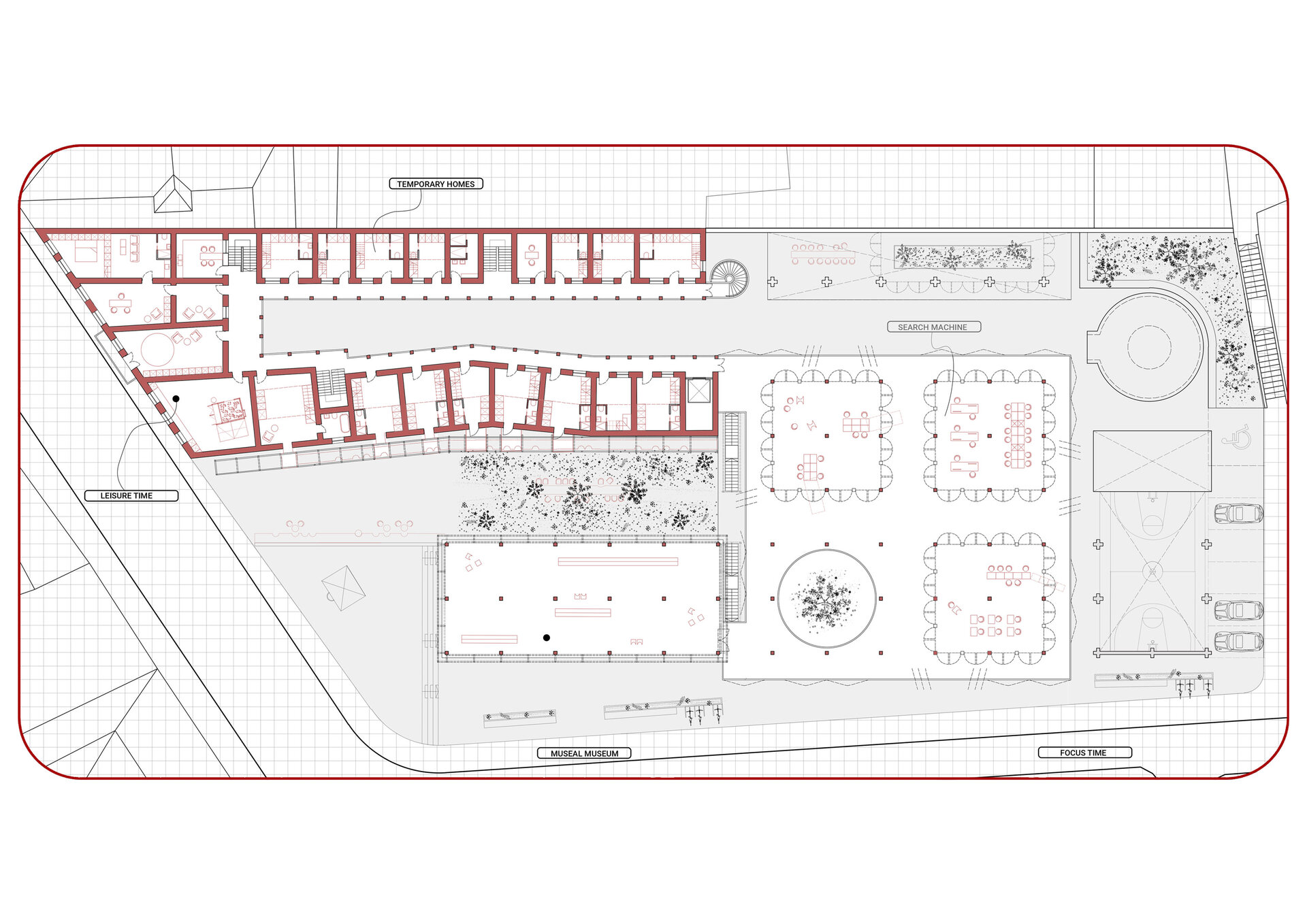
Acest proiect urmărește în special reintegrarea sitului prin adresarea problemei conflictelor etnice și a urii rasiale cu care se confruntă comunitatea romă din oraș, oferind un sistem de sprijin educațional și o interacțiune mai sigură cu cetățenii ne-romi, construind încredere și înțelegere de ambele părți. Această coeziune va fi materializată în spații destinate activităților și socializării, cu scenarii multiple de utilizare, recuperarea spațiului public precum și printr-o extindere care va găzdui programul educațional.
Modul în care extinderea ocupă parcela este un răspuns activ la cerințele sitului existent, prin construire într-o manieră intenționată și conștientă. Noua structură va deservi funcțiunii actuale, rămânând în același timp adecvată pentru utilizări viitoare, devenind o parte în continuă schimbare a orașului.
Această conversie și extindere propun schimbarea firului narativ de dezvoltare, de la comunitatea locală până la scara orașului, căutând noi oportunități de interacțiune om-arhitectură.