
Comentariul autorului:
Glowing Older
Un proiect de regenerare urbană în sudul Bucureştiului
Ca multe alte orașe post-socialiste, Bucurștiul este presărat cu zone nepuse în valoare, ce ar putea îmbogăți peisajul urban. În situația prezentă, este vorba de un teren in sudul Bucureștiului, înconjurat de Calea Văcărești, Șoseaua Mihai Bravu și Splaiul Unirii. Lotul de 62.000m2 ce obișnuia să găzduiască un abator este acum abandonat și îngrădit. Scopul acesui proiect de diplomă a fost să readucă această parcelă la viață, integrând noile construcții în fondul deja construit din cartierul Tineretului, într-un mod ce va încuraja formarea unei comunități active, incluzive și intergeneraționale. Cele trei principii de bază ale proiectului au fost:
Îmbătrânirea activă
Designul incluziv
Orașul de de 15 minute
Cu o populație din ce în ce mai îmbătrânită și fără suficiente facilități potrivite, este important ca fondul construit să poată acomoda nevoile persoanelor în vârstă, permițându-le să ducă o viață activă cât mai mult timp, rămânând în propriile locuințe. Astfel, prin aplicarea principiilor designului inclusiv se poate crea un cartier ce răspunde nu doar nevoilor seniorilor, ci tuturor persoanelor vulnerabile (de la copii de vârste mici, la femei gravide sau persoane în scaun cu rotile). Includerea a cât mai multor facilități în cadrul proiectului aduce în vedere conceptul Orașului de 15 minute. Proiectul conține două clădiri rezidențiale cu spații comerciale la parter, turnul, cu funcțiuni multiple, vechiul abator, refolosit ca centru sportiv, o școală primară și o grădiniță, precum și parcul ce unește toate aceste facilități. Astfel multe dintre nevoile viitorilor locatari se regăsesc în cadrul noului mic cartier, indiferent de vârstă, fapt ce încurajează interacțiunea intergenerațională și independența grupurilor vulnerabile. De exemplu, copiii pot dobândi un grad mai mare de autonomie, având posibilitatea de a merge la școală sau chiar la grădiniță fără necesitatea de a traversa. Spațiile comerciale de la parterul clădirilor rezidențiale încurajează afacerile locale. În partea de est a lotului o nouă stradă pietonală a fost creată și separată de zgomotoasa Cale Văcărești printr-o zonă de vegetație deasă.
Curtea interioară
Curtea interioară prezintă majoritatea facilităților necesare pentru a încuraja rezidenții să petreacă cât mai mult timp afară. Locul de joacă este poziționat central, astfel încât poate fi observat în permanență. Spațiile verzi sunt străbătute de alei de-a lungul cărora se găsesc diferite obiecte urbane, precum locuri de luat masa, măsuțe de șah, etc. Cele două parcuri îngrădite sunt menite să încurajeze deținerea de animale de companie, ce pot aduce beneficii mai ales persoanelor în vârstă, făcându-le să fie mai active și să se simtă mai puțin singure. Este important de menționat faptul că niciuna dintre zonele rezidențiale nu este o comunitate îngrădite, închisă. Spațiile domestice curg din cele publice, cu frontiere minimale.
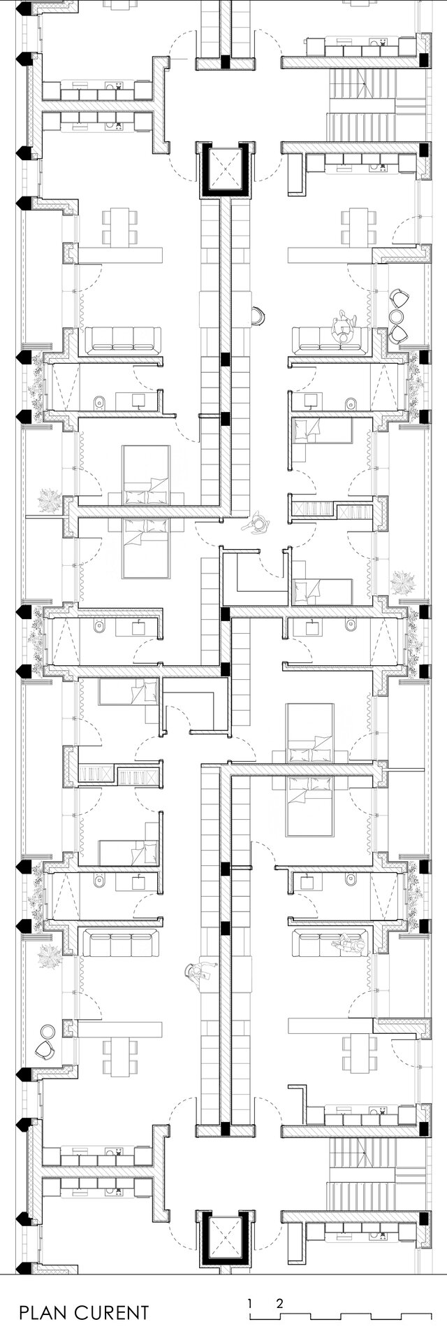
Clădirea de apartamente
Apartamentele variază de la 2 la 4 camere, oferind posibilitatea de a găzdui familii și grupuri în forme variate. Parterul este compus din spații comerciale, spre exterior, și apartamente cu grădină proprie la interior. Accesul in apartamente este realizat fără a apela la coridoare lungi, întunecate. Casa scării se remarca prin peretele dinspre curtea interioară, realizat din cărămizile specifice proiectului, ce lasă lumina înăuntru, în mod discret. Majoritatea apartamentelor pot fi folosite inclusiv de persoane ce necesita un scaun cu rotile. Fiecare încăpere prezintă cel puțin o fereastra, iar baia oferă o fereastra înaltă, fără parapet, camuflata de aceleași cărămizi. Înțelegând "tradiția" închiderii balconului, atât de prezentă în București, apartamentele prezintă o tâmplărie mobilă, ce poate izola complet logiile, în caz de nevoie. Din oricare dintre apartamente locuitorii au acces vizual la elemente de vegetație, un beneficiu pentru bunăstarea acestora.
Facilitățile comune
Clădirea din zona de vest a lotului joacă rolul unei porți, și găzduiește facilitățile ce pot fi împărțite de toți rezidenții. Acestea sunt o sală de petreceri, o bucătărie mare, ateliere de pictură, o mica biblioteca și o cameră cu unelte. Astfel, aceste facilități sunt menite să funcționeze ca un mecanism social, încurajând oamenii de toate vârstele să petreacă timp în afara locuinței, fără a presupune un efort fizic sau financiar. Încurajează de asemenea spiritul de comunitate și ideea de împărțire a bunurilor precum cărțile sau uneltele.
Turnul
Aflat la intersecția axelor vizuale ale celor trei străzi principale care înconjoară lotul, turnul joacă rolul de punct de reper. Acesta este menit să găzduiască toate facilitățile care lipsesc în prezent din cartier (un centru de educație pentru un cabinet stomatologic, un co-working space, o clinică de sănătate mintală, un restaurant cu terasă la ultimul nivel, etc.)
Video prezentare: https://clipchamp.com/watch/rTPxD3X0Gey