
Comentariul autorului:
Proiectul pornește de la problematica dispariției meșterilor și de la relația pierdută dintre omul modern și tradiție. Această reconectare este esențială într-o lume care pare să întoarcă spatele trecutului și să ignore munca generațiilor trecute din dorința inventării în permanență a ceva nou. Căutările acestui proiect se orientează către importanța relațiilor dintre arhitectură și meșteșug în vederea realizării unor spații cu suflet, care să nu releve doar imagini retiniene seducătoare, ci să activeze asupra întregii ființe ce locuiește spațiul.
Propunerea se concentrează pe respectarea măsurii locului pentru a lucra cu existentul pregnant. Pentru întregirea imaginii trecute a fabricii, proiectul contopește terenul pe care se află acum cele două construcții de căramidă cu situl vecin, gol, rănit de intervențiile intruzive. În acest moment frontul este știrbit, plin de goluri pe care proiectul intenționează să le rectifice.
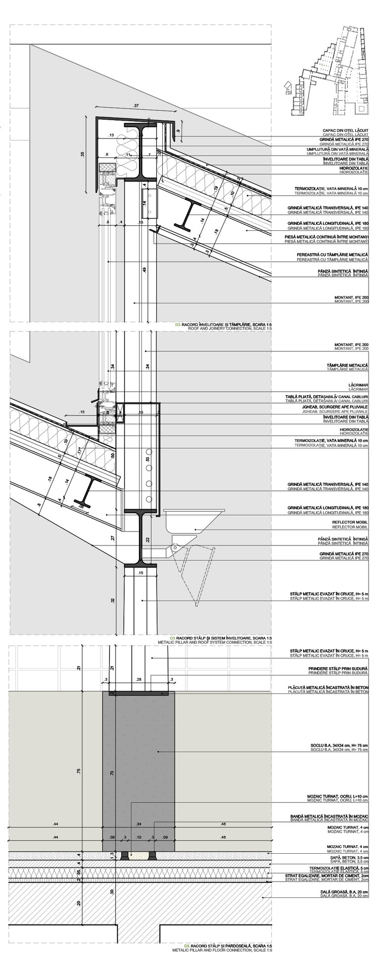
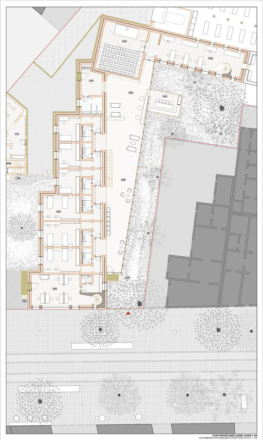
Prin urmare, proiectul și-a dorit conformarea unui centru formator, o serie de ateliere care să susțină reconectarea dintre arhitect si meșter. Toate aceste ateliere au ca activitate restaurarea obiectelor valoroase, de la decorațiuni, tâmplării, vitralii, detalii din piatră până la conservarea sau chiar restaurarea mobilierului vechi. Astfel se contureaza imaginea tipică bucureșteană a diferitelor funcțiuni ce se adună în jurul unui gest unificator: peretele structural ce definește retragerile și relațiile cu vecinătățile proiectului.