
Comentariul autorului:
Vila H-Mogosoaia este o resedinta de lux situata pe malul lacului Mogosoaia si a fost proiectata pentru a raspunde nevoilor de intimitate si reprezentare pentru o familie cu standarde foarte inalte.
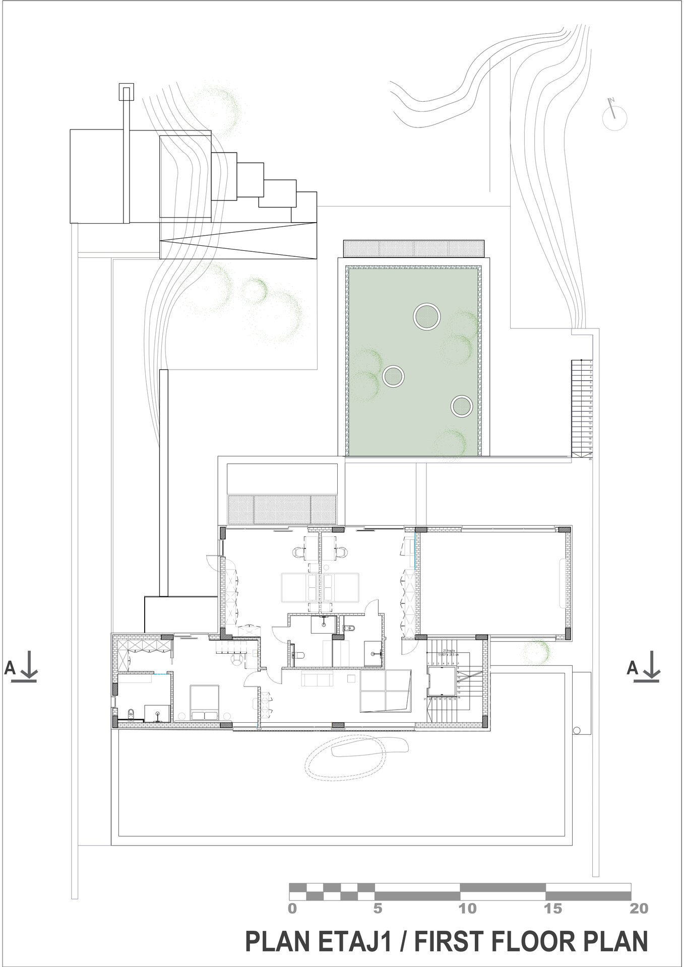
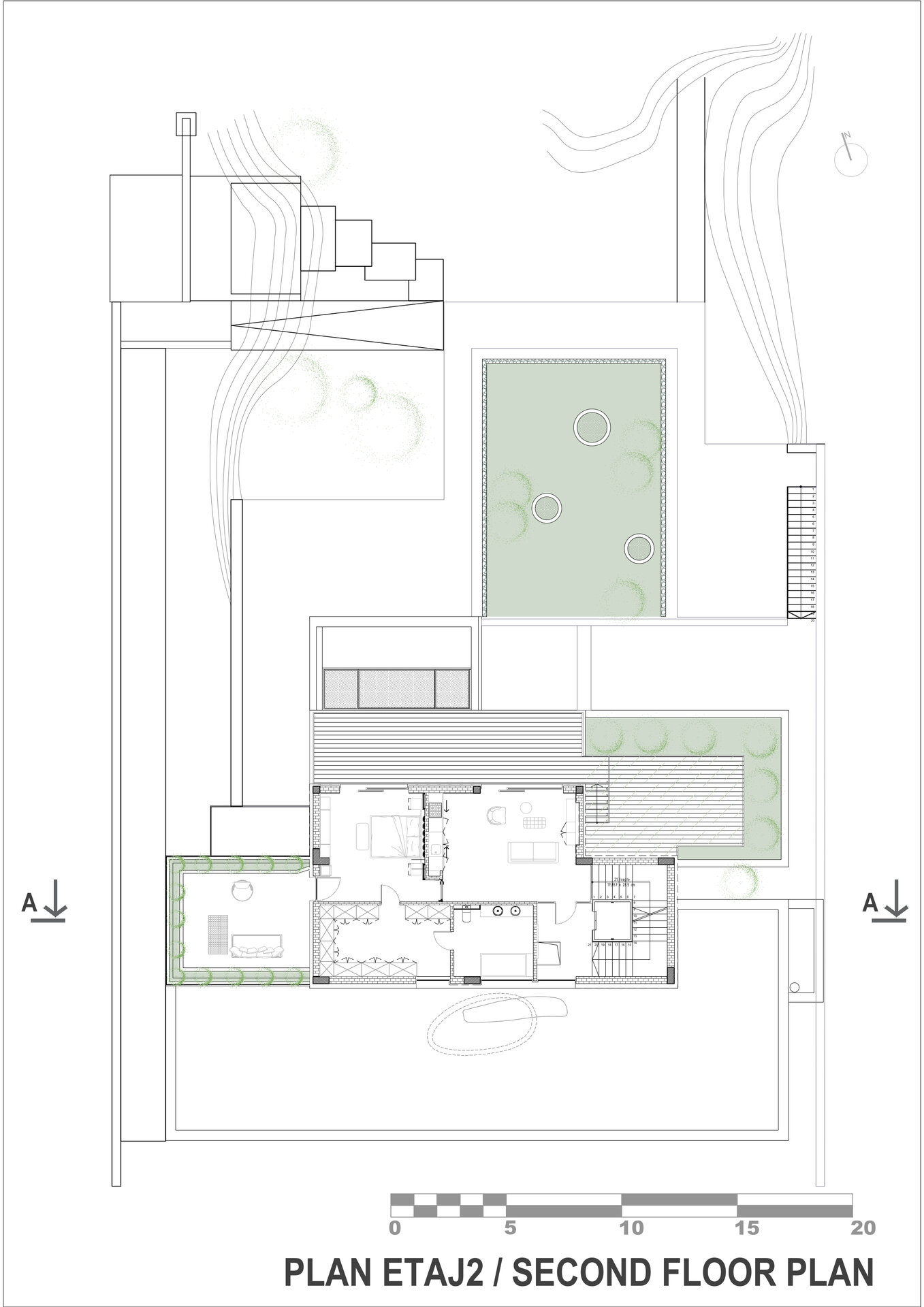
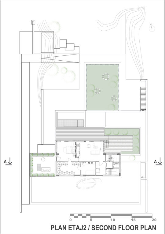
Intreaga volumetrie si distributie a spatiilor interioare si exterioare au ca principiu retragerea fata de strada si deschiderea catre zona de lac. Astfel, locuinta este amplasata mult retras fata de strada, cu o ampla curte de acces marcata de jeturi de apa, iar la intrare cu o sculptura monumentala. Zona de curte intima dinspre lac este pozitionata la nivelul demisolului, sapata in panta terenului, cu foisor si firepit la extremitatea dinspre lac.
Functional – spatiile sunt distribuite pe patru niveluri, cu zone comune de zi si loisir, incluzand camera de hobby, zona piscina, living dinnig, camera rugaciune, bucatarii si zone de noapte cu dormitoare cu bai , dressinguri si terase individuale. Ultimul nivel este amenajat ca penthouse.