
Comentariul autorului:
Locuinţa face parte dintr-un ansamblu de 3 case individuale, conectate printr-o pasarelă deschisă, amplasate pe un teren în pantă, pe malul lacului Snagov.
Casele au fost proiectate pentru aceeaşi familie, întinsă pe mai multe generaţii. Am propus volumetrii diferite, în funcţie de cerinţele fiecărei familii şi zone de amenajări exterioare cu spaţii comune, rezultând o compoziţie arhitecturală, având ca element unificator acelaş placaj ceramic verde precum si porticul de legatura.
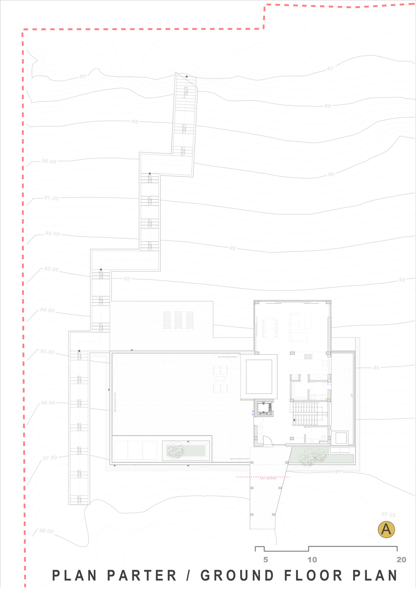
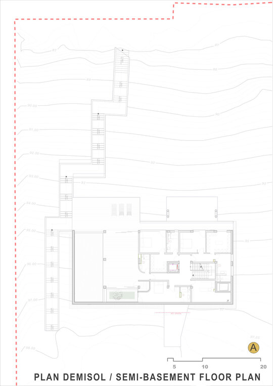
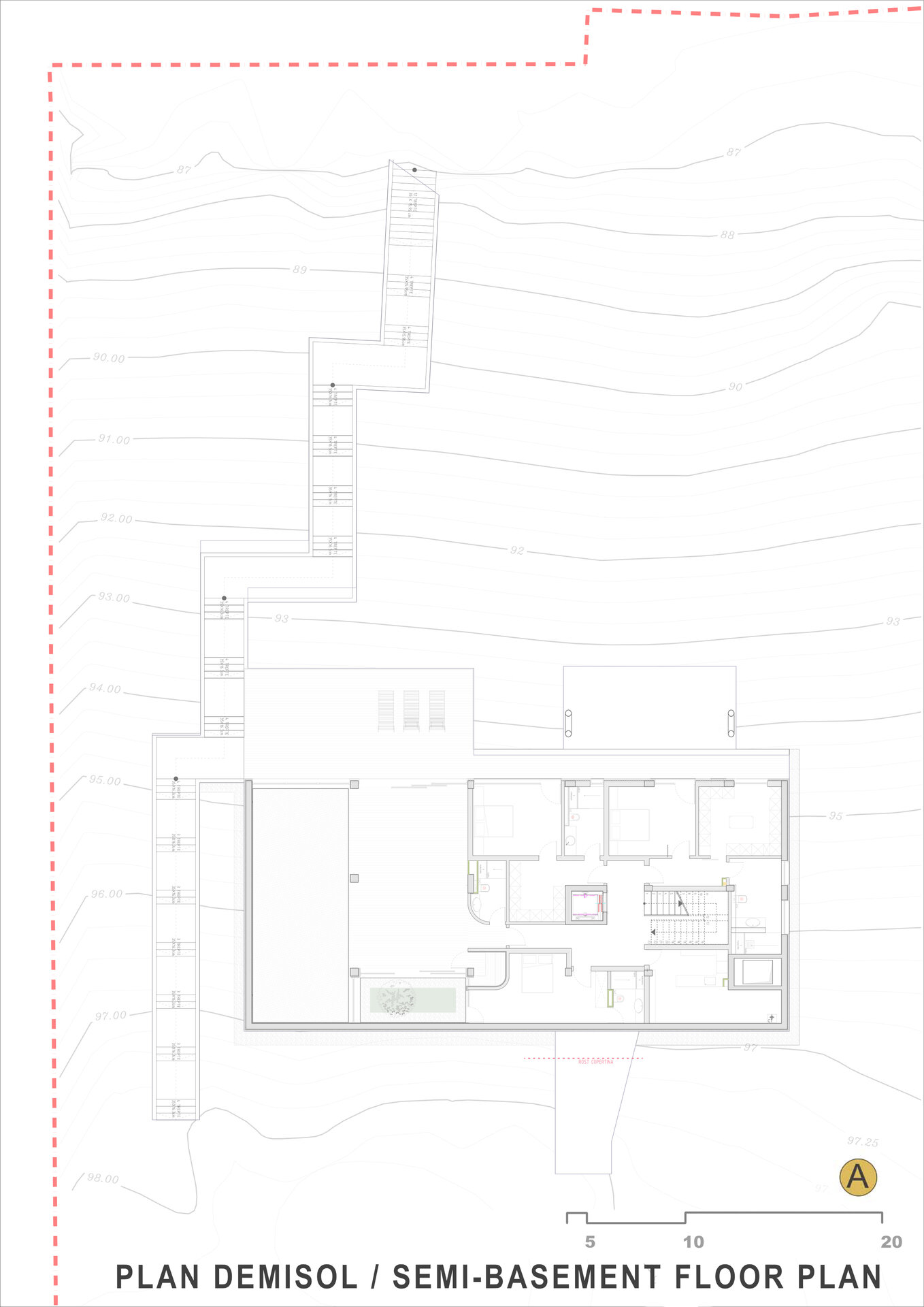
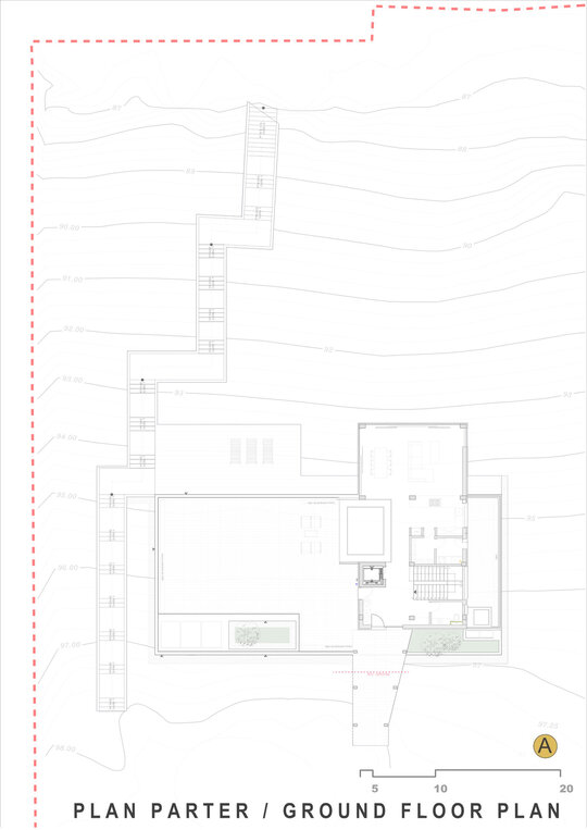
Vila Ali este volumul cel mai apropiat faţă de lac, cu două niveluri parter şi demisol, amplasate în panta terenului. Accesul se face prin volmul de sus- cu zona de zi ieşită în consolă înspre lac. Volumul demisolului conţine zona de noapte şi piscina, continuând cu amenajări terasate înspre pontonul cu firepit de la lac.