
Comentariul autorului:
…o casă cu perete de cățărat și eficiență energetică maximă - acestea au fost provocările pe care le-am primit pentru acest proiect.
Locația este un colț de rai, la marginea unei păduri, cu o orientare est-vest și o priveliște de vis asupra orașului Cluj-Napoca.
…rezilient…
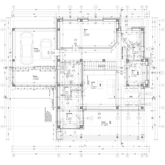
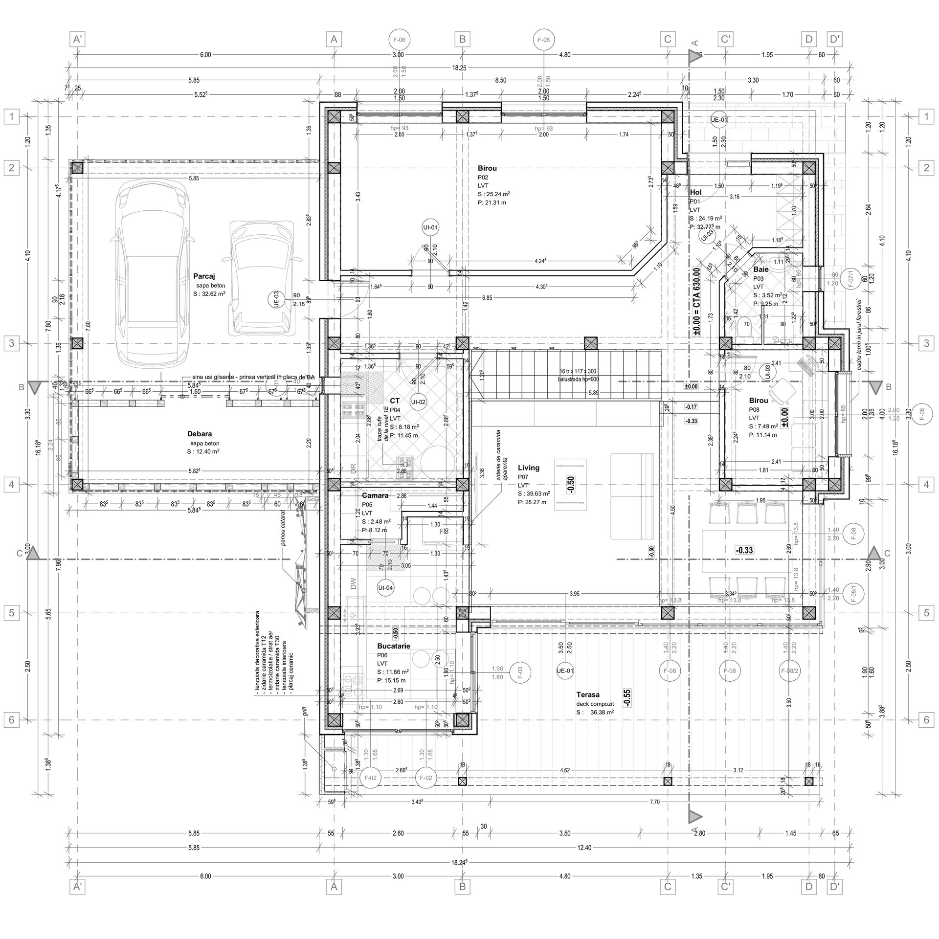
Pornind de la aceste premise și dorințele specifice ale clientului, am creat o casă cu un nucleu central format dintr-o cameră de zi pe două niveluri, în jurul căreia se desfășoară celelalte funcțiuni necesare unei locuințe confortabile.
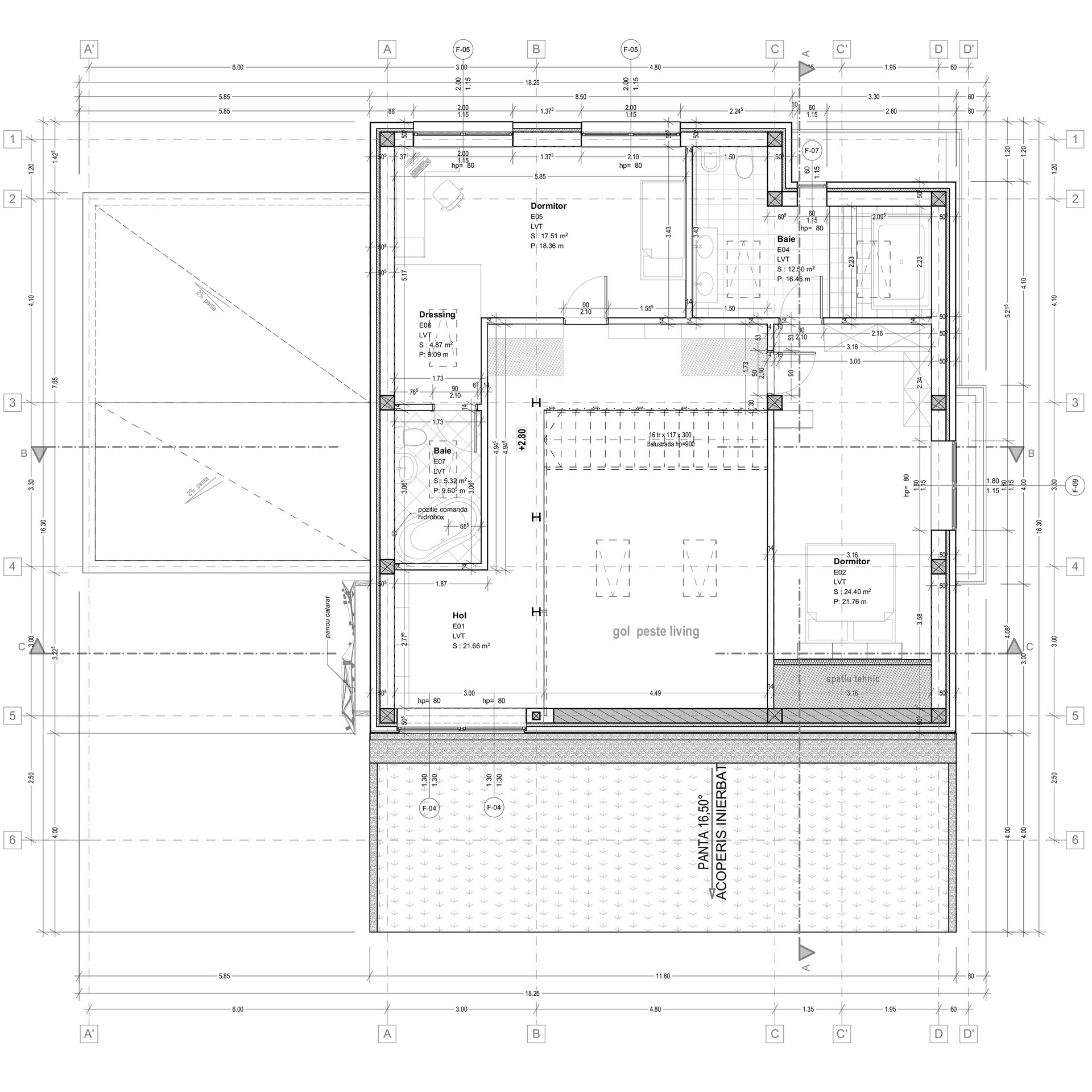
Funcțiunile de zi sunt amplasate la parter, la jumătate de nivel distanță, iar funcțiunile de noapte, împreună cu „colțul de pisică” al beneficiarei, se află la etaj. Acesta din urmă are un rol distinct și în volumetria casei, având o fereastră situată la nivelul șezutului divanului de lectură. Colțul a fost amenajat în parteneriat cu cei de la ȘEZI, cu piese de mobilier din lemn realizate special pentru acest spațiu.
Fațada nordică, care adăpostește și zona de car-port, are integrat pe toată suprafața un perete de cățărat cu surplombă, armonizat cu arhitectura clădirii.
…sustenabil…
Marea provocare a fost din punct de vedere tehnic: să realizăm o clădire cu o eficiență energetică ridicată, care să respecte standardele nZEB (deși clientul nu a solicitat certificarea) - pentru aceasta, pe lângă procedurile obișnuite de verificare a etanșeității și utilizarea de materiale cu proprietăți termoizolante adecvate, am folosit o zidărie dublă cu un strat de izolație (pentru care am dezvoltat un model specific de țesere) alternând cu zone de ventilație care asigură niște performanțe termice excelente pe timpul iernii și reduc necesarul de răcire pe timpul verii. Acestea, împreună cu o umbrire atent calculată prin intermediul streșinii și a acoperișului terasei din apropierea livingului, au permis construirea unei case care nu are nevoie de climatizare pe perioada verii.
…verde…
Un alt element esențial care a contribuit la această eficiență este acoperișul înierbat de tip extensiv, care prin caracteristicile sale de inerție termică și prin scăderea temperaturii superficiale datorită umbririi și evaporării a avut un rol important în realizarea unei construcții la standarde pasive. Vegetația aleasă a fost adaptată pentru o eficiență energetică sporită, fiind o vegetație care nu necesită irigare și poate supraviețui pentru perioade lungi doar datorită apei din stratul special de retenție al acoperișului.