
Comentariul autorului:
Amplasamentul studiat este situat în județul Cluj, în intravilanul municipiului Cluj-Napoca, în subzona centrală suprapusă peste nucleul istoric al orașului Cluj-Napoca, făcând parte din incinta fortificată, considerată rezervație de arhitectură.
În anul 1898 au avut loc schimbări urbanistice importante în centrul orașului Cluj-Napoca, cu precădere în jurul bisericii Sf. Mihail și pe latura estică a Pieței Mari, cunoscută sub numele de Piața Unirii. Aceste schimbări au presupus demolarea clădirilor proprietate a bisericii Sf. Mihail, aflate în jurul acesteia, drept urmare administrația locală a despăgubit biserica cumpărându-i două case, cunoscute astăzi drept „casele Radak”. În vecinătatea acestor case, biserica deținea o proprietate denumită casa “Tivoli”, fapt ce a generat cumpărarea celei de-a patra case, situate imediat lângă aceasta de la urmașii familiei Frank Kis.
Pentru o mai bună folosință a proprietăților, administratorul de atunci al bisericii, Groisz Gustav a propus prelungirea străzii Iuliu Maniu (pe atunci aceasta strada mergea pana în str. Trivoli - Bolyai Janos de astăzi, și se numea Szentegyhaz utca) până la piață, urmând ca pe noua stradă să construiască un ansamblu de locuințe de raport, conform cerințelor timpului. Astfel, după deschiderea străzii respective s-au construit “Palatele Statusului”.
Cu toate că orașul a pierdut în urma acestor demolări case valoroase din renaștere, a câștigat noua stradă, ca fiind cea mai “urbană” a Clujului, cu o configurare unică a fațadelor, simetrică raportat la axul străzii. Astfel, ansamblul creat este compus din șase unități (case de scări), fiecare cu o intrare proprie, în stil eclectic - neobaroc și renaștere - caracteristic arhitectului Alpar Ignac. În 16 septembrie 1899, clădirile au fost predate spre execuție firmei constructoare Hauszmann es Tarsa.
După finalizarea construcției, s-au deschis la parterul acestor clădiri sub vitrine elegante unele dintre spațiile comerciale și de alimentație publice cele mai pretențioase din oraș, iar la etajul ansamblului s-a mutat cercul de lectura Nemzeti Kaszino (Cazinoul National), etc. Etajele au fost destinate locuințelor, însă multe din apartamente au fost închiriate de birouri de avocatură, atrase de poziția privilegiată a celor două palate, considerate cele mai selecte imobile de raport ale orașului.
Imobilul de pe str. Iuliu Maniu nr. 1 P-ța Unirii nr. 30 este în proprietatea Statului Român și în administrarea Consiliului Local Cluj-Napoca.
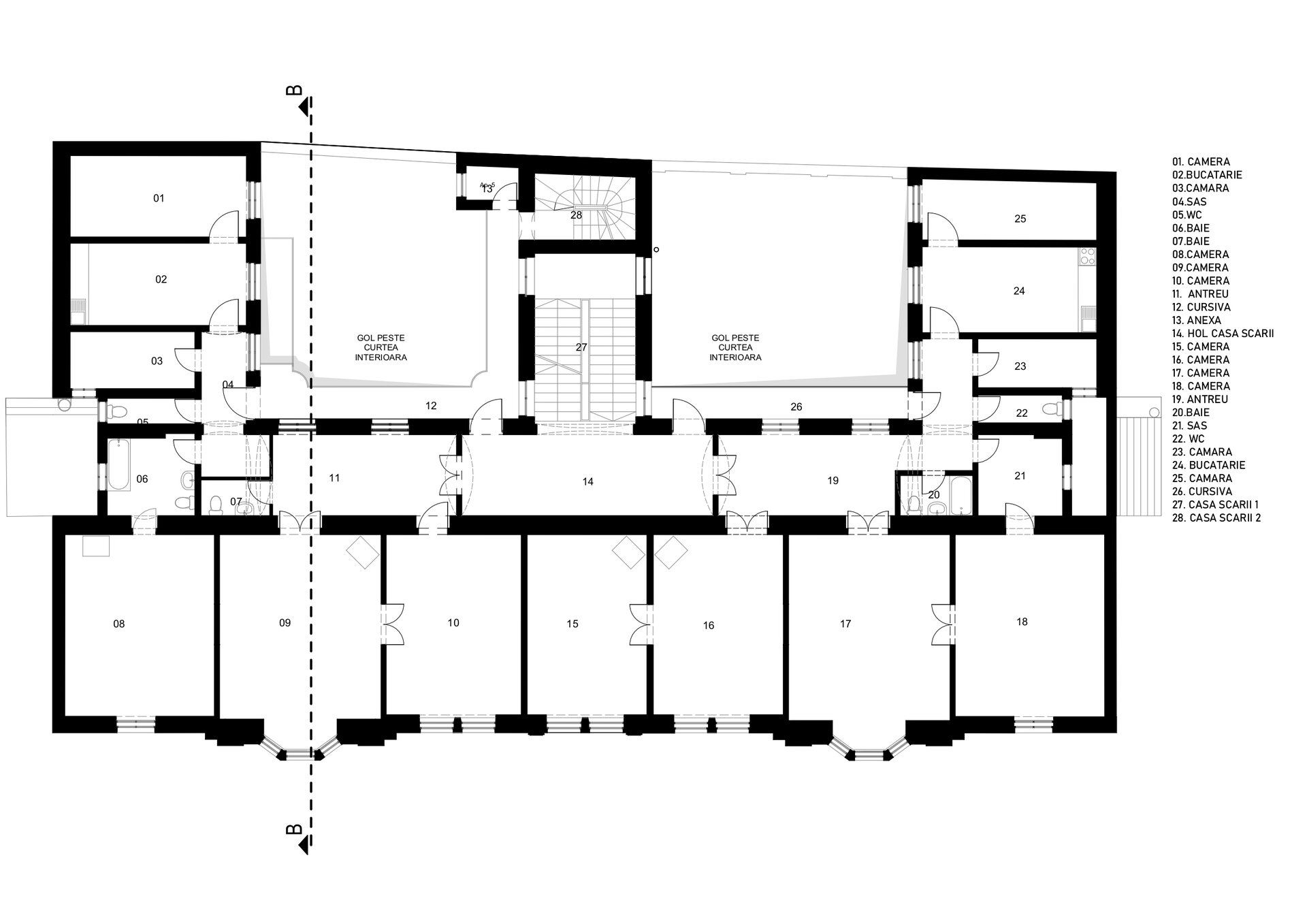
Ansamblul de clădiri cunoscute sub denumirea „Palatele Statusului romano-catolic” din care face parte și imobilul studiat se situează pe latura estică a pieței centrale din care se deschide strada Iuliu Maniu, sub nr. 1-6, compuse din două corpuri de imobile, alcătuite fiecare din trei tronsoane care definesc un front continuu de aproximativ 100 de metri pe segmentul Piața Unirii și strada Bolyai Janos din aceeași strada. Terenul este relativ plat, suprafața aproximativă ocupată este de 5550 mp. Planimetric cele două corpuri de imobile diferă, datorită terenului mult mai mare avut la dispoziție pentru construcția palatului sudic.
În prezent accesul auto se poate realiza din Piața Unirii, prin strada I. Maniu fiind cu sens unic în direcția Pieței Avram Iancu. Accesul pietonal se realizează direct de pe strada I. Maniu prin câte o poartă, respectiv gang asociat cu curțile interioare și circulațiile verticale din fiecare imobil. Parterul acestora adăpostesc funcțiuni publice - servicii, comerț și alimentație publică, majoritatea având accesul direct de pe strada I. Maniu.
Imobilul se invecineaza la Nord cu Muzeul de Artă (Palatul Bánffy), la Est cu imobil Iuliu Maniu nr. 5 (Facultatea de Teologie Romano-Catolică), la Sud de str. Iuliu Maniu, la Vest de imobil Iuliu Maniu nr. 1.
Scurt istoric:
În anul 1898 au avut loc schimbări urbanistice importante în centrul orașului Cluj-Napoca, cu precădere în jurul bisericii Sf. Mihail și pe latura estica a pieței mari, cunoscuta sub numele de Piața Unirii. Aceste schimbări au presupus demolarea clădirilor proprietate a bisericii Sf. Mihail, aflate în jurul acesteia, drept urmare administrația locală a despăgubit biserica cumpărându-i două case, cunoscute astăzi drept “casele Radak”. În vecinătatea acestor case, biserica deținea o proprietate denumita casa “Tivoli”, fapt ce a generat cumpărarea celei de-a patra case, situate imediat lângă aceasta de la urmașii familiei Frank Kis.
Pentru o mai bună folosință a proprietăților, administratorul de atunci al bisericii, Groisz Gustav a propus prelungirea străzii Iuliu Maniu (pe atunci aceasta strada mergea pana în str. Trivoli - Bolyai Janos de astăzi -, și se numea Szentegyhaz utca) până la piață, urmând ca pe noua stradă să construiască un ansamblu de locuințe de raport, conform cerințelor timpului. Astfel, după deschiderea străzii respective s-au construit “Palatele Statusului”.
Cu toate că orașul a pierdut în urma acestor demolări case valoroase din renaștere, a câștigat strada cea mai “urbană” a Clujului, cu o configurare unică, simetrică pe axul străzii a fațadelor. Astfel, ansamblul creat este compus din șase unități (case de scări), fiecare cu intrare proprie, în stil eclectic - neobaroc și renaștere - caracteristic arhitectului Alpar Ignac. În 16 septembrie 1899, clădirile au fost predate spre execuție firmei constructoare Hanszmann es Tarsa. Tamplăria vitrinelor magazinelor de la parter au fost realizate după proiectul tâmplarului Komáromi János.
După finalizarea construcției, s-au deschis la parterul acestor clădiri sub vitrine elegante unele dintre spațiile comerciale și de alimentație publice cele mai pretențioase: magazinul de condimente harasszthy jeno, magazinul de pălării ale surorilor sari, restaurantul lui varga marton, cofetăria lui sebok istvan, cafeneaua kikaker. De asemenea, în același ansamblu au început să funcționeze compania de asigurări triessi, spațiul de expoziție vilag panorama (panorama mondiala), ateliere de croitorie și pantofărie, iar la etajul ansamblului s-a mutat cercul de lectura nemzeti kaszino (cazinoul national), etc. Etajele au fost destinate locuințelor, însă multe din apartamente au fost închiriate de birouri de avocatură, atrase de poziția privilegiată a celor două palate, considerate cele mai selecte imobile de raport ale orașului.