
Comentariul autorului:
Proiectul de fata a reprezentat o provocare: realizarea unei noi aripi a Spitalului Municipal Brasov – sectia Primiri Urgente (unul dintre cele mai importante spitale din Romania).
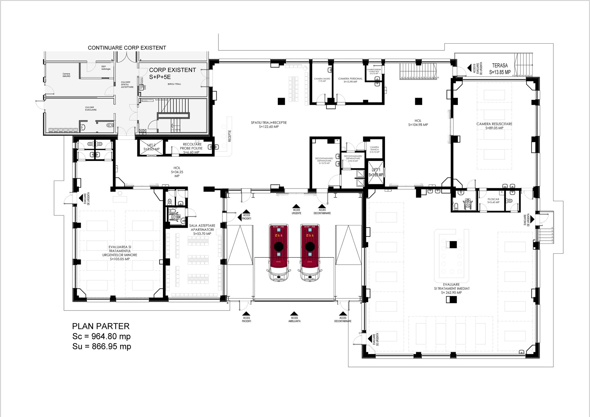
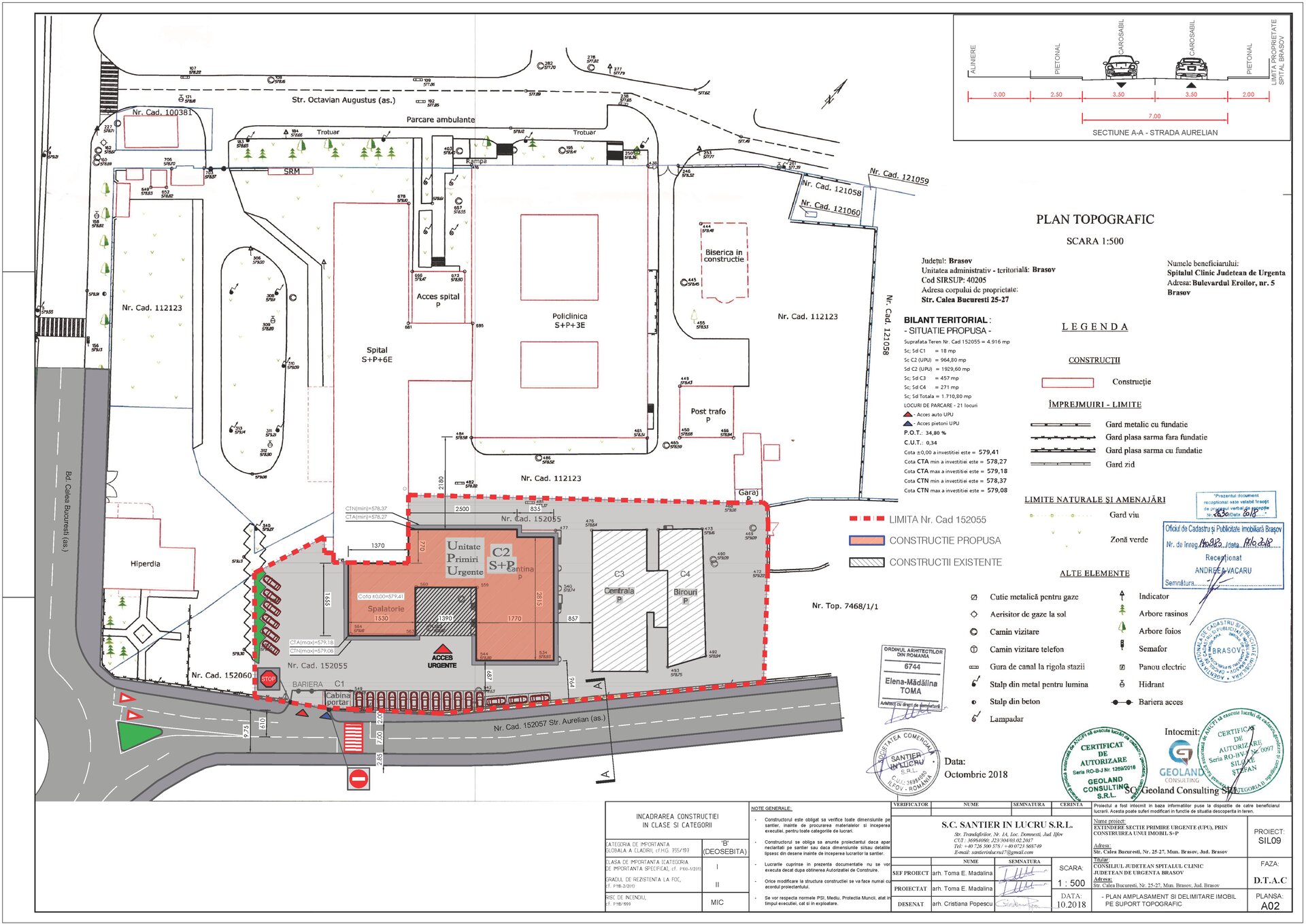
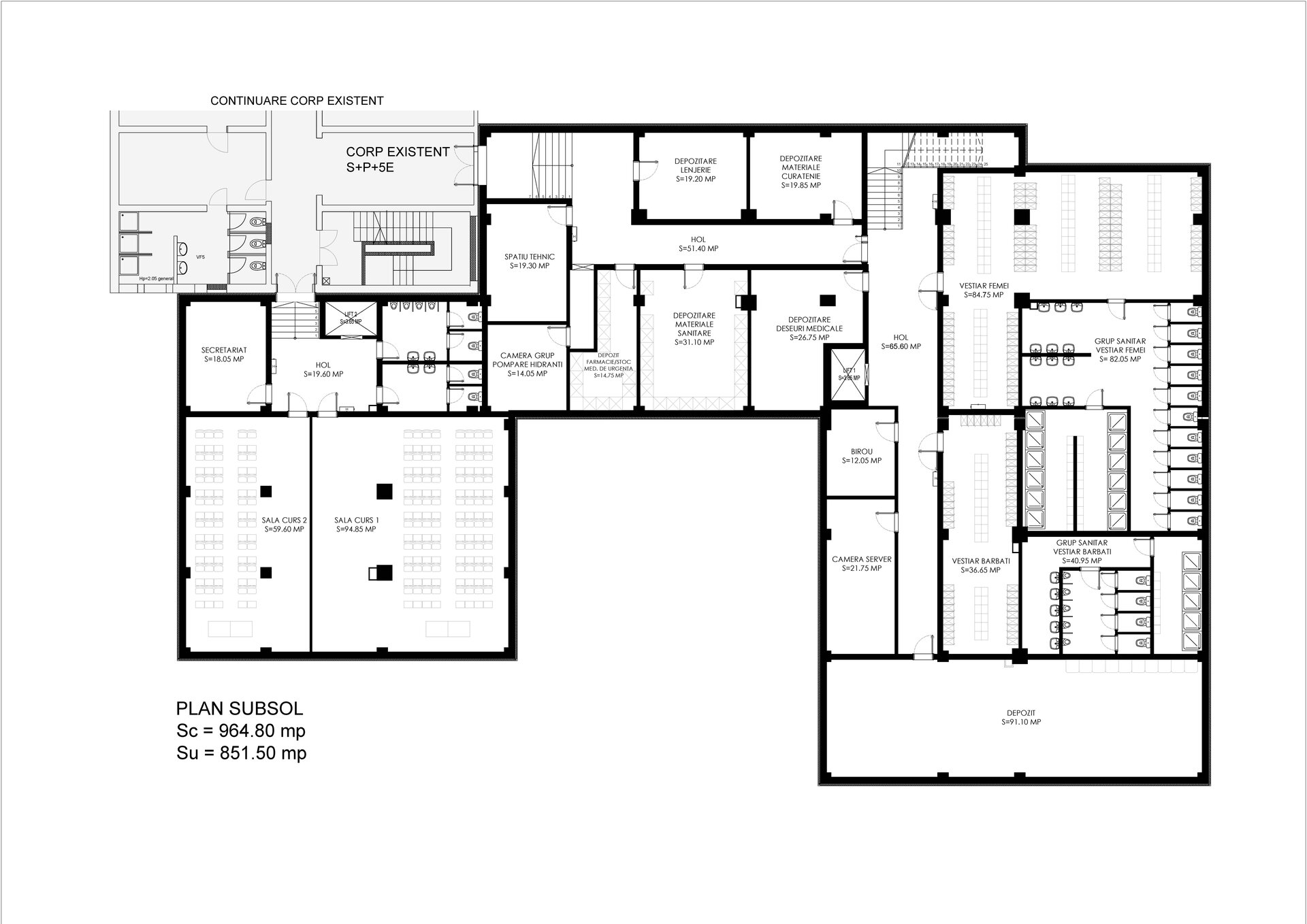
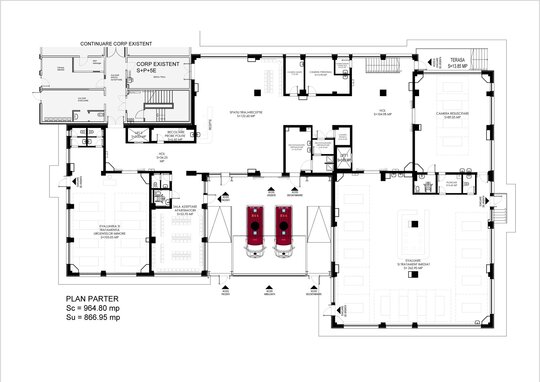
Noua aripa a Spitalului Municipal Brasov – sectia Primiri Urgente a fost proiectata ca o constructie S+P (Subsol + Parter) realizata din cadre de beton armat, fundatie tip radier general, cu inchideri exterioare din zidarie de caramida, peretii de compartimentare interiori fiind realizati tot din zidarie de caramida, iar suprafata construita la parter este de 964,80 mp.
Noul corp de cladire se va construi peste vechiul corp existent C2 care a fost demolat - ce a adapostit spatii pentru cantina si spalatorie, ce va fi demolat – si, va adaposti functiunile pentru Unitatea de Primire Urgente, si va fi structurat pe doua nivele: subsol si parter.
La nivelul parterului se vor gasi urmatoarele: hol de acces cu doua intrari (o intrare pentru pacientii transportati cu ambulanta si o intrare pentru cei deplasabili), spatiu triaj+receptie, camera resuscitare, evaluare si tratament imediat, grupuri sanitare, holuri, ploscar, spatii pentru decontaminare/deparazitare (cu acces direct din exterior), camera pentru SMURD, camera personal, camera de recoltare probe biologice pentru Politie, spatiu pentru evaluare si tratament imediat (pentru urgentele majore), camera tehnica, spatiu pentru evaluarea si tratamentul urgentelor minore, sala de asteptare pentru apartinatori.
La nivelul subsolului se vor gasi urmatoarele: doua sali de curs destinate intalnirilor colective ale personalului UPU si instruirii personalului si a rezidentilor, grupuri sanitare pentru personalul medical, vestiare pentru personalul medical, spatii depozitare, holuri, secretariat, spatiu rezerva, camera server, birou, anexa, spatiu tehnic.
Estetica cladirii este una moderna, fatadele continand o serie de elemente estetice stilizate inspirate din natura (o serie de copaci stilizati) dar si din tehnologie (jocul de tetris).