
Comentariul autorului:
In baza comenzii beneficiarului si a conditiilor impuse prin certificatul de urbanism eliberat de Primaria mun. Bacau, a fost realizat proiectul de arhitectura pentru: Construire imobil spatii medicale, comerciale si birouri, amplasament: str. Pictor Th. Aman nr. 40 mun. Bacau, jud. Bacau. Pentru a raspunde functiunilor impuse de tema, propunerea prevede realizarea unui imobil cu spatii comerciale, medicale, birouri si amenajare parcare.
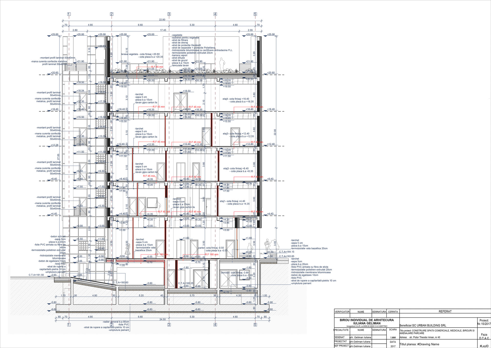
Constructia propusa are un regim de inaltime D+P+5R , cu trei noduri de circulatie dotate cu scara si lifturi iar la ultimul nivel un acoperis tip terasa circulabila amenajata pentru relaxare. Accesul principal in imobil este situat pe latura de vest. Accesele secundare se fac pe laturile de sud si est. Accesul auto in parcarea auto amplasata in demisol se face pe latura de est.
Din punct de vedere arhitectural, constructia va avea urmatoarea schema functionala :
Demisol : parcare subterana, spati tehnice, spatii medicale RMN, RX etc
Parter : spatii medicale si spatii comerciale ;
Etaj 1, 2, 3 : spatii medicale ;
Etaj 4 : birouri ;
Etaj 5R : birouri, terasa circulabila.
POT-54 %
CUT -3