
Comentariul autorului:
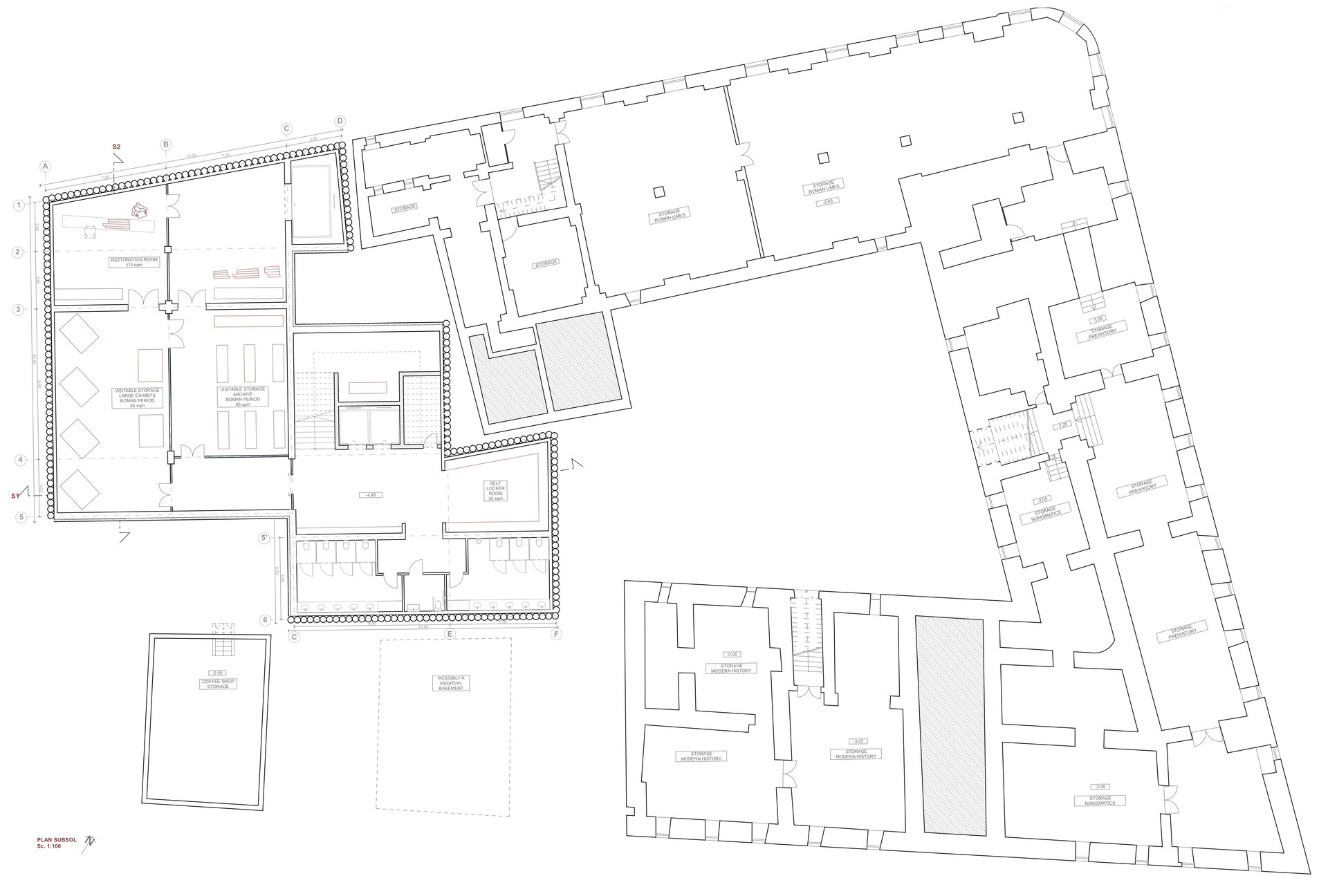
Inițiativa principală a proiectului este aceea de a revitaliza unul dintre cele mai importante muzee de istorie din Transilvania dar și din România. Muzeul actual suferă de o decădere continuă din lipsă de fonduri și interes pentru vasta colecție ce o deține, astfel din 2008 muzeul nu mai deține sau mai bine spus nu mai oferă vizitatorilor o expoziție permanentă, ceea ce face prin absurd ca titulatura de muzeu să nu ii se potrivească, deoarece, cum poate funcționa un muzeu fără a avea o expoziție? Ei bine, poate doar prin inițiative proprii de a crea expoziții temporare. Privind la schema funcțională a muzeul, lucrul ce frapează cel mai mult, este acela că, 81% din toate încăperile muzeului sunt folosite pe post de depozitare, expozițiile valorând doar 14%, atenție, dintr-un număr total de 3547 de metrii pătrați, asta fără a pune la socoteală depozitele aflate la subsol. Printre aceste încăperi care astăzi se număr printre depozitări, se regăsesc două lapidare, unul medieval, in a cărui colecție se regăsesc lucrări de o valoare deosebită din arta medievală transilvăneană, având o vastă colecție de ancadramente, pietre funerare, sarcofage, statui si lucrări in piatră și un al doilea lapidariu, cel roman, având o colecție impresionantă de statui datând din epoca romana din Transilvania, dar și coloane, sarcofage si scrieri romane.
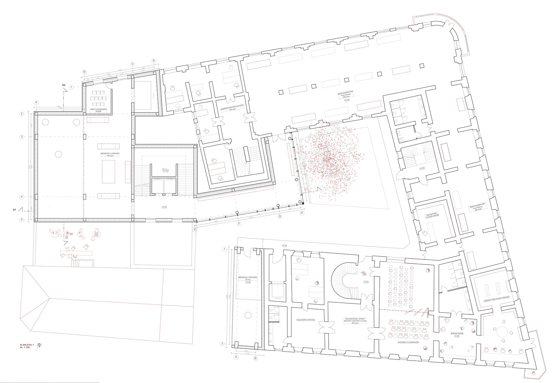
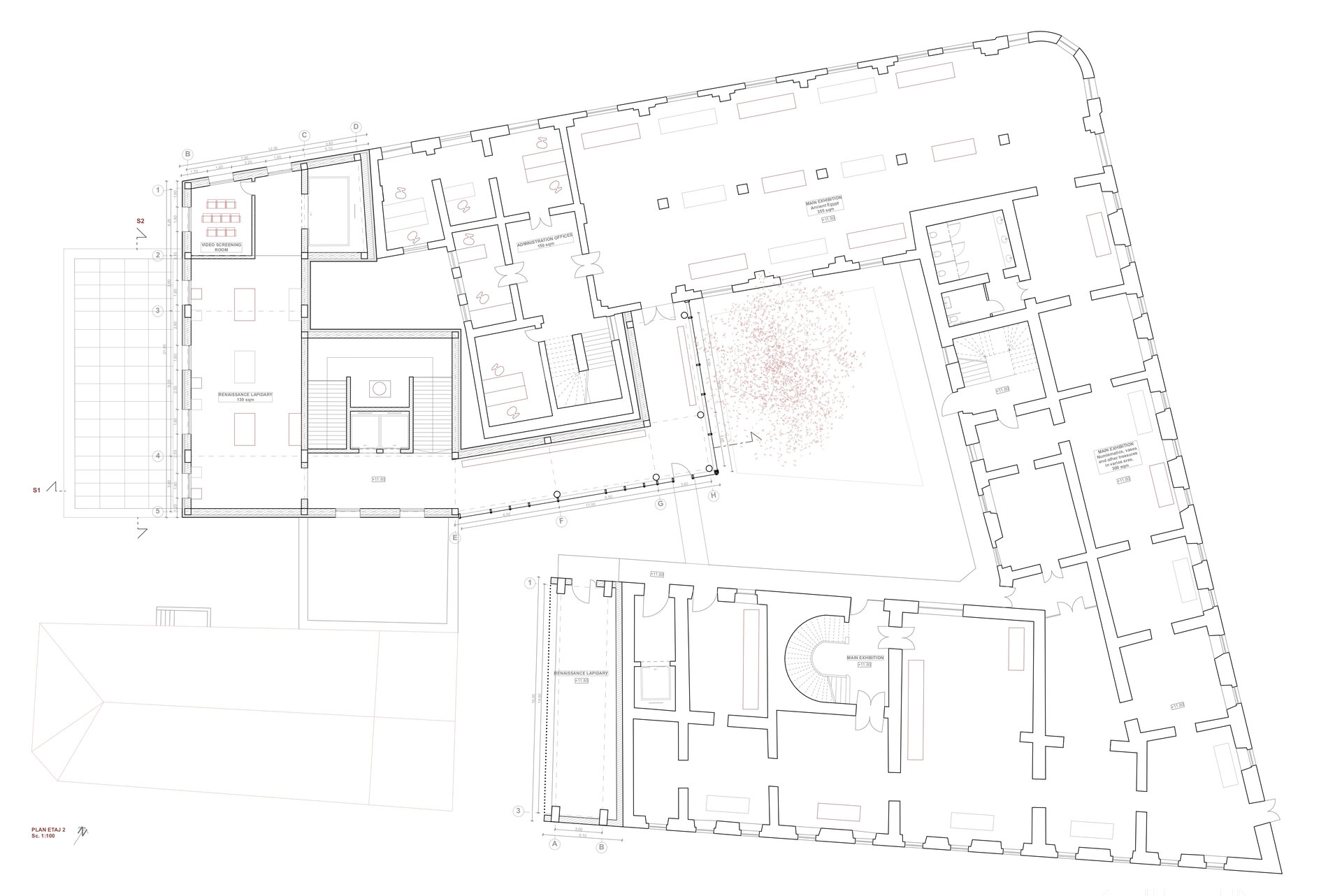
Astfel tema, propune, extinderea muzeului actual cu o nouă secție, cea de lapidariu, care se dorește să includă o parte din vastele colecții ale muzeului, romană, medievală, renascentistă, barocă, toate cele 4 într-o expoziție permanenta care să le arate valoarea si de care publicul din Transilvania și România sa se bucure. Acest nou lapidariu își propune atât o expoziție permanentă cât și o expoziție temporară care prin flexibilitate să poată coabita dar în același timp să poată funcționa și distinct. Astfel odată cu noua secție și clădirea actuală a muzeului să poată să-și reorganizeze schema funcțională pentru a putea dezvolta noi expoziții. Prin extindere dorindu-se totodată si eliberarea spațiilor captive de depozite din acest moment și construirea la nivelul subsolului noului lapidariu de secții de conservare și restaurare pentru ca muzeul să poată întreprinde propriile cercetări și restaurări la fața locului.
Necesitatea acestei investiții este evidentă, este o investiție care este menită să pună în valoare patrimoniul nostru cultural, istoria noastră și nu în ultimul rând, rădăcinile noastre. Este o investiție în cultură, un lucru necesar în dezvoltarea noastră ca societate, fiindcă cunoașterea trecutului reprezintă o cale incontestabilă de evoluție si conștientizare a valorilor si rădăcinilor ce ne caracterizează.
Efectele asupra zonei fiind benefice atât la nivel macro cât și la nivel micro, unde atât muzeul ca instituție beneficiază de o reorganizare și o mai bună gestionare a spațiului și a colecțiilor deținute cât și țesutul urban din zona de intervenției care este completat cu o propunere racordată la cerințele sale.
Astfel, zona aleasă pentru această extindere, sunt parcelele învecinate actualului Muzeu de istorie, strada C. Daicoviciu colț cu strada O. Petrovici, împreună cu casa existent la nr. 17 pe Strada O. Petrovici.
Particularul programului propus este acela că își propune să reutilizeze ceea ce se găsește pe amplasamentul propus, în primul caz având o casă de secol XIX cu specific burghez care se dorește a fi reabilitată și de a fi integrată în circuitul muzeal ca fiind cafenea si magazin de suveniruri, două funcțiuni de care
Conceptul de organizare spațială prevede ca nouă intervenție să găzduiască noile expoziții fiind special proiectate pentru acestea, legătura casei vechi cu noua propunere fiind făcută prin intermediul funcțiunii de cafenea și magazin de suveniruri, cafeneaua fiind gândită să funcționeze în scenarii independente la fel si galeriile care sunt gândite sa găzduiască si expoziții temporare, într-un sistem care să facă posibilă funcționarea independentă.