
Comentariul autorului:
Situl propus pentru proiectul de diploma se afla in Bucuresti, Splaiul Independentei nr.264 a, pe malul raului Dambovita – ax natural de dezvoltare a orasului pe directia est-vest.
Terenul are o deschidere principala la Splaiul Independetei si o deschidere secundara la strada General Petre Popovat.
Centrul de cercetare si inovare propus prin proiectul de diploma, situat in vecinatatea campusului Universitatii Politehnica Bucuresti si a unor cladiri importante de birouri (Orhideea Towers) are rolul, prin solutia de arhitectura propusa, de a dezvolta, inova si completa o infrastructura pentru educatie, cercetare, inovare si transfer tehnologic care sa determine o colaborare intre actori din sistemul de cercetare si educatie, mediul anteprenorial si economic și societatea civilă.
Proiectul propus raspunde Planului de strategie si dezvoltare 2019/2025 al UPB (mentioneaza ideea de creare a unui hub dedicat programelor de tip start-up, prin care universitatea isi va directiona catre centru cercetari din domeniul tehnologic ) si se inscrie in: 1. Strategia culturala a Muncipiului Bucuresti 2016/2026 (traseaza in mod conex pentru proictul de diploma cererea pentru extinderea si integrarea prezentei tehnologiilor in viata urbana prin proiecte care contin cercetari, training-uri, workshop-uri privind tehnologiile), 2.Strategia Space Syntax ( strategie de dezvoltare care propune p reganadire a malului Dambovitei ca un ecosistem urban ce are la baza interactiunea dintre actori spatiali si functiuni) si 3.Strategia 2.0 a industriei IT, Bucuresti ( vizeaza dezvoltarea ecosistemului pentru inovare digitala si sustinere a start-up-urilor in IT competitive). Aceasta va raspunde astfel si prioritatilor UE de promovoare a stiintei si tehnologiei in societate, urmarind cresterea apetitului tinerilor pentru cariere din domeniul tehnologiei digitale.
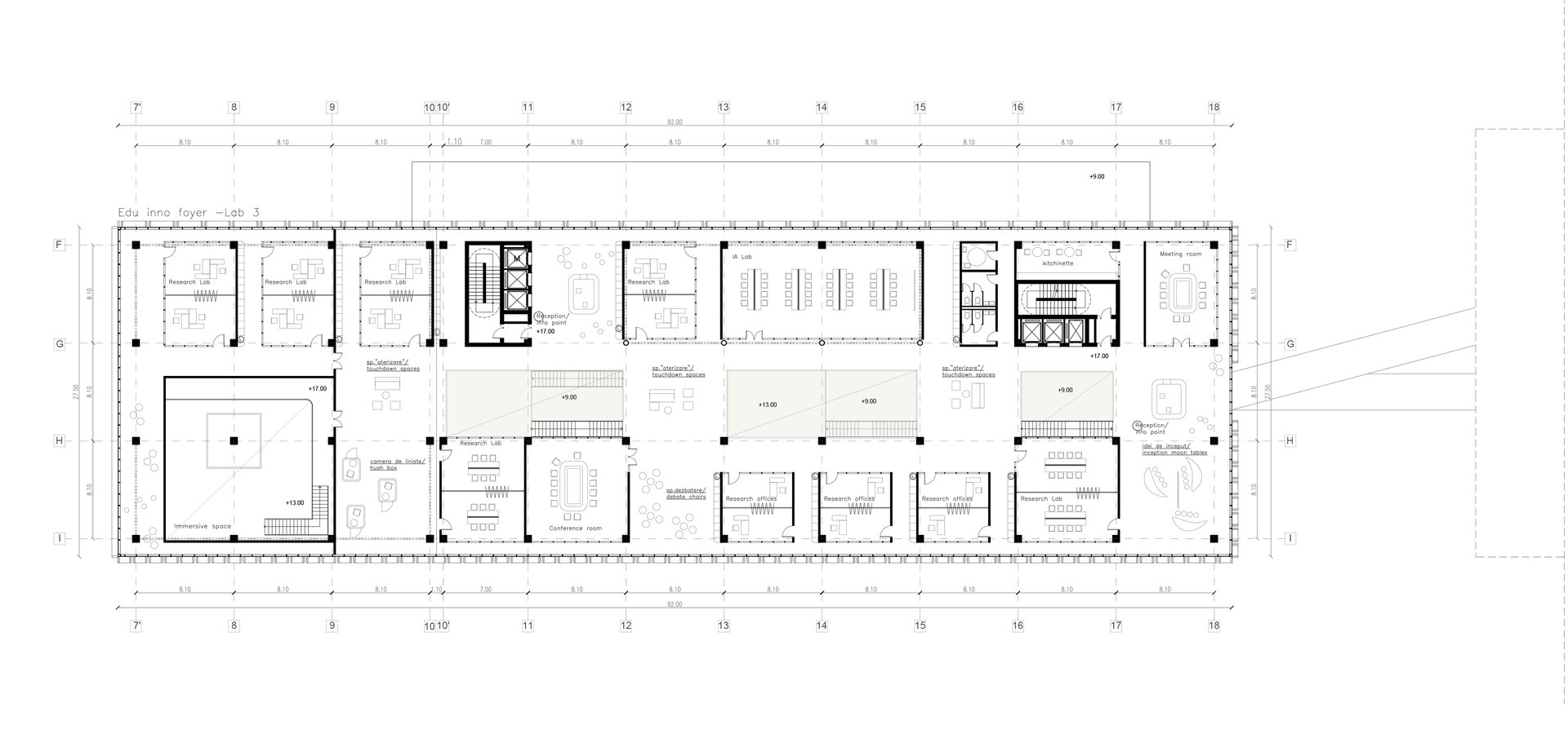
Program arhitectural propus - functiune mixta & spatii ce pot sustine medii hibride real-digital.
Cladirea, construita atent alaturi de o un spatiu urban de tip piateta, pune bazele unei vieti dinamice si creative pentru cei implicati/beneficiari, dar si pentru locuitori , intarind imaginea orasului in procesul de dezvoltare, ca oras orientat spre viitor si conectat la problemele actuale.
Miza architectural-urbana a proiectului se bazeaza pe cateva concept cheie precum : diversitate in utilizare (colaborare, experienta ), rezilienta – flexibilitate si adaptabilitate in timp, sustenabilitate. Ca demers conceptual al proiectului , cladirea propune in masterplan un turn de birouri ce preia functiunea de Business entrepreneurship cu birouri de tip start-up, cladirea detaliata fiind un centru de inovare in tehnologie digitală.