
Comentariul autorului:
REABILITAREA, CONSOLIDAREA SI REFUNCTIONALIZAREA OBSERVATORULUI ASTRONOMIC DIN IASI
ARHITECTURĂ:
Specialist MC arhitect CORNELIU CIOBĂNAȘU
Specialist MC arhitect BOGDAN IONUȚ MIHUL
arhitect FLORICICA FOIA
arhitect DIANA ZAHARIA
REZISTENȚĂ:
Specialist MC ing. FIRTEA CONSTANTIN
ing. BOGDAN BOTEZATU
ing. ION GHIOGHIU
INSTALAȚII:
ing. RADU PĂDURARIU
ing. IONUȚ ANDREI ALEXANDRU
RESTAURĂRI
Restaurator Gheorghiu Mircea
Restaurator Grecu Victor
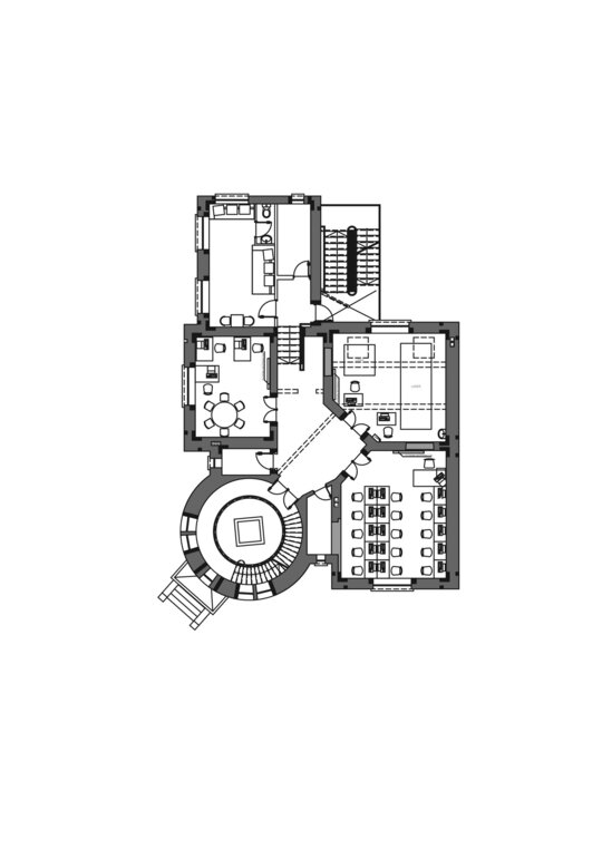
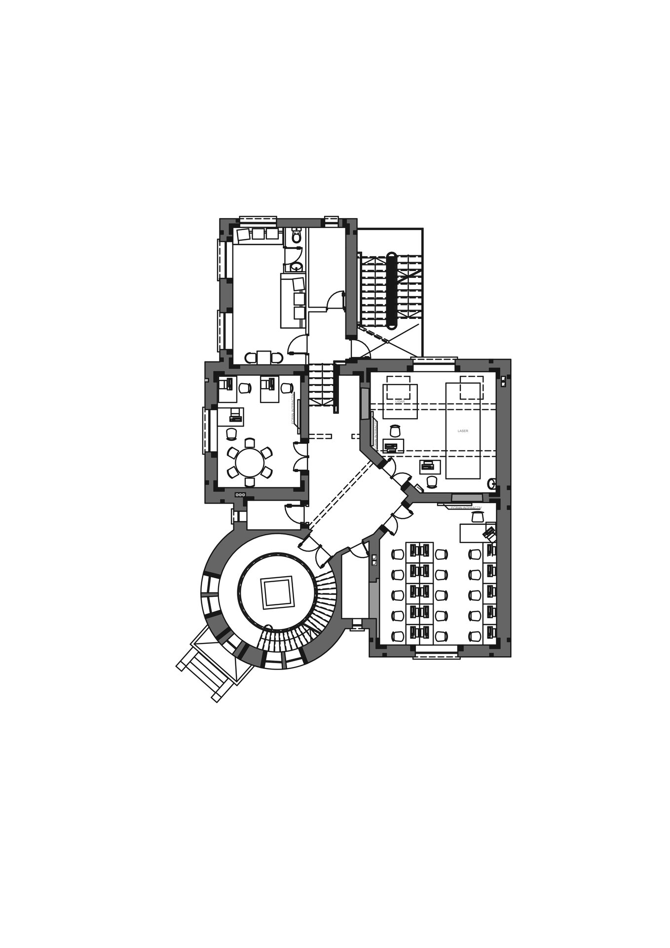
- regim de înălţime al clădirii = Demisol+ Parter + Etaj1 + Etaj 2 parțial ( turelă)
- aria construită = 208,73 mp.
- aria desfăşurată = 668,82 mp.
- suprafaţa terenului = 12 537,00 mp
- procentul de ocupare a terenului: existent – 8,19% ; propus – 8,15%
- coeficientul de utilizare a terenului: existent – 0,11; propus – 0,11
Observatorul Astronomic Iași a fost ridicat la începutul celui de-al doilea deceniu al secolului trecut, sub supravegherea profesorului universitar Constantin Popovici (1878-1956), pe un teren aflat la acea dată mult în afara orașului, pe un generos lot de peste un hectar în suprafață, fiind gândit ca laborator de astronomie pentru facultatea de matematică a Universității ” Alexandru Ioan Cuza”.
Clărirea a funcţionat fără întrerupere ca spațiu de învăţământ universitar și locuință de serviciu până în anul 2013, când localul acesteia a fost abandonat din cauza degradării fizice și a lipsei unui sistem de încălzire eficient, astfel încât monumentul și-a petrecut centenarul în părăsire și o nedreaptă uitare.
Planimetria originală era compusă din turnul de intrare, cu turelă pentru lunetă, care conţinea şi scara de acces la etajul I și nivelul turelei, precum şi două aripi echivalente ca formă şi dimensiuni, în regim demisol – parter şi etaj, ale căror axe de compoziţie se intersectau la un unghi de 90 de grade chiar în centrul cercului care marca planul turnului. Pe latura de Vest imobilul a fost prevăzut cu o atenansă alipită - casa observatorului - respectiv o mică locuință parter cu acces direct din holul cu scara elicoidală. După finalizarea completă a acestei prime etape de existență a clădirii, din necesitatea extinderii spațiului, s-a decis ca pe zona de Nord – Vest, între cele două aripi inițială, să se construiască o aripă suplimentară, în acelaşi regim de înălţime, respectiv demisol parter şi etaj, cu acces din holul principal de decomandare a tuturor spaţiilor. Tot atunci s-a realizat și o supraetajare a casei observatorului, însă din cauza imposibilității accesului direct din clădirea principală dată fiind diferența de cote, aceasta a fost prevăzută cu o scara exterioară pe fațada de Vest, extrem de abruptă și cu trepte defectuos dimensionate.
Turnul de acces avea practic triplu rol: estetic, el marchează intrarea, constituind principalul accent al compoziţiei de faţadă; din punct de vedere al circulaţiilor, acesta era practic casa scării imobilului, adăpostind o rampă circulară care face legătura între parter, etaj şi turela din vârf; funcţional turnul acţionează ca un izolator de vibraţii pentru piedestalul lunetei, întrucât acesta are propria lui fundaţie, separată faţă de cea a Observatorului. Iniţial piedestalul era perfect cilindric însă s-a constatat în timp că acesta nu era destul de stabil, mai ales în timpul mişcărilor seismice. În consecinţă, în timp, forma sa a fost modificată, ajungându-se în prezent la geometria de trunchi de piramidă, păstrându-se însă terminaţia cilidrică originală. Turnul se termină printr-o turelă de lemn, care adăposteşte o lunetă de observare a aştrilor, care în timp a fost modernizată, improvizându-i-se un sistem de manipulare electric. Deasupra aripii de Vest exista o generoasă terasă de vizitare a cerului cu acces direct din turela lunetei.
În anii 60 -70 ai secolului trecut s-a efectuat şi una dintre cele mai bizare intervenţii asupra clădirii, prin acoperirea terasei de vizitare a cerului şi transformarea acesteia în ceea ce timp de jumătate de secol s-a numit „sala Meridian”. Intenţia de a crea un spaţiu suplimentar protejat s-a lovit de impedimentul necesităţii respectării înălţimii de observare a turelei, astfel încît noul planşeu nu putea fi ridicat mai sus decât cota şinei de rotire a turelei. În consecinţă înălţimea liberă rezultată a noii încăperi era de numai 2,20 m iar înălţimea liberă sub grinzile de susţinere a planşeului este de 1,85m.
Proiectul de restaurare a imobilului a pornit practic de la intenția de a reitera imaginea originală a monumentului, păstrată într-o singură fotografie din Colecția de Stampe și Fotografii a Arhivelor Naționale, filiala Iași, în care Observatorul era surprins cel mai probabil în perioada interbelică. Din punct de vedere funcțional, partiul a fost adaptat pentru continuarea utilizării inițiale – respectiv cercetarea astronomică – adăugându-i-se noi valențe legate de cercetarea mediului și problematica poluării atmosferice. Totodată proiectul a avut drept scop restaurarea vechilor ziduri astfel încât pe lângă funcțiunea sa inițială – de spațiu de cercetare și de învățământ universitar – să i se poată conferi și posibilitatea de largă utilizare publică prin facilitarea accesului vizitatorilor la terasa de vizitare a cerului și luneta din turela originală a Observatorului, la evenimentele astronomice importante. În aceste condiții, singura modificare volumetrică a fost construirea unei scări exterioare pe zona extinderilor ulterioare planimetriei originale, care să permită accesul publicului la terasa de vizitare a cerului direct din exterior, fără a mai trece prin corpul principal, dat fiind faptul că scara originală elicoidală nu mai întrunea calitățile necesare siguranței în exploatare și nevoilor de evacuare la nivelul cerințelor actuale.
Suplimentar, dispunerea laboratorului de cercetare atmosferică sub terasă a creat posibilitatea contactului nemijlocit cu atmosfera a echipamentelor LASER și și LIDAR prin intermediul a două cupolete cu deschidere comandată electric.
Etajul fostei locuințe a observatorului a fost racordat de corpul clădirii principale la nivel de circulație, astfel că la nivelul superior al atenansei s-a reiterat vechea cameră a observatorului, iar la parter s-au organizat grupurile sanitare. Au fost restaurate cea mai mare parte a tâmplăriei, decorațiunile fațadei din mortar și cele câteva elemente din fier forjat din categoria balustradei scării originale și suporților de ghivece cu flori de la ferestre. O atenție deosebită s-a acordat restaurării mozaicului original păstrat pe treptele scării holului și recompunerii inscripției cu anul edificării din fața intrării principale, cea originală fiind pierdută la o refacere a pardoselii holului din anii 80, fiind înlocuită cu o replică modestă, nefericit executată.