
Comentariul autorului:
Experiența universitară a unui student a fost dintotdeauna privită ca o perioadă esențială în dezvoltarea acestuia. Acumularea cunoștințelor generale, consolidarea unui fond referențial dedicat diferitelor specializări și, nu în ultimul rând, relațiile inter-umane dobândite în acest interval de timp sunt considerate (încă) fundamentul evoluției sale atât din punct de vedere profesional, cât și social. Trebuie spus, totuși, că așa-numita „viață de student” nu se referă numaidecât la mediul academic și nu a fost niciodată asociată doar cu ideea de cunoaștere sub autoritatea unei instituții de învățământ.
De fapt, cei care au avut parte de o astfel de experiență rememorează acele momente făcând distincție între întâmplările petrecute în sălile de clasă și cele petrecute afara lor. Mai mult, o mare parte dintre aceștia asociază astfel de amintiri din afara universităților, facultăților sau școlilor profesionale cu atmosfera aparte a camerelor, coridoarelor și curților din celebrele cămine studențești.
Dincolo de utilitatea lor imediată și de prezența lor ca dotare(anexă) a clădirii unei unități de învățământ, campusurile universitare s-au dovedit a fi, de-a lungul timpului, mai mult decât simplă locuire sau cazare, valențele lor funcționale fiind nuanțate de spontaneitatea și complexitatea tipurilor de activități ale comunităților de studenți.
Totuși, astfel de activități, chiar și aflate sub umbrela unui farmec autohton aparte, au fost de cele mai multe ori improvizate în spații fără un potențial real, care și-au extins forțat posibilitățile funcționale. În prezent însă, având în vedere profilul studentului modern, necesitățile lui și, totodată, deficiențele acelor construcții ridicate între anii 1960 și 1980 în orașele universitare, proiectul pentru un cămin studențesc trebuie să fie „sensibil” la aceste particularități specifice societății și mediului academic actual, aflate într-o continuă schimbare.
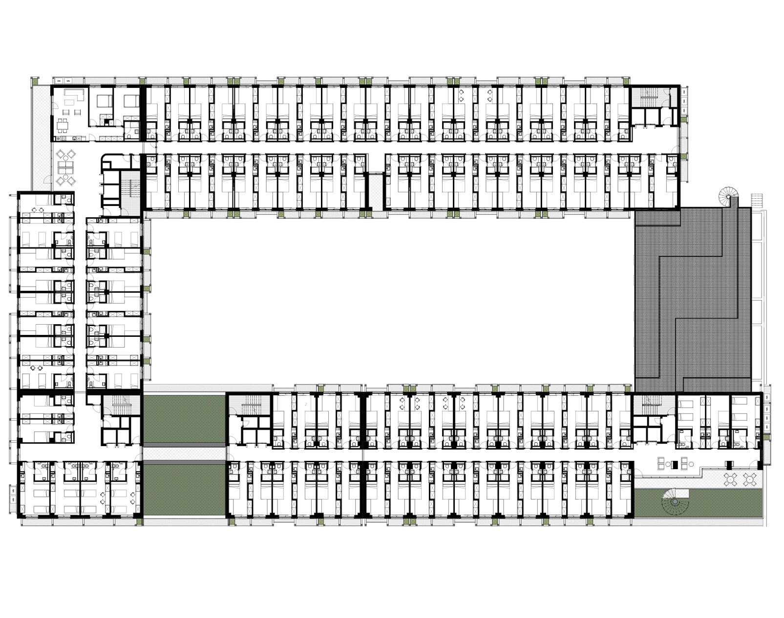
Căminul studențesc din Strada Preciziei nr. 10 prezintă o astfel de preocupare prin încercarea de a adapta partiul convențional al acestui program – care în cazul de față trebuie să găzduiască peste 1400 de camere – cu anvergura verosimilă a zonelor comune (de interacțiune între studenți) și a spațiilor pentru studiu, sport și divertisment.
Clădirea se conformează, așadar, mai întâi ca o incintă care se resimte în registul inferior al acesteia, la cota unei curți rectangulare, un parc deservit de spații comerciale sau dedicate recreerii (sală de fitness, ateliere, camere media sau de socializare).
Deasupra registrului de bază (parter+etaj), pe trei dintre laturile construcției se ridică volmetria generală supraterană a acesteia, oferind către Est două fațade zvelte, care dezvăluie atât consistența tronsoanelor, cât și spațialitatea incintei pe care o susțin.
Deși ating regimul de înălțime P+13, tronsoanele nu sunt indiferente față de spațiul central al curții, celularul dens și stivuit al camerelor fiind întrerupt pe alocuri de o serie de decupaje supradimensionate, care lucrează în sensul fragmentării și al reducției de scară a obiectului. Ele devin o compensație și pentru spațialitatea coridoarelor interioare, interacțiunea specifică zonelor de hol fiind potențată de aceste adevărate „grădini suspendate”, cu geometrii și dimensiuni diferite. Mai mult decât atât, succesiunea lor anunță, de fapt, un ultim spațiu comun aflat pe terasa clădrii. Acest al doilea „parc” revendică terenul ocupat de însăși amprenta construcției prin intermediul unor spații verzi care fie sunt bordate, fie sunt întrerupte de o pistă de alergări „măsurând” întreg perimetrul.
Căminul studențesc devine, astfel, structura unei grădini care pornește din interiorul unei incinte și se desfășoară pe verticală până la ultima placă accesibilă. Această imagine este amplificată și în elevații, încăperile din interior având, de asemenea, un corespondent „verde” la nivel de fațadă, o structură metalică secundară, un grid cu ochiuri inegale, din elemente verticale filiforme, plase perforate și cuve cu pământ pentru flori sau plantele cățărătoare.