
Comentariul autorului:
Prezentul proiect “ a luat nastere “ din dorinta beneficiarului de a-si extinde capacitatea de productie si depozitare intr-o hala industriala, existenta in Parcul Industrial Ploiesti, prin mutarea din cadrul unitatii industriale existente a partii administrative intr-o constructie noua alipita la constructia existenta.
Tema de proiectare a constat in extinderea constructiei existente cu un corp nou de cladire, alipit la cea existenta, cu posibilitate de trecere dintr-un corp in altul, in care sa fie adaugate diverse functiuni ce vor imbunatatii fluxul de functionare in cadrul unitatii de productie si depozitare prin separarea zonei administrative de cea in care se desfasoara productia si depozitarea.
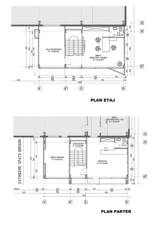
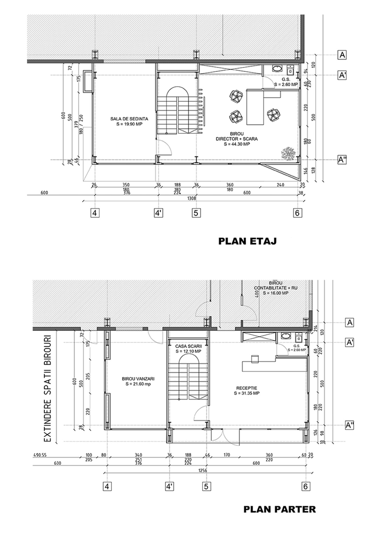
Astfel, prin tema de proiectare au fost solicitate adaugarea sau relocarea unor spatii precum: - Parter: Receptie cu grup sanitar in legatura directa la corpul de constructie existent.
- Casa scarii si birou vanzari, deasemenea in legatura cu hala industriala. - Etaj: Birou director cu grup sanitar propriu, casa scarii si sala sedinte.
Astfel, avand in vedere cerintele beneficiarului si domeniul in care acesta isi desfasoara activitatea (domeniul instalatiilor si corpurilor electrice), s-a optat pentru o structura in cadre metalice de forma rectangulara, atat in plan cat si in elevatii, urmand ca prin structuri metalice secundare si aplicarea finisajelor de tip “Alucobond“ sau “HPL“ sa se contureze o volumetrie de tip deconstructivist, contemporan .
Aplicarea finisajelor la diverse unghiuri neregulate atat in plan cat si in elevatii a avut drept scop trimiterea catre fenomenul natural ce a stat la baza conceptului arhitectural si anume fulgerul, care este in stransa legatura cu domeniul de activitate al companiei beneficiare.
Raportat la hala industriala existenta, s-a dorit ca noul corp de cladire sa fie mai inalt, in asa fel incat sa domine cladirea existenta si sa constituie punctul de interes al noului ansamblu propus. Cele doua cladiri se contopesc armonios, astfel cladirea propusa preia culoarea gri antracit a tablei cutate folosita la anvelopanta halei de productie, prin aplicarea unui finisaj din HPL gri atrancit, insa intr-o proportie destul de redusa.
Pentru ca diferenta intre cele doua functiuni (hala productie / depozitare si sediu administrative) sa isi faca simtita prezenta, la corpul adiminstrativ propus s-a optat pentru alegerea altor culori in ceea ce priveste finisajele cum ar fi tabla tip “Bond” de culoare alba si un cadru din HPL care imita lemnul si marcheaza accesul in cadrul sediului administrativ .