
Comentariul autorului:
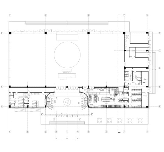
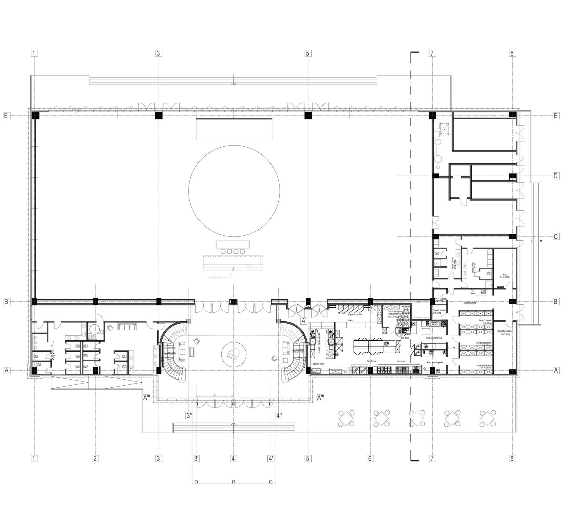
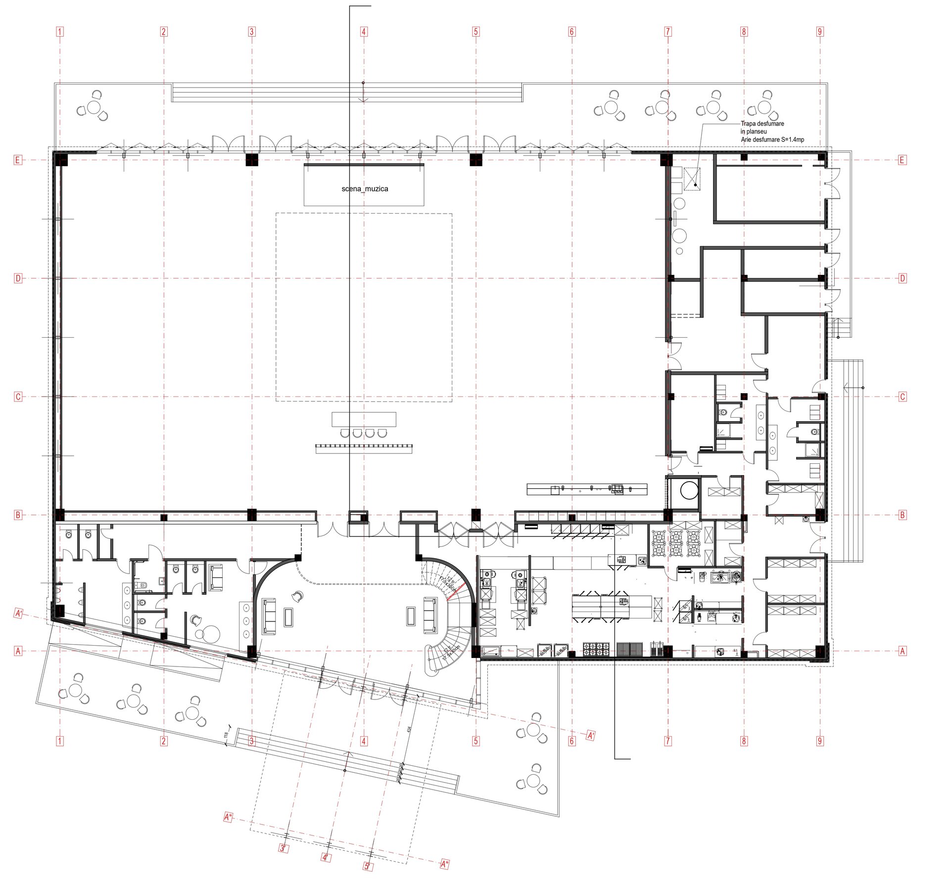
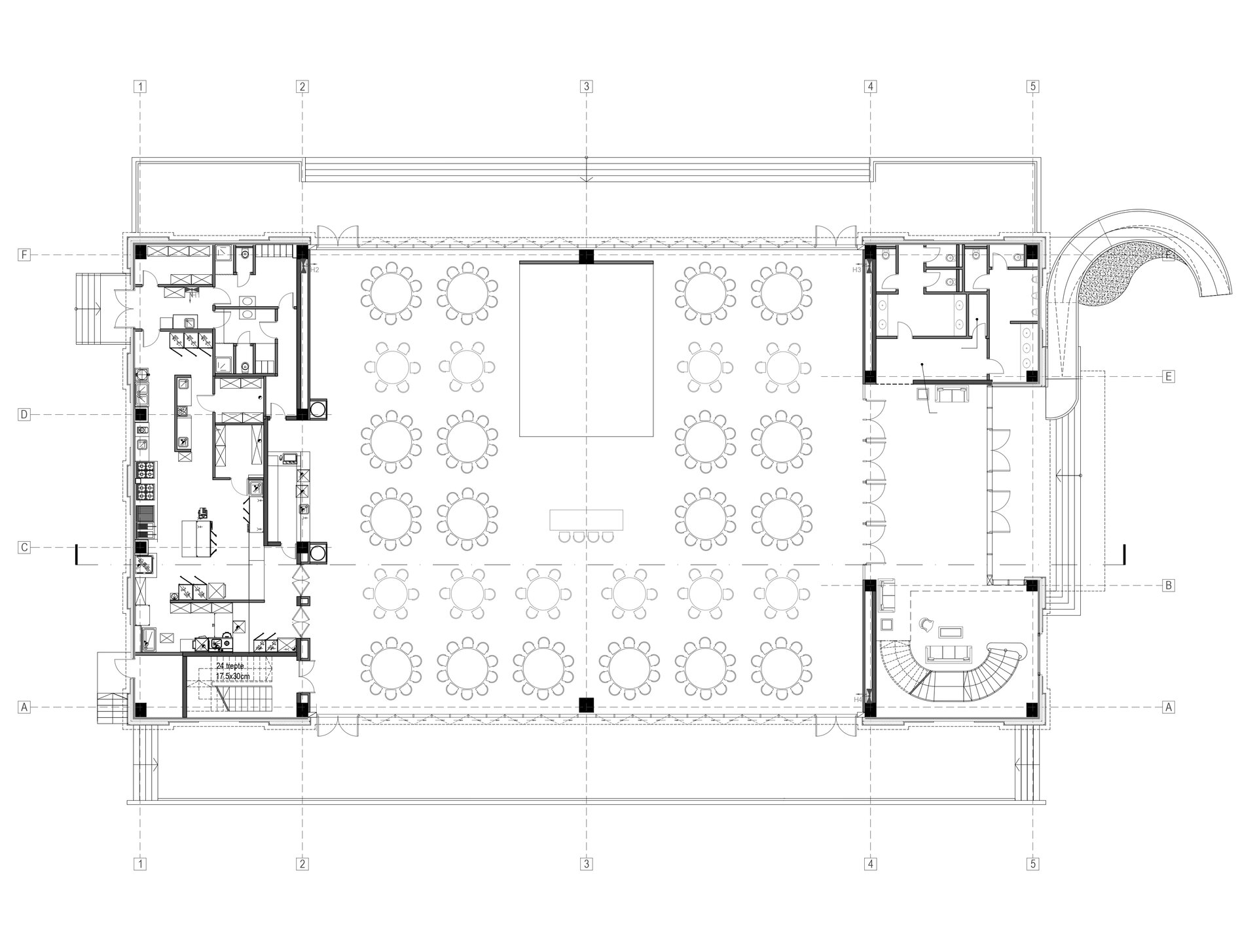
Conceptul Ramatuelle este un proiect care acoperă o suprafață de 80.000 m2 care include patru clădiri de saloane de evenimente cu zone diferite, din punct de vedere al structurii: exista stalpi si grinzi din beton armat si ferme metalice, iar pereții panouri sandwich. Proiectul include zone verzi enorme de 28 560 m2 cu 13 475 m2 lac artificial. Lacul este inconjurat de diferite cladiri. Sistematizarea conceptului Ramatuelle a fost proiectat și dezvoltat pentru a se potrivi cu piscina infinită a restaurantului de la un nivel de șapte metri deasupra celuilalt sediul. Fațadele care sunt orientate spre lacuri sunt smaltate cu o nota de modernitate unde reflectarea apusului ofera o poveste fascintanta pentru oaspeți și vizitatori.
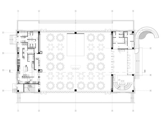
Fiecare salon are un ponton pentru a putea desfasura evenimente in aer liber pe timpul verii. Stilul arhitectural continuă și în interior și oferă clasicul, dar atmosfera curata si eleganta imediat ce intram zona holului. Ușile mari de lemn te invită a păși în sala de evenimente unde culoarea predominanta este albul deoarece pentru fiecare eveniment există diferite decorațiuni și teme, diferite flori si intentia a fost de a pune in evidenta aceste detalii care fac fiecare eveniment unic.