
Comentariul autorului:
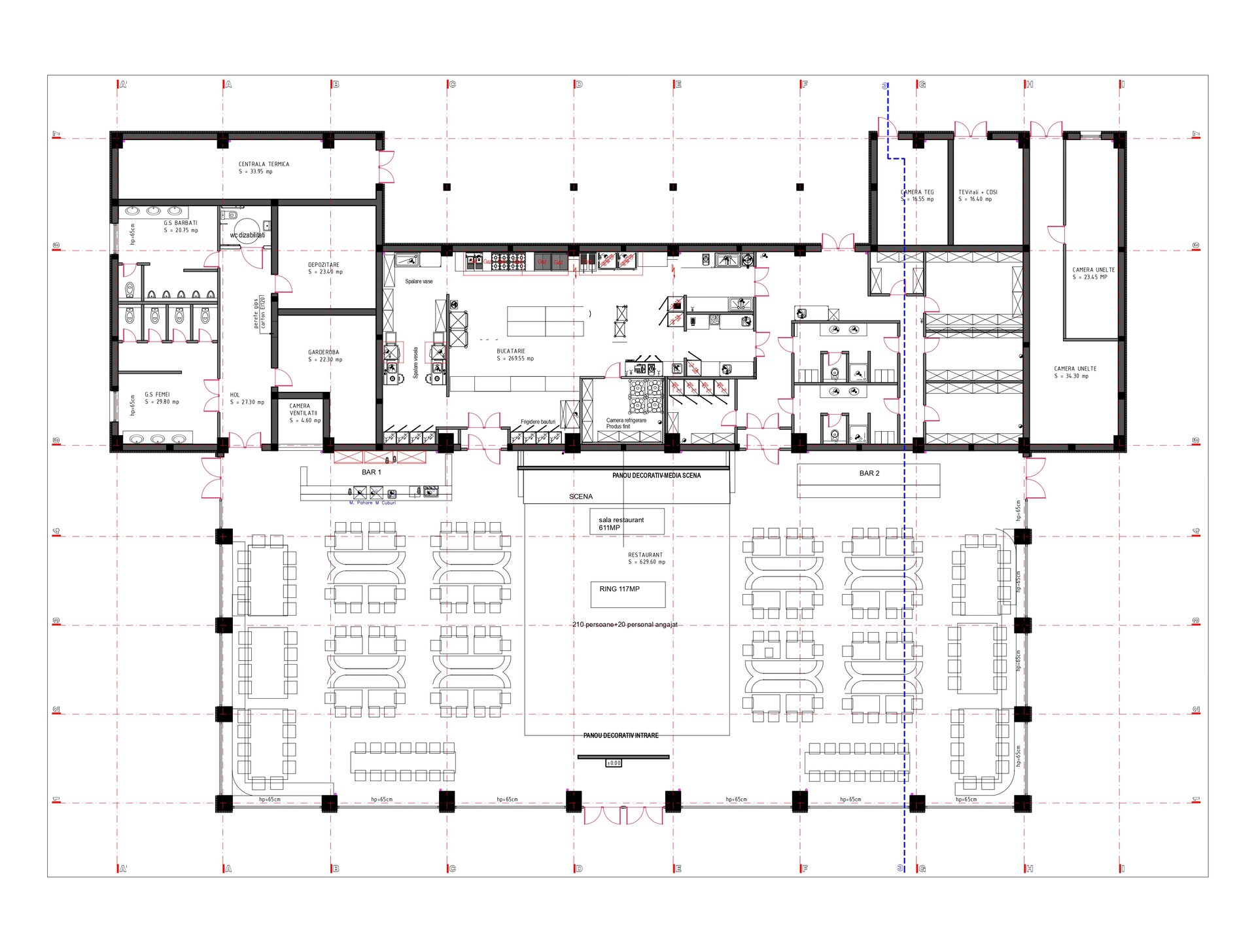
RESTAURANT
LEMNUL, MARMURA NATURALĂ ȘI CULOAREA VIBRANTE SUNT PRINCIPALELE ELEMENTE ALE DESIGNULUI.
FAȚADA GLATĂ AJISTĂ LA PĂSTRAREA CONTACTULUI VIZUAL DE LUNGĂ ÎNTRE INTERIOR ȘI EXTERIOR.
Restaurantul Granduelle este cea mai mica constructie din Ramatuelle concept. Designul interior al restaurantului este un design clasic cu tavan din lemn care încălzește locul cu naturalitatea lui și stilul fermecător. Podelele sunt din marmură pentru durabilitate. Marmura proiectată cu benzi alb-negru atrag ochii spre scenă. Peretele cornișat, avand un design cu o culoare albastră îndrăzneață, a conferit spațiului mai multă eleganță. Candelabrele aurii cu mesele clasice din lemn si scaunele proiectate au completat designul pentru o coeziune deplină și armonie între diferitele elemente de design. Trei dintre patru fațade sunt din sticlă și coloane clasice albastre, pe lângă rolul lor structural, au creat un ritm vertical cotelor interioare care continuau spre fatada exterioara. Luminile de accent sunt folosite pentru a crea o atmosfera unica, dar mai ales pentru scopuri decorative, iluminarea ambientală definește aspectul general și senzația de restaurant. Culorile închise evidențiază spațiul în combinație cu sursele de lumină. Fațadele de sticlă ajută pentru a menține contactul permanent între interior și exterior.