
Comentariul autorului:
Clădirea este amplasată într-o zonă rezidențială de suburbie și a fost gândită astfel încât să realizeze conexiunea urbanistică între parcelele cu locuințe individuale și o zonă cu locuințe colective. Spațiul comercial se află în comuna Baciu, una dintre localitățile satelit ale municipiului Cluj-Napoca, într-o zonă aflată în curs de dezvoltare începând din anul 2010, predominată de locuințe colective cu regim mediu de înălțime.
Această parte a localității s-a dezvoltat fără un masterplan conceput și gândit în profunzime, motiv pentru care funcțiunile complementare locuirii au lipsit aproape în totalitate. Prin extinderile recente au fost inserate dotări, fără care nu poate funcționa o zonă rezidențială: creșă, grădiniță, zone verzi publice, spații comerciale și alte servicii. Acesta este motivul pentru care parcela aflată la intersecția a două străzi a fost gândită pentru o clădire cu funcțiune de comerț.
Terenul pe care s-a realizat investiția este o parcelă de colț, cu frontul îngust spre strada principală, caracterizat topografic de o diferență de nivel accentuată, și latura lungă paralelă cu strada secundară. Fiind o parcelă aflată într-o zonă de tranziție între locuințele unifamiliale și cele colective, regimul maxim de înălțime permis a fost de două niveluri. De asemenea au fost respectate o serie de alte condiționări urbanistice solicitate din partea autorităților locale și județene, cum ar fi:
- lărgirea străzii secundare, reconfigurarea ei cu benzi de circulație de 3 metri lățime și amplasarea unui trotuar de minim 2 metri lățime;
- amplasarea unei zone de tip piațetă în fața clădirii pentru a putea găzdui ocazional o piață volantă cu producători locali sau care poate fi folosită si ca loc de întâlnire pentru locuitorii din zonă;
- amenajarea a cât mai puține locuri de parcare, minimul cerut de reglementările urbanistice, pentru a încuraja deplasarea pietonală sau nemotorizată.
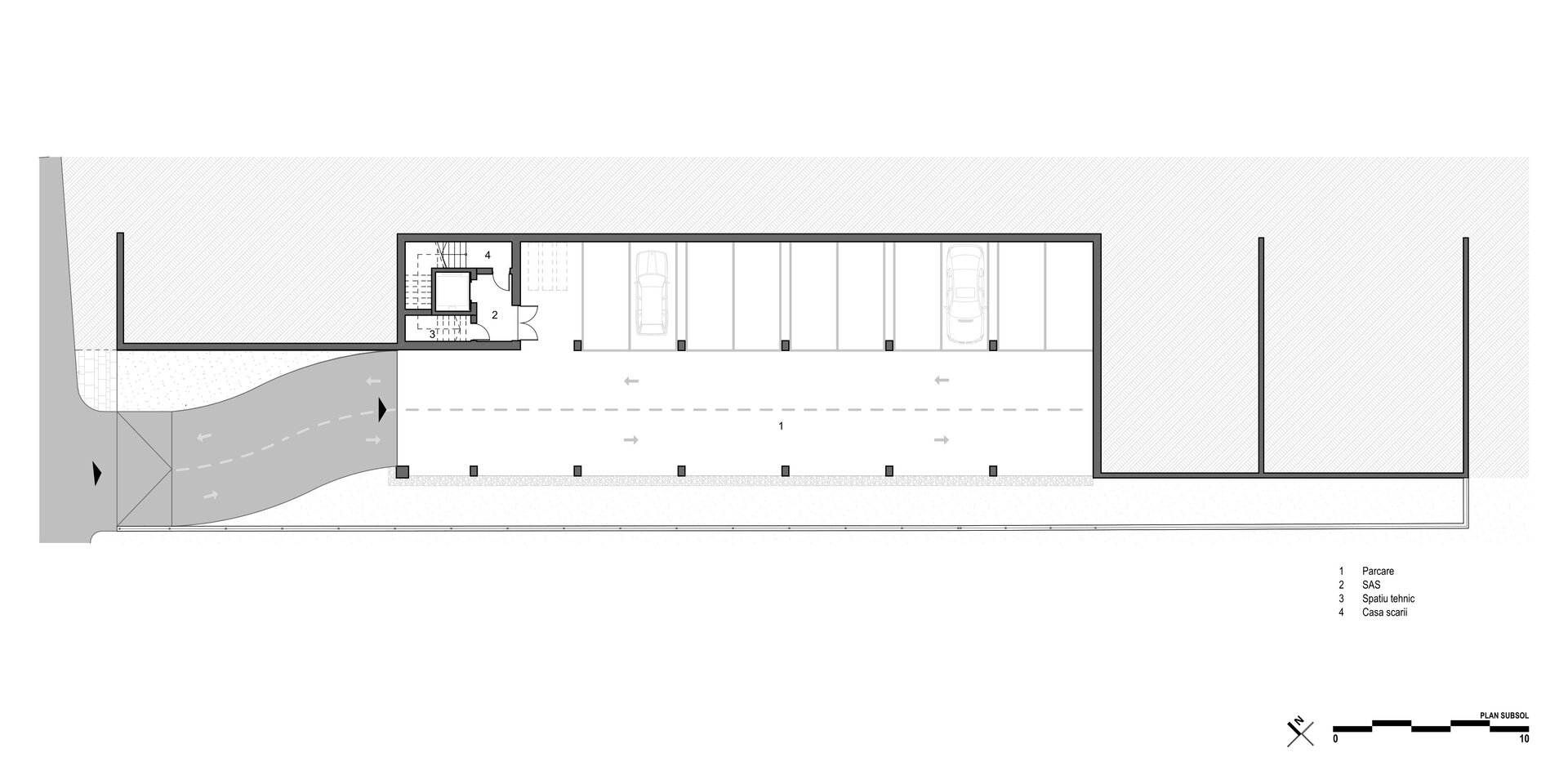
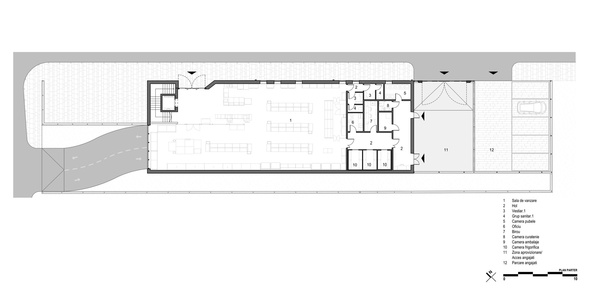
Din aceste considerente a rezultat o clădire cu o planimetrie simplă, un dreptunghi îngust și lung, care la nivelul inferior adăpostește locurile de parcare, iar la nivelul parterului spațiul comercial cu anexele aferente funcțiunii. Cele două niveluri sunt conectate printr-o scară interioară și un lift. Din punct de vedere volumetric s-a optat pentru un acoperiș șarpantă în trei ape, care se transformă într-o apă spre colț, marcând astfel atât intersecția între cele două străzi, cât și intrarea în clădire.
Structural, construcția este realizată pe cadre din beton armat la nivelul parcării, iar la nivelul parterului din cadre metalice pentru a permite un spațiu flexibil, fără stâlpi intermediari, oferind astfel un spațiu interior care se poate compartimenta în funcție de necesitățile utilizatorului. Închiderile au fost executate din zidărie de cărămidă cu un termosistem care oferă un confort energetic ridicat.
La nivelul finisajelor s-a lucrat majoritar cu cărămida aparentă, care reprezintă un material estetic și durabil în timp, compatibil atât cu funcțiunea clădirii cât și cu caracterul zonei rezidențiale. Complementar, tencuiala gri, protejată cu o copertină subtilă, marchează colțul impreună cu zona de intrare și oferă o suprafață unde magazinul poate amplasa firma luminoasă și logo-ul, elemente cerute și specifice industriei comerțului.
În ceea ce privește învelitoarea, a fost nevoie de o soluție potrivită pentru înclinații mici și variabile, cu greutate redusă, care să nu încarce suplimentar structura de rezistență. Astfel s-a optat pentru tabla dublu fălțuită de culoare gri închis mat, cu o textură ce contribuie la atenuarea reflexiei luminii și a razelor soarelui pentru a nu deranja optic apartamentele vecine situate pe partea opusă a străzii, în partea nordică a clădirii. Pe partea sudică, cerința a fost realizearea unei fațade opace, care să protejeze intimitatea caselor vecine. Astfel s-a realizat o fațadă fără goluri, pe care s-au aplicat doar niște dungi inspirate din grafica unui cod de bare, făcând o sugestie și în acest fel la funcțiunea adăpostită.
Diferența de nivel considerabilă de pe parcelă a impus utilizarea zidurilor de sprijin ca soluție abordată în amenajările exterioare. Acestea au fost realizate din beton armat aparent, integrându-se în gama cromatică a pavajul utilizat.
Interioarele au fost concepute de către echipa de proiectare în colaborare cu utilizatorul final și reprezintă spațiul standard folosit de societatea comercială care utilizează spațiul în momentul de față.