
Comentariul autorului:
Concursul Internațional de Arhitectură „Restaurarea Nymphaeumului – Colaj in Locus Amoenus”
Proiect finalist în cadrul competiției
Înrămarea pivirii. Readucerea la viața a locului nimfelor
Unele edificii suprapun straturi de istorie și memorie. Emană în jurul lor un halou, o aura misterioasă: un semnal ne spune că ceva extraordinar și unic este ascuns acolo.
Haloul Nymphaeumului din Genazzano (D. Bramante) și ecoul său simbolic, împreună cu particularitățile sitului -un teren înclinat cu o considerabilă diferență de nivel- sunt principalele particularități de la care am pornit în imaginarea conceptului pentru concursul „ReUse the Nymphaeum”.
Ceea ce este nou privește cu smerenie, respect și admirație către trecut. Dorința de a rămâne discret, sau chiar invizibl, a condus către o inserție ce a completat denivelarea existentă în teren.
Pentru a sublinia perspectivele principale, pentru a menține atenția către monument și pentru a crea, la nivel urban, o zona ușor accesibilă publicului din ambele străzi ce accesează situl, terenul a fost nivelat într-o pantă lină. Astfel, noua intervenție este „ascunsă” în subteran.
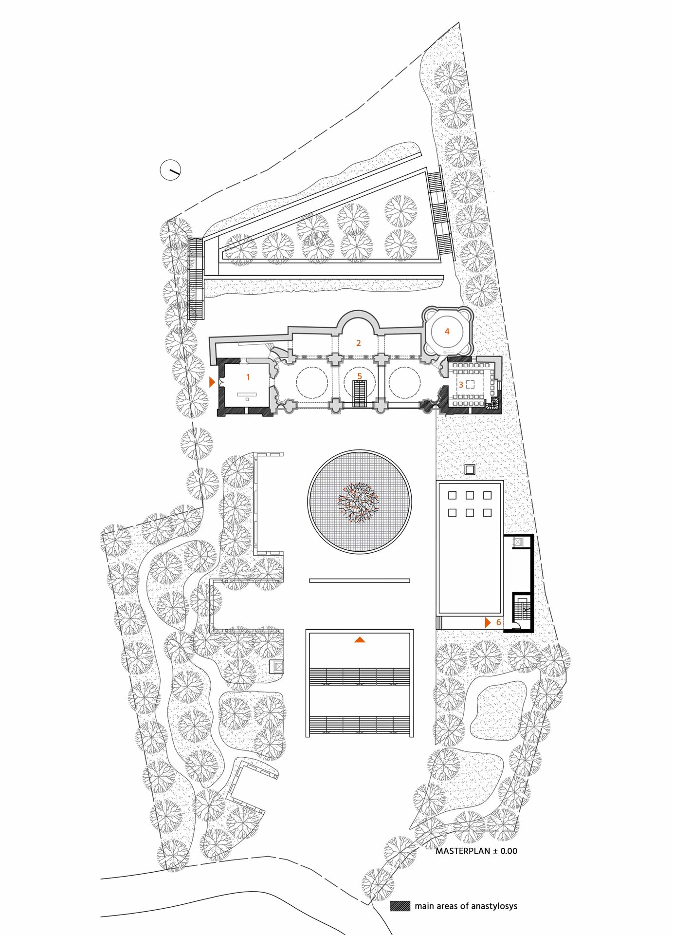
Proiectul este alcătuit din 3 elemente principale: consolidarea și reconstruirea siluetei ruinei, curtea circulară îngropată și teatrul subteran.
În interiorul Nymphaeumului întâlnim un spațiu multifunctional pentru expoziții și un spațiu pentru spectacole experimentale sau audiții. Acest sector al ansamblului funcționează, de asemenea, ca un filtru pe care îl traversăm înainte de accesul în sala principală de spectacole. Fie că îl traversăm sau îl privim în perspectivă ascendentă din curtea scufundată, suntem captivați sub influența acestuia.
Scopul intervenției nu este acela de a nega trecutul, nici de a-l înfrumuseța. De aceea, reîntregirea siluetei ruinei se rezumă la o volumetrie simplă, menținând atenția asupra țesutului vechi. Se păstrează întregul material original al ruinei, prin anastiloza și prin rețeserea zidurilor, acolo unde este posibil.
Materialul noii intervenții este unul contemporan: beton pigmentat într-o nuanță portocalie. Betonul nu este finisat cu tencuială, ci poartă amprenta lemnului cofrajului. Astfel, tehnica si procesul de construire devin în sine exponat, noul funcționând ca o continuare sinceră a trecutului.
Curtea săpată are rolul de spațiu de distribuție dar și de liant, asigurând fluiditatea între Nymphaeum și teatrul ascuns în subteran. Polarizează spațiile ansamblului, totul în timp ce menține perspectiva principală asupra monumentului. Curtea este „locuită” și de un alt personaj: un portocal, simbol al frumuseții și vieții, atribute ale nimfelor. Curtea săpată este totodată și o referință la preocparea lui Bramante pentru spațiile centrale și pentru „înrămarea” perspectivelor folosind instrumente arhitecturale.
Amenajarea peisagistică a parcului este un alt element cheie ce susține conceptul. Spațiile verzi direcționează perspectivele spre și dinspre Nymphaeum, echilibrand compoziția simetrică și monumentală cu zone organice și colțișoare intime, invadate de vegetație.
Așa cum edificiile și ansamblurile antice aveau zei sau zeițe protectoare, clădirea Nimphaeumului, cu silueta reîntregită, întărește spiritul locului, supraveghează și protejează zona.