
Comentariul autorului:
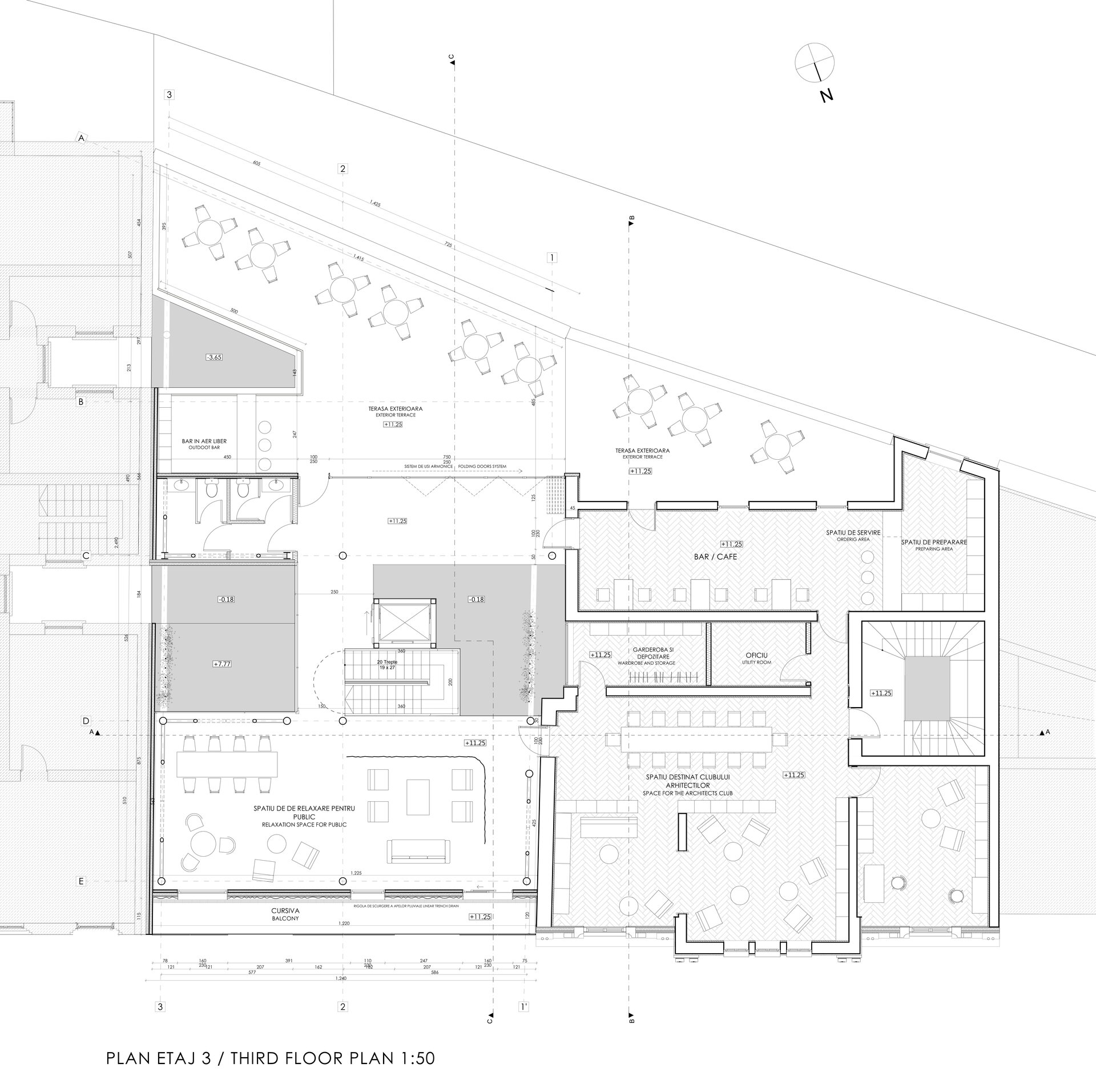
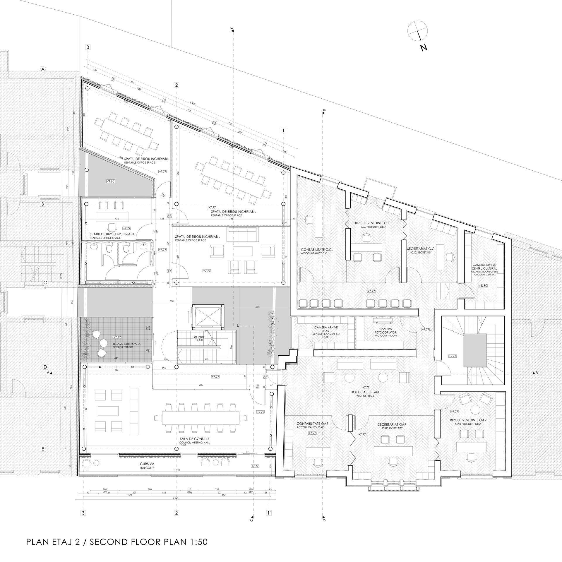
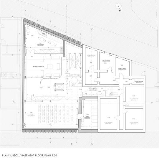
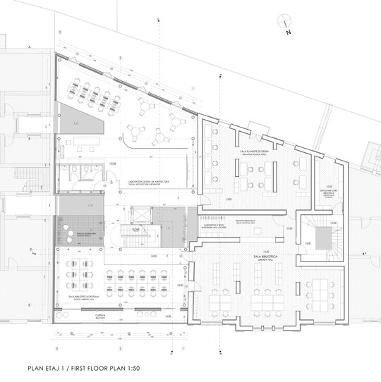
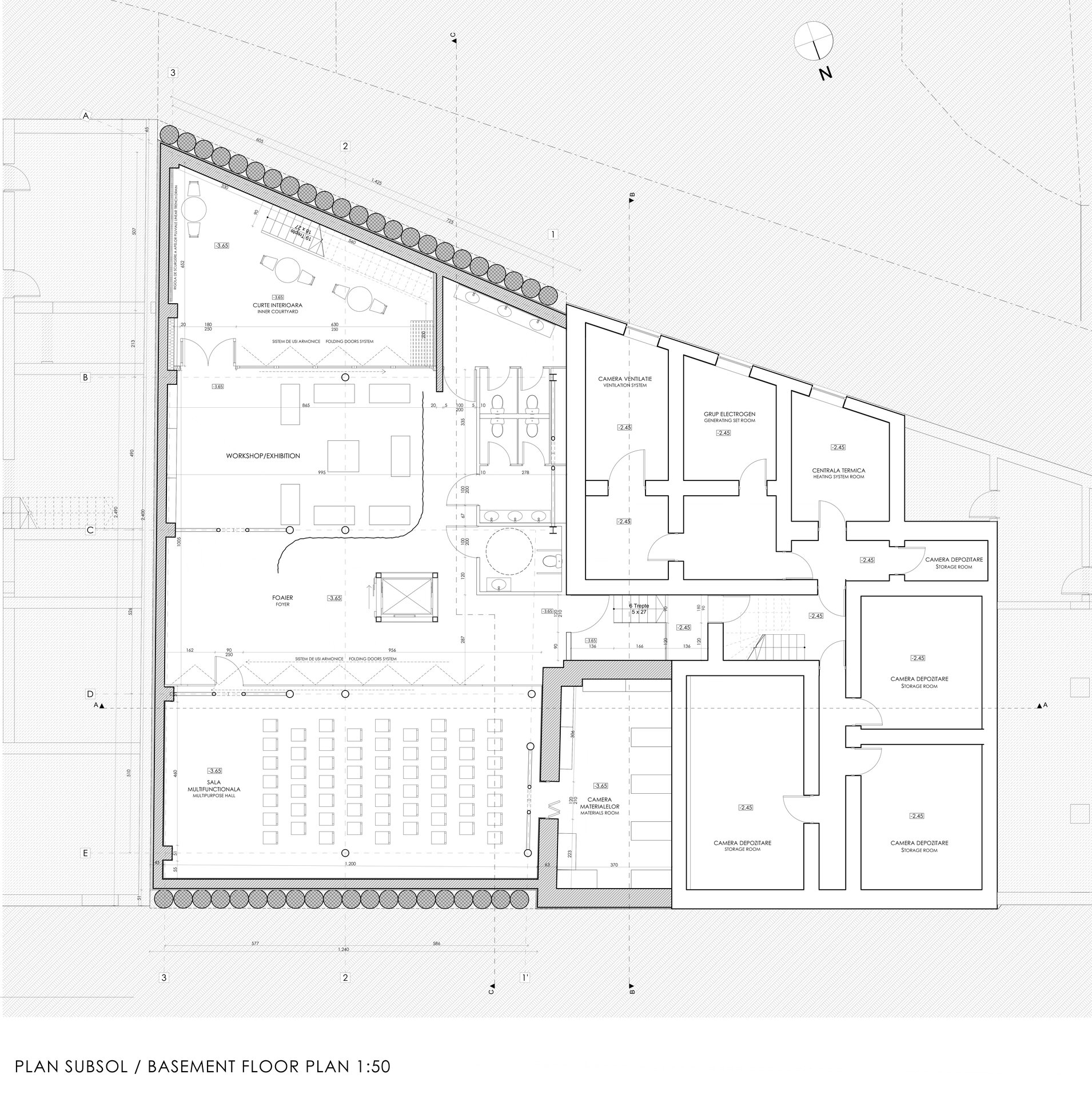
Proiectul are în centru Casa Grigorescu, o vilă istorică situată în zona peninsulară a orașului Constanța, ce se doreste a devini un centru de arhitectură, care să adune impreună arhitecții și oamenii din afara profesiei, găzduind în același timp și noul sediu OAR. Pentru a face loc noilor funcțiuni din cadrul centrului, se propune extinderea clădirii cu o structură nouă sub forma unei inserții în țesutul urban, de tip "plombă", prin care desfășurarea activităților se realizează prin comunicarea directă a celor două clădiri.
Conceptul proiectului poate fi definit prin termenul "lightness" care sugerează utilizarea unei structuri ușoare, folosind (acolo unde este posibil) doar metalul și sticla la nivelul intervenției noi și utilizarea curților și a golurilor pentru a crea spații semi-deschise ce mențin o relație puternică cu exteriorul și permit cât mai multă lumină să pătrundă în spațiile interioare.
Fațada clădirii noi creează un dialog cu clădirea existentă: ondulațiile armonice reprezintă o referință a ornamentelor de tip art nouveau de la nivelul fațadei casei existente, se retrage față de stradă, accentuând elementul volumului central al casei existente aflat în consolă. În același timp, un ecran de sticlă preia aliniamentul străzii și continuă direcțiile și registrele casei existente, prin intermediul unor panouri perforate din mesh metalic și ferestre pivotante.
Spațiul interior al casei existente este remodelat pentru a face loc noii funcțiuni. Pereții care separă camerele de hol sunt înlocuiți cu un mobilier "transparent" ce îndeplinește rolul de compartimentare a spațiului, permițând totodată luminarea și deschiderea spațiului.