
Comentariul autorului:
Dezvoltarea într-un ritm alert a tehnologiei și a industrializării au atras, în mod indirect, înstrăinarea omului modern de procesul producției agricole. De aceea, prin intermediul proiectului propun crearea unui nou pol de interes pentru viața urbană, cel al agriculturii. Proiectul pornește de la conceptul de a aduce împreună mediul agricol și cel urban pentru a da naștere unei comunități sustenabile interesată de produsele alimentare pe care le consumă zilnic. Astfel, în cadrul proiectului am propus trei zone funcționale mari: cel al educației, al cercetării și funcțiunile publice.
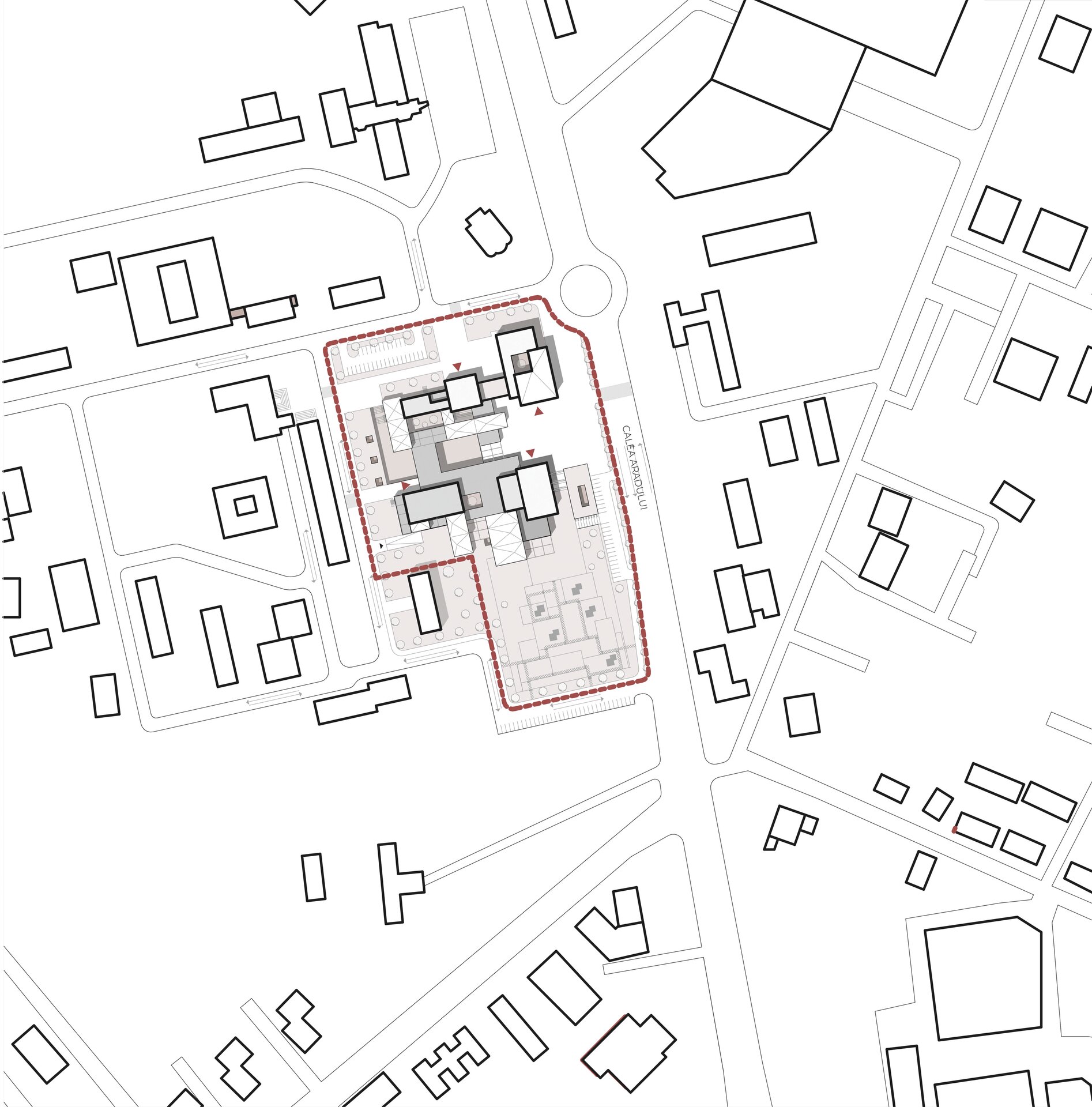
Amplasamentul pe care se dezvoltă hub-ul se află pe Calea Aradului, la periferia orașului Timișoara, în proximitatea Universității de Științe agricole a Banatului.
Conceptul care stă la baza proiectului este de a aduce împreună partea minerală care reprezintă partea solidă a proiectului, partea de seră care prin transparența unifică toate cele trei zone volumetrice și funcționale, dar și partea de grădină reprezentată de parc și de parcelele agricole de tip ,,potageries” care reprezintă o extensie a spațiului construit. Astfel, proiectul urmărește dezvoltarea unei succesiuni de curți situate la diferite niveluri care au un grad mai mare sau mai redus de accesibilitate în ceea ce privește publicul larg.
Având în vedere înălțimea mare a clădirilor de pe latura de vest, clădirea propusă este retrasă considerabil față de limita terenului. Amplasamentul beneficiază de o vizibilitate bună, aceasta putând fi observat de pe Calea Aradului, dar și de pe străzile secundare din partea de nord și vest, de acea accentul de înălțime, de regim P+3, este poziționat în partea de nord, în apropiere de intersecție, fiind în același timp retras de limita nordică pentru a nu obstrucționa vizibilitatea către biserica Sf. Ierarh Nicolae. Ca urmare a a specificului temei ci si specificului zonei un parc care se împletește cu parcele agricole, dar care funcționează și ca o delimitare între zona rezidențială în curs de dezvoltare din partea de sud a sitului.
Spațiul construit este împletit cu parcele agricole de tip ,,potageries” care creează suprafețe continue în vederea conectării oamenilor cu agricultura pentru a favoriza relația dintre om-natură, dar și cea socială. Zona publică fiind separată de cea de educație și de cercetare prin intermediul unei curți scufundate, la nivelul -1.
În ceea ce privește accesibilitatea fiecare dintre cele trei zone beneficiază de un acces separat pentru a evita intersectarea fluxurilor public-privat. Accesul subteran se realizează pe latura vestică, acesta fiind utilizat îndeosebi pentru aprovizionare și de către cercetători, publicul larg având posibilitatea de a parca suprateran pe latura de nord și de est.
Astfel, zona care se află în legătură cu strada principală este destinată publicului, unde este creată o piațetă din care se realizează accesul în zona de seră urbană care se dezvoltă începând cu nivelul 1 până la nivelul 3, cea expozițională care se dezvoltă la subsol în jurul unei curți, spațiile pentru ateliere, sala polivalentă care, ocazional, se poate extinde și către exterior. De asemenea, din această piațetă se realizează accesul și în volumul pentru spațiile comerciale, în zona de vânzare a băncii de semințe, dar și în volumul destinat zonei de conferință care are un regim de P+2. Piațeta se extinde prin intermediul unor gradene și la nivelul -1, unde se află o ceainărie și librărie, dar și restaurantul, care are integrată o parte de bucătărie deschisă unde publicul poate observa cum este preparată mâncarea, dar și serele . Sera urbană publică reprezintă un semnal vizual care anunță funcțiunea are o structura specială, deoarece este în consolă, de aceea structura acesteia este realizată din ferme metalice dispuse după două direcții.
Pentru a delimita zona publică de cea a cercetării și educației am propus o curte scufundată în jurul căruia se dezvoltă funcțiuni destinate cercetătorilor și studenților, precum birouri, o cafenea pentru studenți și spații de co-working, dar și zona de depozitare pentru banca de semințe care nu poate fi accesată de către public.
În ceea ce privește accesul în zona de educație, acesta se realizează din piațeta creată în legătură cu accesul Universității de Științe Agricole, aceasta fiind legată de curtea de la nivelul -1 cu ajutorul unor de gradene dispuse la capetele volumul de educație în interiorul căruia sunt integrate o curte la nivelul 0 și două sere, una în legătură cu solul și una amplasată la nivelul 1, aceasta putând fi observată și din piațeta publică. La nivelul subsolului am propus o serie de săli de proiecție, dar și vestiarele pentru studenți și o cafenea, iar la nivelurile superioare se dezvoltă sălile de curs și zona pentru profesori, dispusă în legătură cu atelierele de workshop pentru public.
Volumul în care se dezvoltă zona de cercetare este poziționat în partea de sud-vest a sitului și are un regim maxim de înălțime de P+1, în care am propus spațiile de birouri, laboratoarele și serele destinate cercetării. Accesul în acest volum se realizează separat, printr-o zonă controlată din care utilizatorii se pot distribui fie în zona de studiu care asigură și legătura cu partea de educație, fie în zona de cafenea sau în zona de vestiare filtru prin care cercetătorii trebuie să treacă înainte de a ajunge în zona de laboratoare sau de seră. Volumul pentru cercetare integrează o curte la nivelul -1, dar și trei sere destinate cercetării, una dintre acestea fiind în legătură cu restaurantul pentru ca publicul să observe plantele, dar fără a avea posibilitatea de a o accesa. În legătură cu cercetarea se află zona de conferințe, unde, la nivelul 0, se găsește o zonă de expoziție și un snack-bar, iar la nivelul 1 foyerul și sălile de conferință.
Pentru a susține caracterul ecologic am propus ca în cadrul proiectului să fie folosite atât panouri solare, cât și sisteme de colectare a apei pluviale pentru a fi folosită în cadrul serelor. De aceea la nivelul subsolului se află o serie de spații tehnice, precum rezervor de apă pluvială sau spații pentru bateriile panourilor fotovoltaice.