
Comentariul autorului:
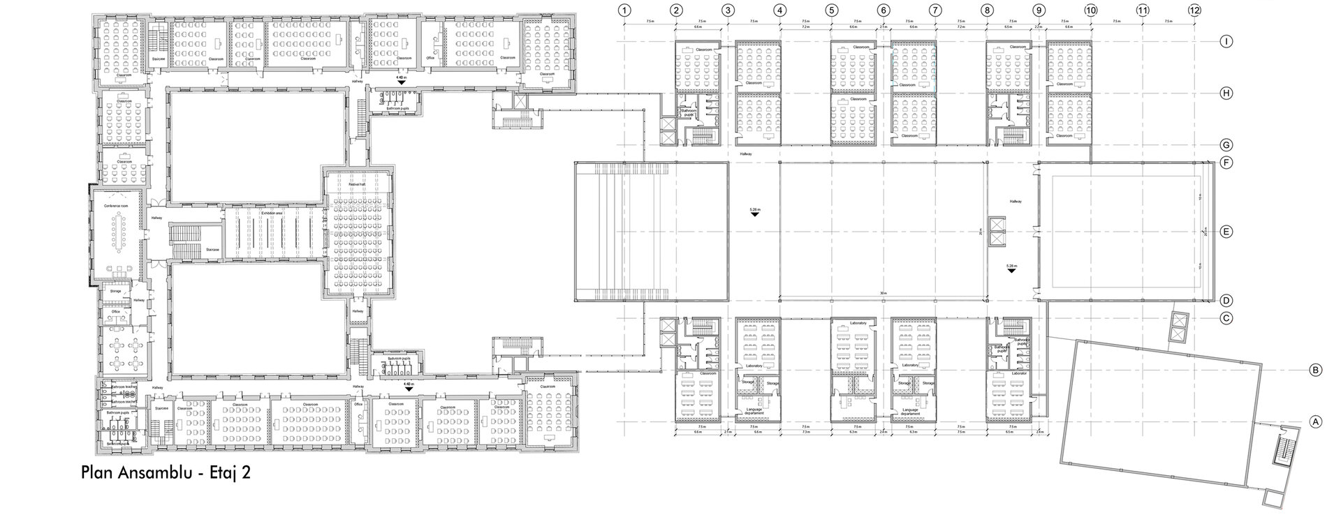
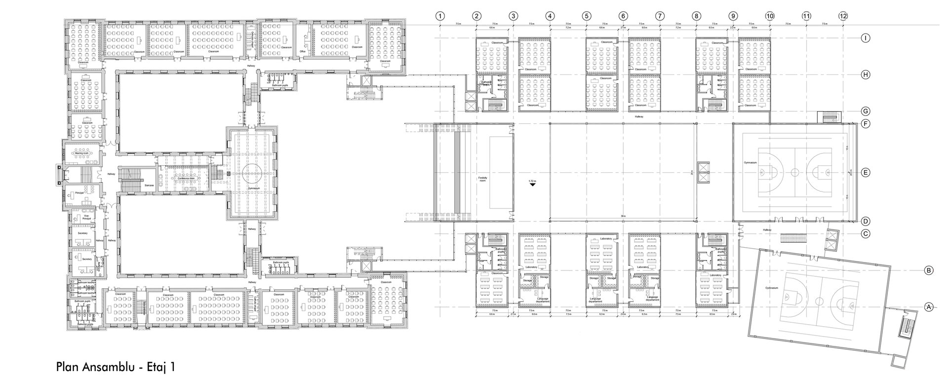
Un proiect de concurs născut din pasiune și dăruire care nu a ajuns la timp și nu a fost împărtășit cu posibilii beneficiari. Proiectul și-a propus o ilustrare a modului în care conformarea spațială, abordarea „smart design”, eficientizarea energetică pot contribui la îmbunătățirea ofertei educaționale. Astfel, am considerat școala un loc formator cu un puternic rol antropologic în modelarea personalității copilului prin calitatea spațiului și a relațiilor emoționale de bunăstare, satisfacție și de bucurie ce sunt generate de acesta. Proiectul utilizează paralelismul între multiple concepte spațiale și reacții psiho-emoționale generate de acestea: - simetrie/ axa/ direcționarea creșterii/ forța ansamblului - ritm/ creșterea ordinii și logii percepției funcționale - modulare/ lizibilitate scalară - spațiul central/ atrium - creșterea adunării și a apartenentei comunitare - relație vechi/ nou, simplificarea relației intergeneraționale Proiectul si-a propus sa creeze un spațiu axat pe nevoile elevului pentru a crea un mediu educațional performant și prietenos, prin percepția spațială transparentă, generând relații vizuale directe între funcțiuni dar și între acestea și mediul natural. Orientarea în jurul curții centrale, accesibilitatea din diferite direcții, lizibilitatea organizării funcționale, sunt elemente ce suplimentează această focusare pe elev, și care îi înlesnește parcursul prin spațiul academic. Accentul se pune pe culori, pe lumină, pe natură, și pe transparență, având în vedere caracterul durabil al ansamblului. Integrarea în spațiul urban se realizează prin evidențierea rolului centralizator al zonei din apropierea acestui spațiu interstițial, prin transparentă și linii vizuale ce conduc spre interiorul ansamblului, în complet contrast cu clădirea istorică. Asigurarea unei continuități funcționale a spațiului, prin axialitatea existentă, si prin accesibilitatea zonei pietonale. Restaurarea și reconfigurarea clădirii existente aduc lotul în inima zonei, modernizând spațiul urban ca răspuns la nevoile și cerințele actuale atât în domeniu educațional, cât și al sustenabilității spațiale.