
Comentariul autorului:
Conacul, un monument important al arhitecturii nobiliare din sec XVIII din Bazinului Ciucului, a fost construit în anul 1713. Acesta face parte din "Ansamblu monument istoric cod L.M.I. 2010 HR-II-a-A-12973" compus din clădirea conacului familiei Henter cod L.M.I. 2010 HR-ll-m-A-12973.01, şi poarta cod L.M.I. 2010 HR-ll-m-B-12973.02. Poarta nu face parte din acest proiect.
Clădirea are o planimetrie dreptunghiulară, în axul fațadei centrale având un foișor cu arcade sprijinite pe coloane de piatră sculptate. Coloanele sculptate au o decorație florală de factură renascentist-târzie tipic pentru conacele nobiliare din a doua jumătate a sec XVII din zona Secuimii. Familia nobiliară Henter a fost împroprietărită în Bazinul Ciucului la începutul sec XVIII. Conacul nobiliar început în anul 1713, a fost terminat în decursul sec XVIII. În perioada interbelică clădirea ajunge prin cumpărare în posesia bisericii romano-catolice care amenajează în ea școală primară confesională și casă de cultură. După instaurarea comunismului clădirea este naționalizată intrând în posesia statului român. Releveele din anii 1970-80 prezintă o clădire părăsită, cu deteriorări însemnate. În anul 1990 revine în posesia bisericii romano-catolice, și intră în administrarea unei firme private. Proiectul de restaurare din 1997 a prevăzut realizarea unei pivnițe noi în zona nord-estică, care s-a și realizat cu pereți și planșee din beton armat. Cu aceea ocazie s-au distrus zidurile originale din aceea zonă. Acoperișul deteriorat s-a desfăcut. Procesul de restaurare nu s-a finalizat, clădirea a stat timp de 20 ani în stare de ruină. În anul 2011 clădirea intră în posesia comunei Sântimbru, care a inițiat proiectarea restaurării.
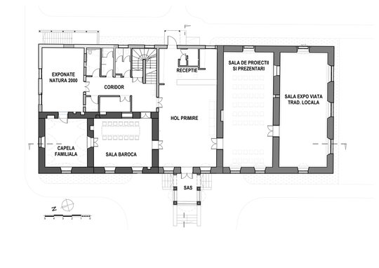
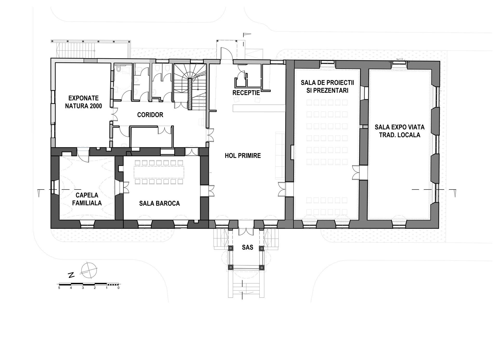
Din punct de vedere tipologic, conacul Henter se încadrează în conacele nobiliare din Ținutul Secuiesc, din zona Ciucului și a Covasnei. Clădirea cu plan dreptunghiular și-a primit înfățișarea actuală prin intervenția din 1801. Acesta este data construcției pridvorului central cu arcade, și se observă pe timpanul cu decorații stucate a foișorului. Clădirea avea o șarpantă barocă.
Materialul de construcție al conacului este mixt: corpul clădirii este construit din piatră spartă de carieră, în jurul golurilor și la pridvorului cu arcade s-a utilizat cărămidă. Pietre sculptate sunt la pridvor: coloanele sculptate din piatră sunt elemente de factură renascentist-tardivă, refolosite la construcția foișorului baroc din 1801.
Singura zonă cu tencuială de epocă păstrată până în 2018 a fost suprafața pridvorului central cu arcade. Pe timpanul acestuia se observă blazonul famliei Henter realizat în stuc, încadrat într-un chenar oval. Linia timpanului este evidențiată de două linii decorative din stuc.
Învelitoarea conacului a fost șindrila. Acesta a cauzat cele mai mari deteriorări, deoarece nu s-a întreținut zeci de ani.
La baza proiectului de restaurare au stat releveele anterioare, imagini de arhivă, intenția proprietarului de a realiza un centru de educație axată pe ecologie (mlaștinile din depresiunea Ciucului) și tradiții populare, cât și unele analogii.
Intenția proiectanților a fost să realizeze o clădire care va rezista în timp, fapt care a dus la schimbarea șindrilei care a generat în timp problemele majore, cu șiglă solzi.
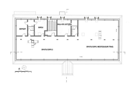
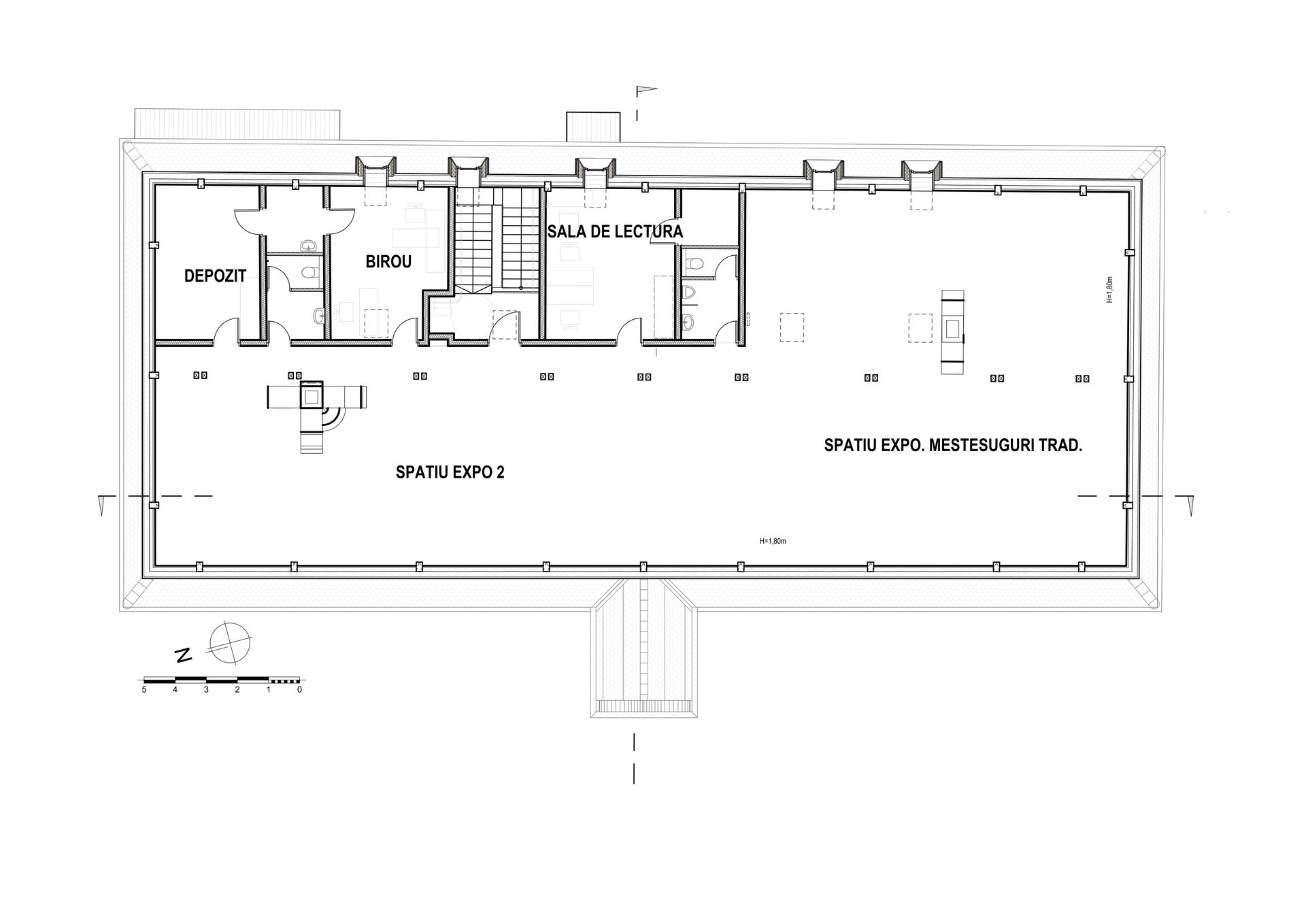
Șarpanta barocă-eclectică, cât și unele planșee peste parter au fost astfel reconstruite sau reproiectate încât în spațiul mansardei să se creeze o sală mare pentru activități educative diverse. Volumetria propusă a șarpantei urmărește îndeaproape releveul realizat în 1984 de Muzeul județean Miercurea Ciuc. Soluția structurală se bazează pe analogii de structuri baroce (de exemplu: castelul Teleki din Satulung, sau palatul Bánffy din Cluj-Napoca) în care descărcarea șarpantei se realizează prin sisteme de tensionare dispuse în fermele principale, cu arbaletrieri alipiți de planul inferior ale căpriorilor.
Scenariul funcțional cuprinde integrarea culturii tradiționale locale unui centru de prezentare și studiu al materialelor și tehnicilor tradiționale de construire, respectiv al soluțiilor durabile și eficiente energetic în reabilitare și restaurare.
Tavanele boltite au fost reconstituite după releveele mai vechi și după amprentele lor pe pereți.
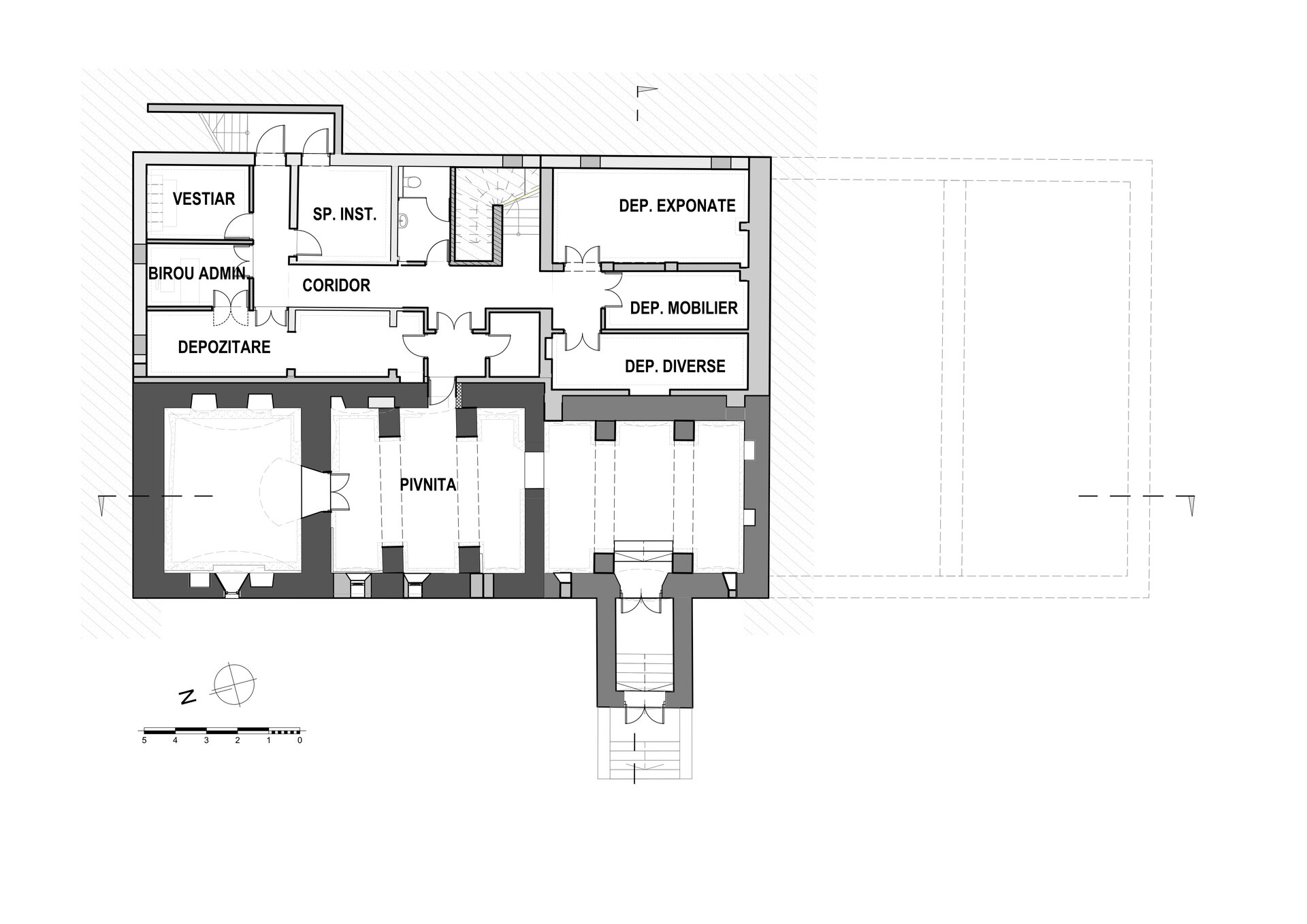
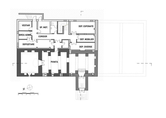
Prin restaurea conacului s-au pus în evidență porticul decorat din 1801. S-a restaurat și parțial reconstituit primului nucleu al clădirii, cea din nord-vest cu pereții de piatră, ușă cu zăvor original din lemn, nișă cu polițe originale, pivnița boltită. Zona sudică cu încăperi mari datând de la sfârșitul sec. XVIII s-a restaurat pe baza datelor avute la dispoziție. Hornurile au fost desfăcute parial pânî sub învelitoare, deoarece unele sprijini s-au distrus prin intenția de restaurare din 1997, iar consolidarea ei ar fi însemnat intervenții care ar fi diminuat semnificativ originalitatea ei. Astfel s-a putut păstra în stare inițală, și prezentată atât la parter, cât mai ales la mansardă. Intervențiile nepotrivite de la nord-est s-au păstrat parțial, deoarece au fost potrivite penru spații anexe, scară, spații tehnice.
Izolarea clădirii s-a realizat astfel: la perter din interior cu plăci silicat, la mansardă cu vată bazaltică, la subsol deloc. Sub pardoseli există izolație termică, cât și fâșii de pietriș jur împrejur la pereți pentru eliminarea igrasiei.
Încălzirea termică se face prin sistem capilar montat în pardoseală. Agentul termic se obține de la centrala termică află la distanță, în curtea școlii din apropiere.
Mansarda cu șarpantă din lemn, cu funcțiuni multiple, s-a realizat conform cerințelor actuale de siguranță la foc, cu soluții de supradimensionare, tratare lemn, piese metalice ascunse la planșeu și altele, fără a face apel la derogări față de normative pe motiv de monument storic categoria A.
Curtea conacului s-a amenajat cu propuneri minime: împrejmuire din lemn, accese și alei cu pietriș. Copacii au fost toaletați, și s-au planta unele noi. S-a găsit fântna originală din sud-vest care s-a reconstituit după exemple din zonă.