
Comentariul autorului:
În perioada medievală timpurie, localitatea Babadag a făcut parte, asemenea întregii regiuni a Dobrogei, din Imperiul Bizantin. Începând cu 1484, când Dobrogea intră în componența Imperiului Otoman, Babadagul devine un important centru comercial. Perioada de apogeu a orașului corespunde secolului al XVII-lea, când așezarea capătă și un rol militar, diplomatic și politic important. În perioada 1677-1678, reședința pașei se mută de la Silistra la Babadag. Declinul orașului Babadag începe din anul 1771, când, în contextul războiului ruso-turc din perioada 1768-1774, au loc distrugeri însemnate. Cu toate acestea, orașul continuă să funcționeze ca un punct militar până în 1878, anul alipirii Dobrogei la Regatul României.
Nucleul orașului Babadag este reprezentat de Geamia Gazi Ali Pașa și clădirile din jurul acesteia, printre care se numără și Casa Panaghia.
Construită în 1837, Casa „Panaghia” este în spiritul arhitecturii otomane dobrogene care preia la rândul ei elementele principale ale arhitecturii întâlnite în tot bazinul mediteranean, unele detalii precum tavanul cu gobek în marchetărie din lemn cunoscând o răspândire generală în zona balcano-anatoliană. Se află în vecinătatea geamiei Ali-Gazi Pașa, cel mai important monument de arhitectură al orașului, funcționând cel mai probabil împreună în perioada în care la Casa Panaghia funcționa seminarul musulman.
Denumirea de „Panaghia” este grecească și înseamnă Sfânta Fecioară Maria. Aici a funcționat seminarul musulman între anii 1837-1901.
În anul 1903, Nicolae Iorga a găsit în Babadag „clădirea goală cu ferestrele astupate a fostului seminar care se înconjoară de taina tristă„ - semn că în acea perioadă casa era abandonată.
După această relatare, deci din primul deceniu al sec. XX, aici a funcționat și grădinița de copii până în perioada postbelică. Din 1973, clădirea a găzduit un muzeu de artă orientală. Având acest specific, muzeul oferea vizitatorului piese care reflectau modul de viață tradițional al populației musulmane - din acest ținut (cum sunt unele vase de uz din aramă sau țesăturile decorative) sau din zone îndepărtate (covoare orientale, șaluri de cașmir etc). Unele exponate aveau specific musulman (covorul de rugăciune, vasul de spălat ritualic), altele aparțineau diferitelor populații dobrogene, având chiar circulație balcanică (vase de uz gospodăresc, arme, podoabe, țesături decorative). De câțiva ani muzeul este închis publicului din cauza degradărilor constructive ce pun in pericol utilizatorii. În anul 2003, s-au construit, în curtea Casei Panaghia, un grup sanitar și un spațiu de depozitare a materialelor necesare desfășurării activităților de întreținere a clădirii și s-au racordat construcțiile la rețelele publice de apă și energie electrică existente în zonă.
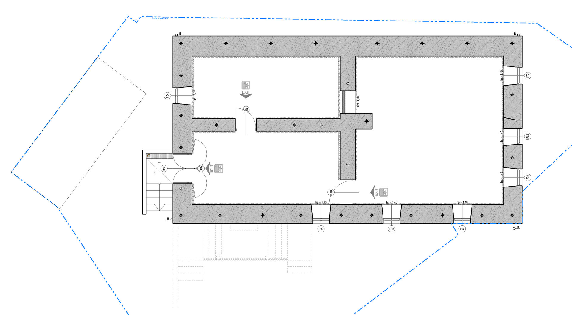
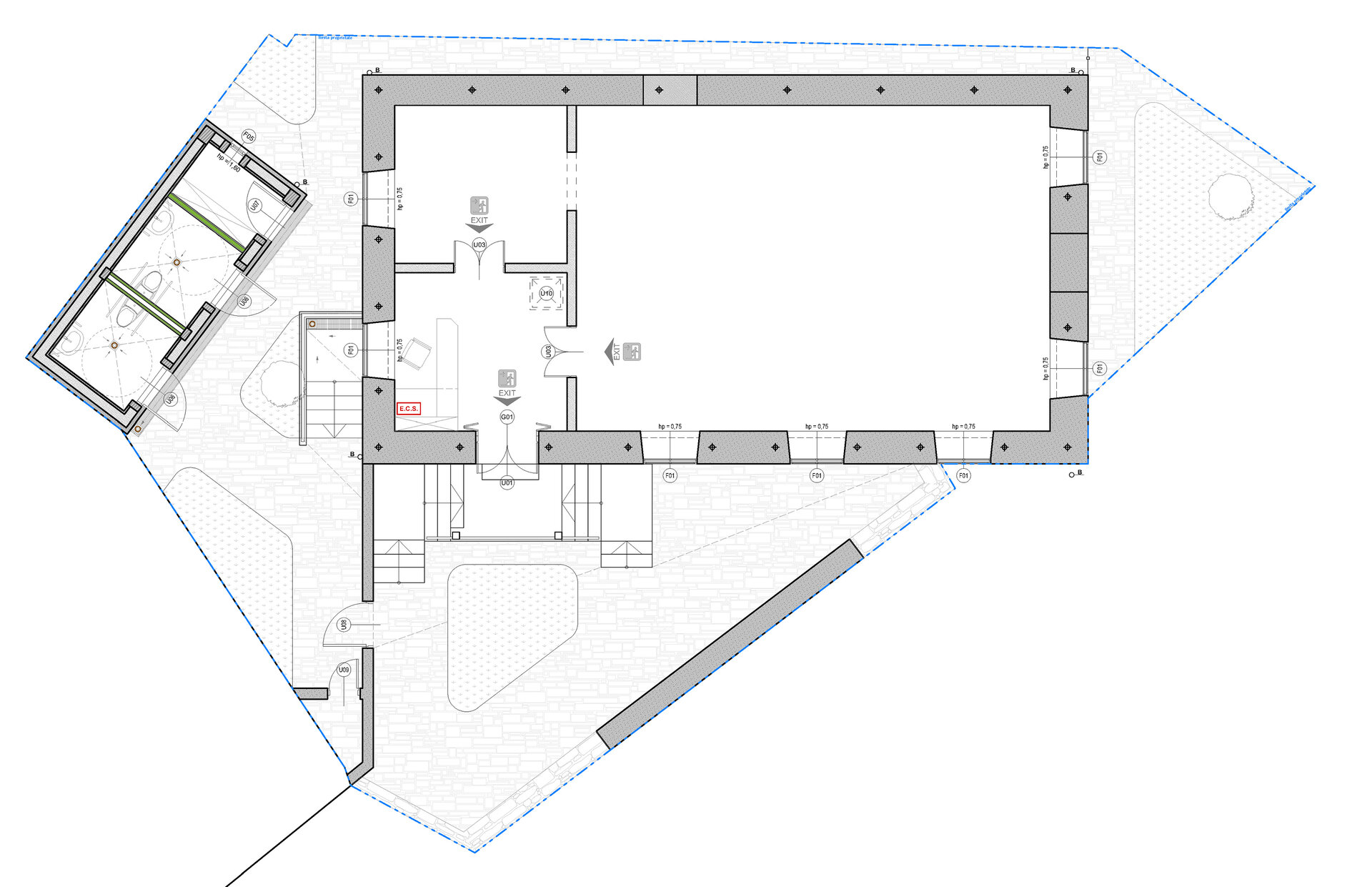
Casa Panaghia este o clădire de plan dreptunghiular, cu regimul de înălțime demisol, parter și pod necirculabil. Accesul din stradă se face printr-o mică curte, din care se urcă pe o scară în două rampe către o mică prispă acoperită, la nivelul parterului. Către demisol se accede direct din curte. Atât fundațiile, zidurile exterioare cât și pereții interiori sunt realizați din piatră, iar compartimentarea interioară în parter s-a făcut cu ziduri din cărămidă plina și mortar din var nisip, pe alocuri chiar pământ galben. Planșeele sunt din lemn, ca și șarpanta, iar învelitoarea, din olane ceramice. În demisol, pardoseala este din pământ bătătorit și șape din mortar de dată recentă. Treptele scării exterioare sunt din blocuri de piatră prelucrată îngrijit.
Inițial, cele mai grave probleme se regăseau în zona demisolului și a planseelor din lemn. Planşeul peste demisol se afla, parţial, în stare de colaps. Ca urmare a acestui fapt, în 1999, s-au făcut sprijiniri ale planșeului parterului, cu stâlpi metalici încastrați în cuzineți din beton. Peretele exterior de pe faţada de nord avea crăpături profunde, unele din acestea datorându-se probabil şi tasărilor ca urmare a lucrărilor de construire a unei clădiri de P+1+mansardă foarte aproape de casa „Panaghia”. De asemenea, toţi ceilalţi pereţi exteriori prezentau dizlocări, crăpături, precum şi fisuri mai mult sau mai puţin vizibile.
Lucrările realizate pentru consolidarea, restaurarea și punerea în valoare a Casei Panaghia sunt:
Au fost realizate lucrări de consolidare a fundațiilor și a suprastructurii din zidărie de piatră.
Au fost puse în valoare elementele descoperite după curățarea paramentului: pe laturile de sud-est, respectiv de nord-est, au fost găsite două goluri de fereastră, închise cu zidărie, care au fost păstrate ca atare și evidențiate în casete lăsate în tencuială. Centurile din lemn, încastrate în zidărie, într-una din încăperile parterului, au fost păstrate aparente, încadrate într-o casetă lăsată în tencuiala plină aplicată la interior. Au fost refăcute ancadramentele din lemn ce bordau ferestrele din parter, în locașurile descoperite după îndepărtarea tencuielilor exterioare.
A fost pus în valoare paramentul exterior prin tencuieli șterse, păstrând aparentă zidăria din piatră și arcele plate, din cărămidă, ale ferestrelor. S-au aplicat tencuieli pline doar pe elementele profilate ale cornișei, așa cum a fost original.
Au fost refăcute tencuielile interioare pline cu mortar pe bază de var;
Structura din lemn a prispei și treptele din piatră fasonată au fost restaurate. Pardoseala din demisol a fost refăcută din cărămidă plină.
Planșeele din lemn de peste subsol și parter au fost consolidate cu elemente metalice amplasate între grinzile din lemn, iar plafonul ornamental din parter a fost restaurat.
Tâmplăriile duble, din lemn masiv de stejar, au fost restaurate și completate.
Colțul de nord al construcției monument a fost degajat, prin dezafectarea parțială a construcției anexă; în camerele păstrate, s-au amenajat spații tehnice și grupuri sanitare.