
Comentariul autorului:
Farul Comisiei Europene a Dunării - monument istoric de importanță națională (TL-II-m-A-06023), datat oficial în 1870, dar realizat cu aproximație pe la 1839 și reparat de Comisia Europeană a Dunării în intervalul 1856-1870 - se găsește astăzi la cca. 2,5km de țărmul mării și, ca atare, nu mai servește orientării navelor. Scos definitiv din uz odată cu ridicarea farului nou în 1982, acest far vechi a continuat să se degradeze cu trecerea anilor și, în ciuda faptului că a fost „resuscitat” începând cu anul 1995 (când au fost demarate lucrări ample de reabilitare), mediul umed, salinitatea atmosferică ridicată și vânturile puternice dinspre mare i-au provocat în scurt timp degradări noi.
Lucrările de restaurare și conservare desfășurate pe parcursul ultimilor trei ani, începând cu luna mai 2019, au avut ca scop readucerea la viață a monumentului și valorificarea acestui simbol al Sulinei, refacerea amenajării muzeale și reintroducerea clădirii în rândul obiectivelor turistice și culturale de primă mărime din acest colț izolat de țară. Din cele patru faruri existente la Sulina la momentul actual, acesta este fără îndoială cel mai vechi și cel mai important din punct de vedere istoric și arhitectural.
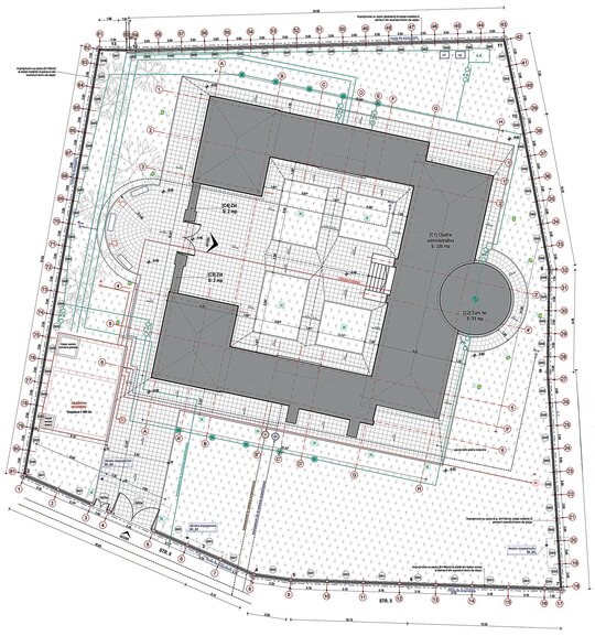
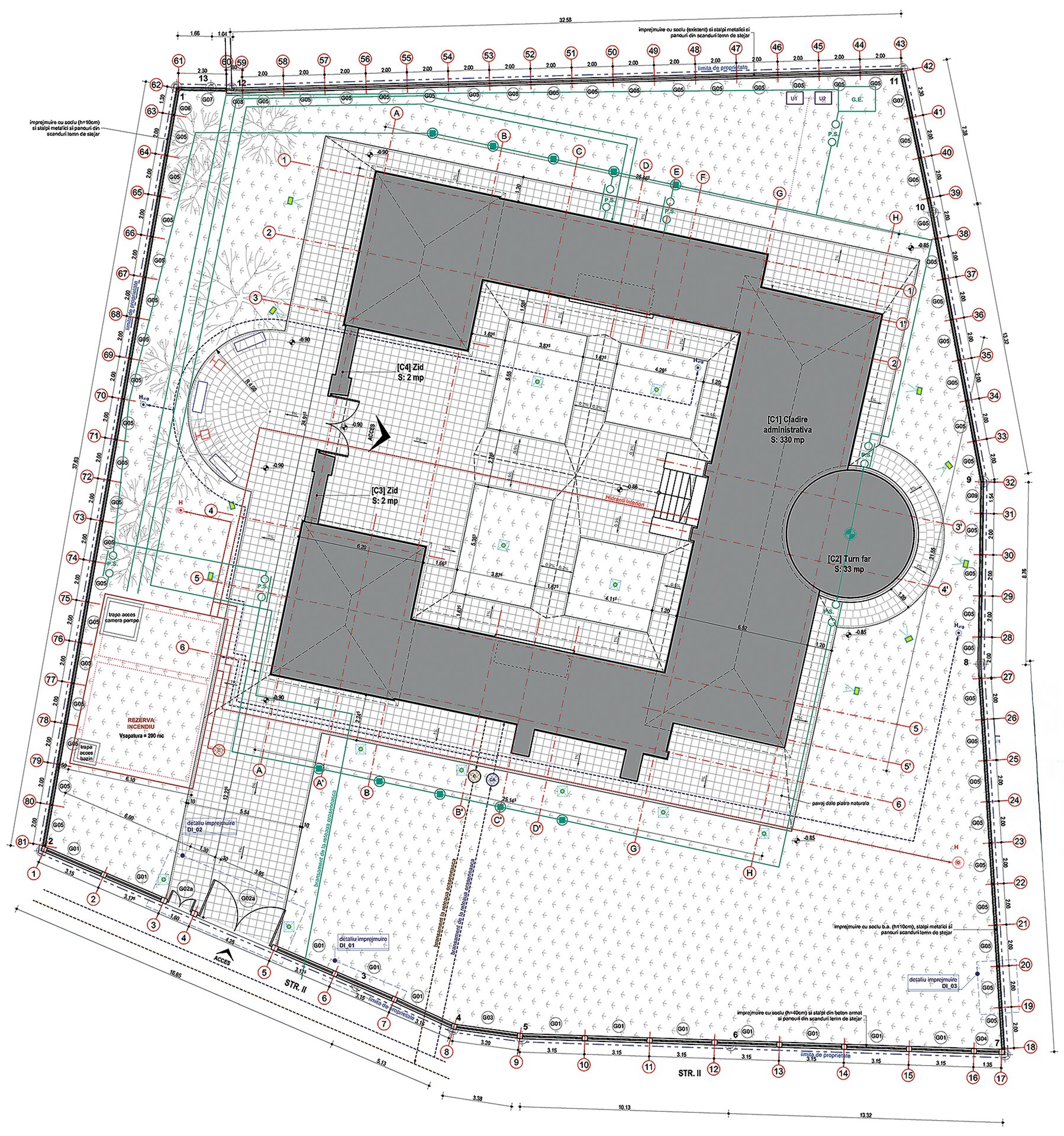
Imobilul cu plan de forma literei "U" este organizat în jurul unei curți interioare, având o orientare generală est-vest. În capătul estic se găsește turnul cilindric al farului. La baza turnului se află corpul de clădire principal, rectangular, desfășurat pe toată lățimea curții și compus din două camere și un vestibul. Spre vest, singura intrare în curtea farului este străjuită de două pavilioane relativ pătrate, iar între pavilioane și corpul rectangular laturile nord și sud ale incintei sunt delimitate cu două corpuri simetrice, ce se deschid către spațiul central al curții.
Istoria farului C.E.D. rezumă, la nivelul unei singure clădiri, istoria zbuciumată a Sulinei, orașul prosper și cosmopolit de acum 150 de ani, care, după decenii de creștere și descreștere, în contextul unei izolări geografice și economice tot mai accentuate, se luptă în ultimii 10-15 ani să își recapete prestigiul de altădată, prin promovarea patrimoniului construit, a peisajului natural și, în general, a valorilor turistice.
2019-2022: Restaurarea Farului C.E.D.
Deoarece farul Comisiei Europene a Dunării a beneficiat în perioada 1995-1997 de lucrări ample de restaurare și consolidare, prilej cu care aripile laterale ale curții farului au fost refăcute în bună măsură pe o structură nouă din beton armat, proiectul elaborat în perioada 2017-2019 a prevăzut intervenții structurale minimale (injectări, matări, repararea sau, după caz, înlocuirea elementelor din lemn degradate ale șarpantei și asterelii, fără modificarea volumetriei acoperișului).
Funcțiunea muzeală a clădirii a fost păstrată, iar spațiile interioare adaptate la cerințele funcționale. S-au repoziționat, astfel, unele ziduri de compartimentare și unele goluri de uși, fără a aduce atingere zidăriei originale din secolul al XIX-lea. S-au adus modificări relevante numai zidurilor ridicate în 1995-1997.
Lucrările de intervenție realizate pe baza proiectului de restaurare au inclus: refacerea învelitorii din olane ceramice, refacerea elementelor din lemn deteriorate (pazii, grinzi decorative, îmbrăcăminte stâlpi pridvor), curățarea treptelor din lemn ale scării din turnul farului, refacerea stratului verde de vopsea de pe cabina farului, restaurarea tâmplăriilor existente (majoritatea realizate la restaurarea din 1995-1997) și realizarea de tâmplării noi, conform modelului celor existente, restaurarea suprafețelor metalice (păstrându-se patina valoroasă, acolo unde era cazul), realizarea unei hidroizolații orizontale perimetrale la baza pereților, refacerea tencuielilor exterioare și a tuturor finisajelor interioare.
Printre aspectele determinante, care au influențat modalitatea de punere în operă a proiectului, nu se poate să nu menționăm condițiile naturale excepționale ale Sulinei. Datorită izolării geografice a orașului, accesibil numai pe apă, toate materialele de construcție au fost aduse pe șantier cu gabara pe Dunăre. Necesitatea realizării unei rezerve de apă și a unei camere de pompe în curtea farului a impus adoptarea unor soluții tehnice deosebite, în condițiile în care nivelul pânzei freatice se găsește la numai 1 m de la fața terenului. Pentru o mai bună protecție împotriva factorilor atmosferici, tencuielile exterioare au beneficiat de un tratament de silicatizare.
Curtea farului a fost amenajată minimal, acordându-se atenție deosebită păstrării și valorificării spațiului verde și a vegetației înalte, iar împrejmuirea de la stradă a fost refăcută sub forma unui gard de lemn scund, în stilul arhitecturii tradiționale dobrogene.
Avem speranța că definitivarea amenajării muzeale va contribui la promovarea Sulinei și a patrimoniului său construit odată cu redeschiderea către publicul larg a porților acestui monument excepțional, atât prin istoria, cât și prin arhitectura sa, prin robustețea turnului său sobru, din a cărui cabină turiștii scrutează an de an zarea, căutând locul de întâlnire al Dunării cu Marea Neagră.