
Comentariul autorului:
Contextul actual de dezvoltare al locuirii se confruntă cu probleme noi ale societății determinate de factorii economici, sociali și ecologici. Ideea de sustenabilitate a spațiului a devenit o preocupare tot mai mare în dezvoltarea urbană. Ansamblul tip co-housing reprezintă un nou mod de locuire prin dezvoltarea unei comunități intenționat concepută, a unei autonomii a individului dar și a spațiului creat, a unei locuințe accesibil financiar, dar și sustenabilă.
Printr-un astfel de ansamblu, arhitectura nu încearcă să construiască noi comunități. Nimic nu-i împiedică pe oameni să coopereze indiferent de cartier. Pe de altă parte, certurile pot izbucni atât într-o bucătărie comună cât și de o parte și de alta a terenului propriu. Cu toate acestea spațiile grupate, comune, pot economisi timp și bani familiilor și pot economisi planetei materiale și energie, în același timp făcând mai ușoară întâlnirea. De asemenea, ansamblul de tip cohousing ar putea reprezenta o alternativă pentru categoria persoanelor cu vârste înaintate care se confruntă cu problema singurătății. Astfel se evită mutarea lor în azile datorită spațiilor comune care le oferă hrană, activitate și posibilitatea interacțiunii cu diferite categorii de vârstă. Acest lucru permite o dinamică între generații și un suport pentru persoanele în etate, copii, adolescenți sau părinți singuri. Locuințele pot funcționa în regim permanent sau temporar, ele devenind o alternativă pentru categorii sociale mobile: studenți, nomazi-digitali etc. Rolul proiectului este de a integra diversitatea membrilor într-un organism coerent care încurajează locatarii spre comunicare și dezvoltarea unor relații sănătoase cu vecinii.
Amplasamentul este situat în Oradea, pe calea Clujului, în cartierul istoric Valenta, pe situl fostei fabrici de spirt „Moscovit și fiii”. Situl va fi împărțit în două: partea de est cu ansamblul propriu-zis, partea de vest cu o propunere pentru continuarea ansamblului în jurul unui parc comun în care se va afla centrul de cartier al ansamblului. Accesele pe sit sunt introvertite închizând perspectiva trecătorilor către zonele de locuit. Cu toate acestea, odată cu intrarea în spațiul propriu-zis, perspectiva se deschide către curți comune si spații de loisir.
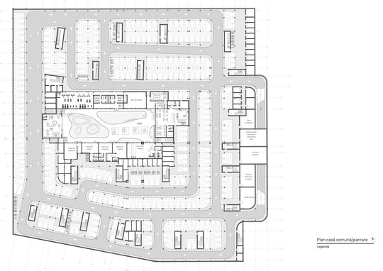
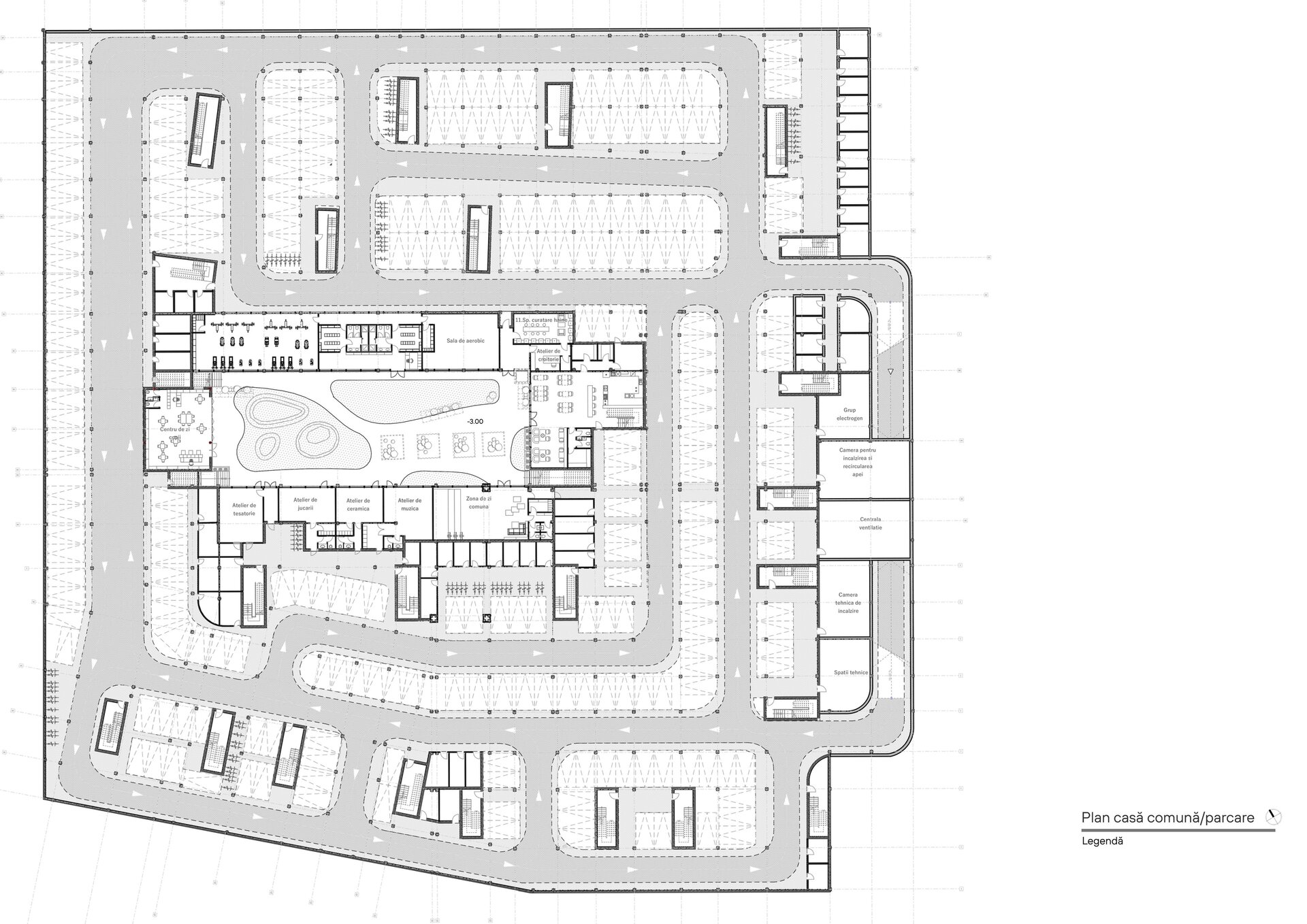
Pe zona de parter, spațiile comune și publice relaționează cu spațiul privat al locuințelor. Curtea interioară coborâtă cu un nivel mai jos față de limita ansamblului reprezintă punctul central (casa comună) în care locatarii își pot desfășura activitățile împreună. Spațiul capătă un caracter introvertit în relația sa cu exteriorul, însă este animat și susținut de activitatea pe care o oferă funcțiunile de la subsol deschise către curtea interioară (loc de joacă pentru copii, sală de sport, sală media, cantină ș.a.). Locuințele sunt construite pentru a fi flexibile și pentru a se putea adapta în timp, la fel și spațiile comune adiacente. Spațiile publice și ariile comune pot fi dezvoltate din inițiativa locatarilor, încurajând interacțiunile sociale, susținând activ participarea și împărtășind responsabilitatea organizării.
În ceea ce privește locuințele, acestea vor fi amplasate către curți și trasee comune exclusiv destinate ansamblului. Apartamentele de la parter vor reprezenta modalitatea cea mai accesibilă pentru persoanele în etate sau pentru persoanele cu dizabilități. De asemenea fiecare apartament de la parter va avea curtea proprie care animă traseele pietonalei.
Imaginea blocurilor de locuit a fost aleasă astfel încât să se integreze cât mai bine în contextul ansamblului, care are în vecinătatea sa locuințe cu un regim mic de înălțime de P+1 sau P+mansardă. Drept urmare, blocurile de locuit au fost construite cu acoperiș șarpantă și structura din CLT, finisate cu var alb. Tronsonul dinspre râu este determinat de terase succesive și spații comerciale cu tâmplărie din lemn și goluri largi de sticlă. Tronsonul dinspre sud însă este mult mai introvertit și continuă ideea de zid pe parter, locuințele tip duplex având terase verzi la etaj.
Ansamblul este proiectat pe plăci radier aflate la înălțimi diferite. Drept urmare se creează o diferență foarte clară între spațiul public al străzii și spațiul introvertit al ansamblului care urcă 1 metru față de nivelul străzii. Parcul creat este susținut de un lac artificial și de un centru de cartier care să funcționeze pentru locatarii ansamblului dar și pentru public.