
Comentariul autorului:
”Suntem în inima iernii, (...)
Natura pare că doarme,
Peisajul rural din jur este trist
Oamenii sunt ascunși în hambar.
Nu se aude niciun zgomot, în afară de cel al pistei
Care defilează zi și noapte, continuu
Cu o monotonie întristătoare.
Totuși, acolo înăuntru, totul este mișcare
Totul este viață....”
Extrasul citat, din poezia ”Pe pistă”, scrisă de Ettore Ara în 1912 și tradusă din limba italiană descrie atmosfera într-o moară de decorticat orez și reprezintă un punct de plecare în discursul interpretativ conturat. Ideea de mișcare continua, accentuarea peisajului rural, caracterul de protector al hambarului și creionarea unei noi etape din ”viața monumentelor”, sunt aspecte conceptuale valoroase aduse... ”împreună”.
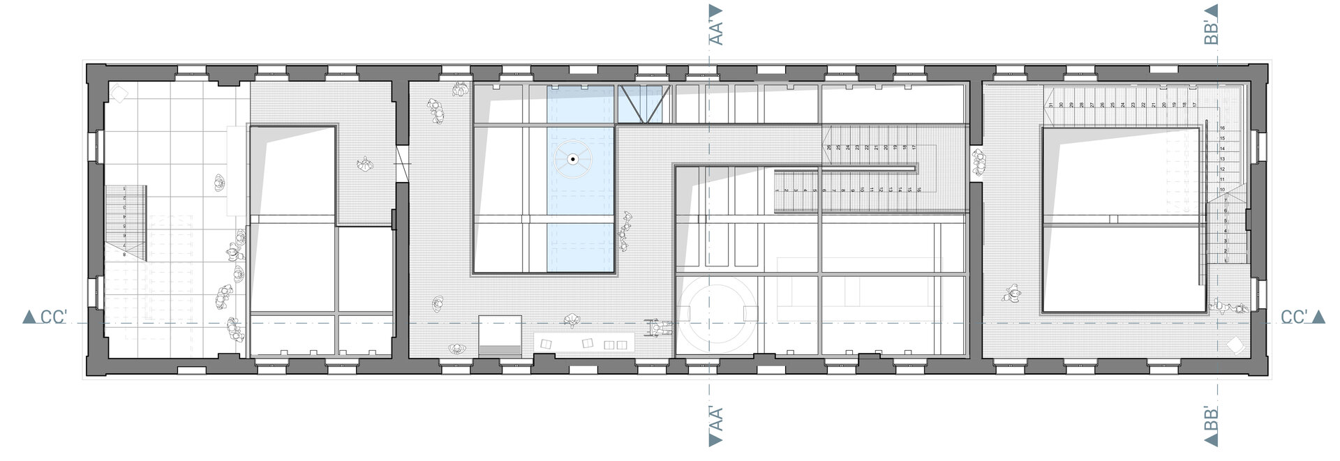
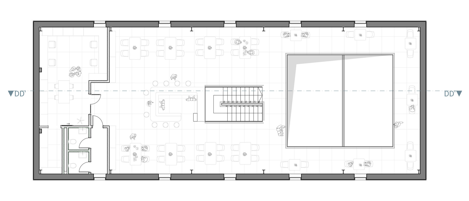
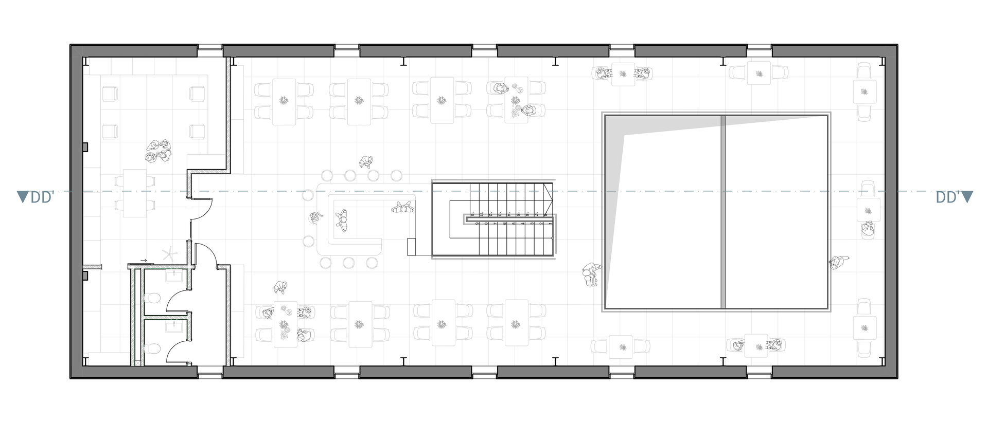
Proiectul prezintă detalierea unui strategii de reactivare a peisajului cultural și natural, în raport cu patrimoniul hidrotehnic din zona Banatului, axate pe aprofundarea relațiilor vizuale, spațiale și de atmosferă ce se nasc între dihotomiile ”existent/propus”, ”apă/uscat”, ”educație/loisir”, prin expunerea soluției la nivel de centru interpretativ în fosta moară și restaurant în hambarul adiacent.
Fundamentarea proiectului s-a dezvoltat în baza unei strategii realizate la nivel multiscalar, vizând scara macro-teritorială, scara acvatică a canalului și a sistemului hidrografic în relație cu contextul, până la scara micro a mecanismului exterior și interior al morii, relaționat la ansamblu. Dezvoltarea multiscalară urmărește, de fapt, împletirea componentei industriale, de peisaj și interpretativă, într-o ierarhizare la nivel teritorial. Dezvoltarea unui masterplan și înțelegerea relațiilor teritoriale și a relațiilor din ansamblu și dintre clădiri și peisaj au fost vitale pentru ilustrarea unei soluții atente la posibilele modalități de dezvoltare și implementare, în care monumentele, apa și teritoriul pot da naștere un dialog armonios și dinamic, invitând vizitatorul la asimilarea narativului.
Dintre principiile valoroase la nivel de soluție distingem: valorificarea spațialității interioare și a relațiilor pe orizontală și verticală, accentuarea axialității, crearea unui dialog și a unei coexistențe între nou și vechi, tratarea traseului ca și temă și transparență la nivel
de materialitate și la nivel de claritatea a intervenției.