
Comentariul autorului:
Centru pentru victimele violenței domestice, Cluj-Napoca. Adăpostire, recuperare, reintegrare.
Adresa: Strada Făgetului nr. 26
Despre program
Proiectul vine ca răspuns la problema actuală a deficitului de adăposturi pentru victimele violenței domestice. Necesitatea acestui program devine evidentă dacă aruncăm o privire asupra numărului de cazuri de femei abuzate în cadrul familiei, în România. Întrucât victimele locuiesc în aceeași locuință cu agresorii, pe lângă partea de asistență, o mare parte dintre acestea au nevoie de o alternativă a vieții de zi cu zi pentru a depăși această situație prin asigurarea unui spațiu de locuit sigur. Relevanța subiectului este dată în primul rând de amploarea acestui fenomen social în România și disproporționalitatea dintre numărul de cazuri, demonstrând necesitatea acestui program în mod real la scară națională.
Centrele existente din România urmează o tipologie instituțională, în care problema securității și cazării este abordată pragmatic. Ca urmare, adăposturile nu au calități spațiale, promovând o atmosferă ostilă mai degrabă decât una de creștere și vindecare. Aceste caracteristici induc o stare de neputință. Astfel, un principiu pe care îl urmărește proiectul este acela de a oferi victimelor un mediu care să contribuie la emancipare și la combaterea sentimentului de umilință resimțit de persoanele care apelează la aceste servicii.
Când ne gândim la securitatea unui adăpost pentru victimele violenței domestice, se presupune automat că locația acestuia trebuie să fie secretă. Dar aceasta impune bariere atât de natură logistică și emoțională, cât și din punct de vedere al implicării comunității în problemă.
Adăposturile trebuie să contribuie la schimbarea paradigmei victimei de la rușine și ascundere la crearea siguranței prin autodescoperirea în comunitate. Aceasta, la rândul său, poate ajuta comunitatea să recunoască problema violenței domestice în societate prin exemple concrete și să o destigmatizeze.
În contextul creșterii populației urbane, conceptul de utilizare a spațiilor pentru activități mixte poate accelera dezvoltarea orașelor. Din păcate, multe construcții preexistente cu impact major asupra comunităților din jur devin elemente pasive ale peisajului urban. Biserica este un obiect pasiv în spațiul urban care deservește un număr limitat de persoane, unde se desfășoară doar activități specifice cultului (slujbe, slujbe etc.) pe o perioadă limitată de timp, în general duminica între orele 9 și 12. Pentru a rezolva această problemă, unele biserici din diferite țări au început să adopte ideea de a folosi spațiul în beneficiul comunității mai largi (nu doar al enoriașilor) în scopuri care aderă la valorile acesteia fără a le impune. Există multe opțiuni de conservare și revitalizare a lăcașurilor de cult prin reutilizarea adaptivă atât a clădirii în sine, cât și a spațiului din jurul acesteia. Având în vedere numărul mare de biserici din România, potențialul de a transforma aceste spații în locuri care să servească comunitatea este uriaș. În Cluj Napoca, de exemplu, sunt peste 72 de biserici, iar în România numărul este mai mare de 14.300.
Astfel, locația a fost aleasă dintre bisericile din Cluj-Napoca care au avut spațiul necesar unei potențiale extinderi în urma unei analize bazate pe criteriile cerute pentru program. Cartierul considerat este potrivit pentru acest tip de program deoarece se afla la o distanta intermediara intre centrul orasului si periferie, oferind astfel atat liniste si intimitate, cat si acces facil la facilitatile urbane.
Fiind un cartier în dezvoltare, există o lipsă de spații publice precum piețe, parcuri etc. Aceasta este o oportunitate pentru proiect de a crea un spațiu de întâlnire în care comunitatea să poată interacționa cu victimele violenței domestice.
Locația oferă un cadru natural deosebit, fiind mărginită pe latura de vest de pădurea Făget. Acest aspect este important în proiect deoarece prezența naturii în cazul victimelor cu stres posttraumatic poate duce la o recuperare holistică mai rapidă.
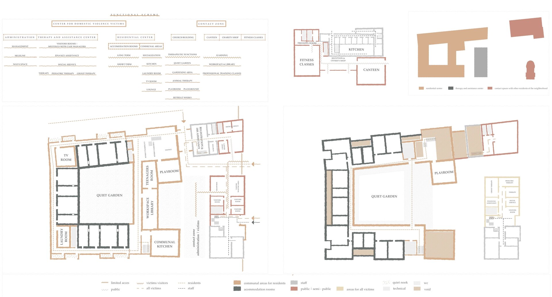
Concept urbanistic
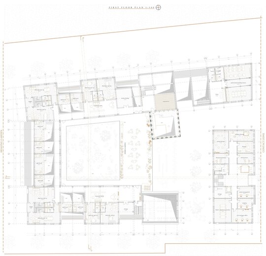
Proiectul își propune să creeze o zonă de contact între victimele violenței domestice și locuitorii cartierului. Așadar, începând de la stradă până la limita de vest a proprietății are loc o trecere treptată de la o zonă publică (biserică, piațetă și o mică clădire comunitară ce cuprinde o cantină și și o sală pentru cursuri de fitness), la centrul de terapie și asistență (care deservește și pentru non- victime rezidente), urmând cu centrul de cazare pentru victime și terminând cu spațiul grădinii care rămâne neatinsă și se contopește cu fundalul pădurii.
Concept arhitectural
Scopul proiectului este de a demonstra o alternativă care se îndepărtează de modelul tradițional al unui astfel de centru, concentrându-se pe crearea unei experiențe care inspiră demnitate și empatie. Țelul principal este de a crea condiții de viață apropiate de viața normală. Un alt aspect care este subliniat este nevoia de apartenență și crearea unei comunități. Astfel, nevoile lipsă vor fi propuse sub forma unor spații comune care să încurajeze interacțiunea dintre victime (spălătorie, sală de proiecție) și o bucătărie comună. Cu toate acestea, victimele au nevoie și de intimitate, gradarea treptată între public și privat fiind importantă. De asemenea, transparența zonelor comune permite autonomiei utilizatorului de a decide dacă dorește sau nu să acceseze un spațiu.